EXCLUSIVES WOHNEN - BELLEVUESTRASSE MIT WIENBLICK
Beschreibung
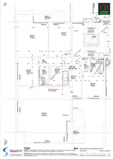
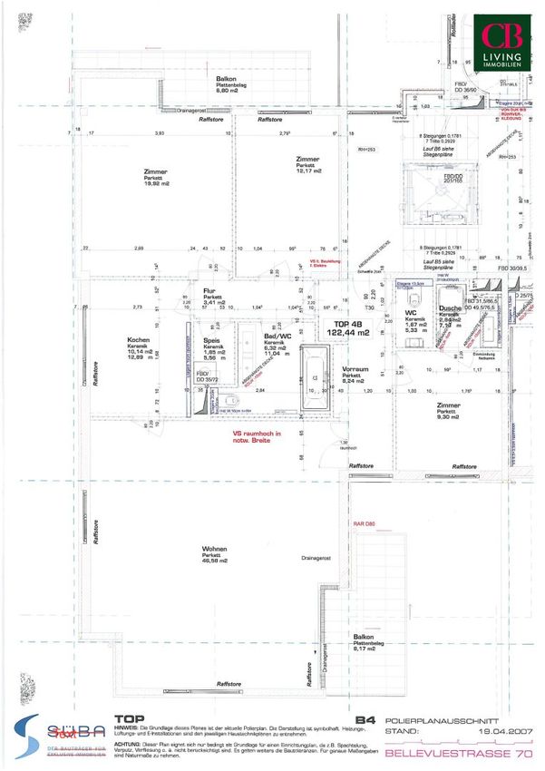
Zum Verkauf steht diese hochwertige Eigentumswohnung mit ca. 123 m² Wohnfläche in einer der besten Wohnlagen Wiens, der Bellevuestraße, 1190 Wien. Die Wohnung besticht durch helle, großzügige Räume, zwei Terrassen (ca. 7 m² und 9 m²) und einen traumhaften Blick auf die umliegenden Weinberge.
Die Wohnung ist noch befristet vermietet bis 31.3.2027.
Highlights
- 3 Schlafzimmer, eines mit direktem Terrassenzugang
- 2 Bäder (Badewanne & Duschbad) + separates WC
- Maßgefertigte Einbauküche vom Tischler
- Hochwertiger Echtholz-Parkettboden
- Elektrische Außenrollos, Doppelwaschbecken
- Kellerabteil (ca. 7 m²) und Garagenstellplatz
Lage & Umgebung
Ruhig, grün und exklusiv – die Bellevuestraße bietet höchste Lebensqualität....
Zum Verkauf steht diese hochwertige Eigentumswohnung mit ca. 123 m² Wohnfläche in einer der besten Wohnlagen Wiens, der Bellevuestraße, 1190 Wien. Die Wohnung besticht durch helle, großzügige Räume, zwei Terrassen (ca. 7 m² und 9 m²) und einen traumhaften Blick auf die umliegenden Weinberge.
Die Wohnung ist noch befristet vermietet bis 31.3.2027.
Highlights
- 3 Schlafzimmer, eines mit direktem Terrassenzugang
- 2 Bäder (Badewanne & Duschbad) + separates WC
- Maßgefertigte Einbauküche vom Tischler
- Hochwertiger Echtholz-Parkettboden
- Elektrische Außenrollos, Doppelwaschbecken
- Kellerabteil (ca. 7 m²) und Garagenstellplatz
Lage & Umgebung
Ruhig, grün und exklusiv – die Bellevuestraße bietet höchste Lebensqualität. Spazier- und Wanderwege, der Wienerwald und zahlreiche Heurigen liegen in unmittelbarer Nähe.
Öffentliche Verkehrsanbindung
- Direkter Busanschluss vor der Haustür (39A)
- Weitere Buslinien (38A, 38, N38) in kurzer Distanz
- Schneller Zugang zu U-Bahn, S-Bahn (S45) und Straßenbahn → rasche Verbindung in die Wiener Innenstadt
Fazit:
Ein exklusives Zuhause, das Wohnkomfort, Naturblick und erstklassige Infrastruktur perfekt vereint – ideal für Familien oder anspruchsvolle Käufer.
Hinweis gemäß Energieausweisvorlagegesetz: Ein Energieausweis wurde vom Eigentümer bzw. Verkäufer, nach unserer Aufklärung über die generell geltende Vorlagepflicht, sowie Aufforderung zu seiner Erstellung noch nicht vorgelegt. Daher gilt zumindest eine dem Alter und der Art des Gebäudes entsprechende Gesamtenergieeffizienz als vereinbart. Wir übernehmen keinerlei Gewähr oder Haftung für die tatsächliche Energieeffizienz der angebotenen Immobilie.
Wir weisen darauf hin, dass zwischen dem Vermittler und dem zu vermittelnden Dritten ein familiäres oder wirtschaftliches Naheverhältnis besteht.
Der Vermittler ist als Doppelmakler tätig.
Wir von CB Living GmbH bieten unseren Kunden ein komplett Sorglos Paket.
Von A wie Architekt über B wie Baumeister und M wie Makler oder I wie Interieur bis hin zu V wie Versicherung. Wir haben durch unsere jahrelange Erfahrung im Makler und Bauträgergeschäft sehr gute, zuverlässige und seriöse Partner, die wir gerne an Sie weiterempfehlen.
Infrastruktur / Entfernungen
Gesundheit
Arzt <1.000m
Apotheke <1.500m
Klinik <2.500m
Krankenhaus <2.500m
Kinder & Schulen
Schule <1.000m
Kindergarten <1.000m
Universität <2.000m
Höhere Schule <2.000m
Nahversorgung
Supermarkt <1.500m
Bäckerei <1.000m
Einkaufszentrum <3.500m
Sonstige
Geldautomat <1.500m
Bank <1.500m
Post <1.500m
Polizei <1.500m
Verkehr
Bus <500m
U-Bahn <3.500m
Straßenbahn <1.500m
Bahnhof <2.000m
Autobahnanschluss <3.500m
Angaben Entfernung Luftlinie / Quelle: OpenStreetMap
Objektdaten
Zustand
- Baujahr
- 2010
- Alter
- NEUBAU
Flächen
- Anzahl der Zimmer
- 4
- Anzahl der Badezimmer
- 2
- Anzahl der sep. WCs
- 2
- Anzahl der Terrassen
- 2
- Stellplätze
- 1
- Wohnfläche
- 122m²
- Kellerfläche
- 7m²
- Terrassenfläche
- 2m²
Kosten
- Kaufpreis Brutto
- € 1.190.000,00
Wohnungen zum Kaufen in Österreich
- Bezirk Gemeindebezirk Döbling
- Bezirk Gemeindebezirk Döbling
- Bezirk Gemeindebezirk Döbling
- Bezirk Gemeindebezirk Währing
- Bezirk Gemeindebezirk Währing
- Bezirk Gemeindebezirk Währing
- Bezirk Gemeindebezirk Brigittenau
- Bezirk Gemeindebezirk Brigittenau
- Bezirk Gemeindebezirk Brigittenau
- Bezirk Gemeindebezirk Alsergrund
Wohnungen zum Kaufen in Österreich
Wohnungen zum Kaufen in Österreich
Andere Besucher suchen nach...
- Grundstücke kaufen in 3400 Weidlingbach
- Wohnungen kaufen in 4663 Laakirchen
- Häuser in 7471 Rechnitz
- Wohnungen in 2410 Hainburg an der Donau
- Häuser kaufen in 2432 Schwadorf
- Wohnungen kaufen in 3002 Purkersdorf
- Häuser in 3150 Wilhelmsburg
- Wohnungen kaufen in 3470 Engelmannsbrunn
- Grundstücke kaufen im Bezirk Mattersburg
- Grundstücke kaufen im Bezirk Gmunden