Top SANIERTE sonnige 4 Zimmer Wohnung mit Loggia & Klima - Parkblick
Beschreibung
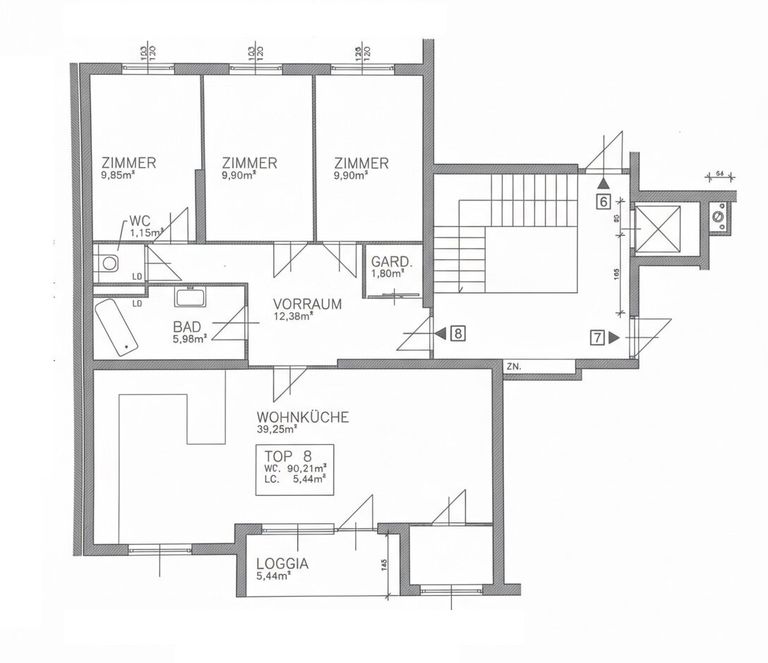
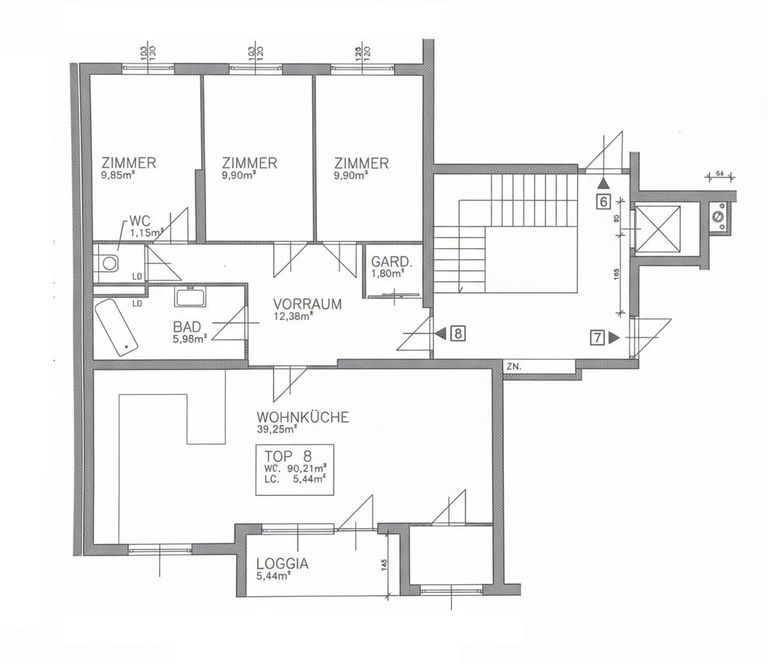
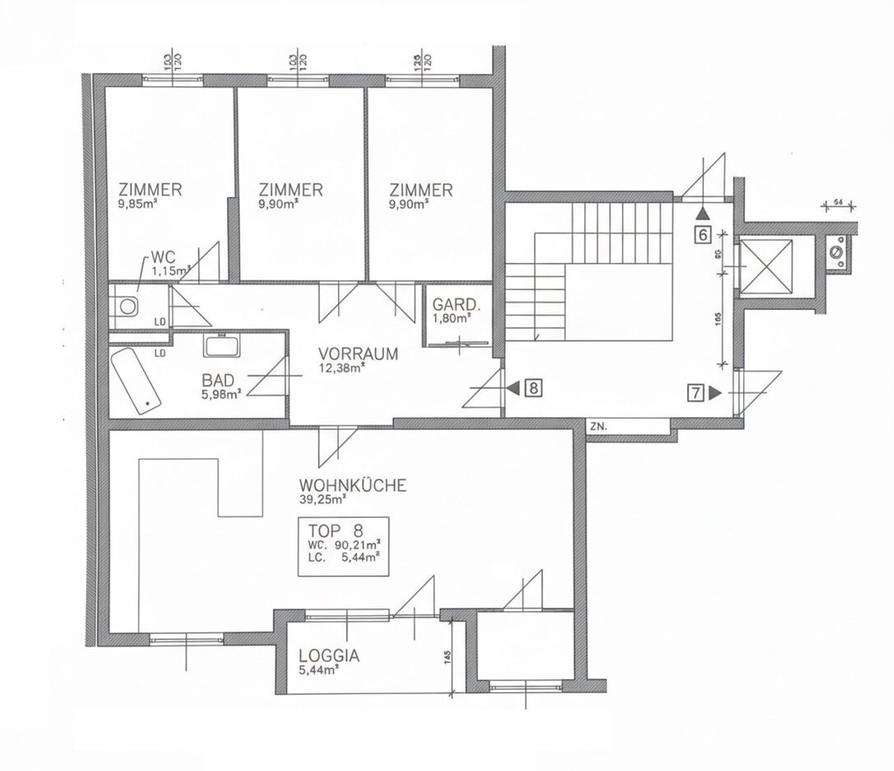
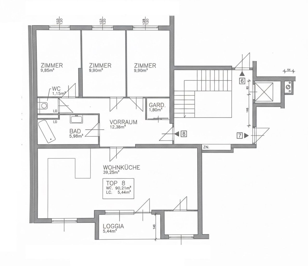
Krottenbachstraße - Hugo Wolf Park, sonnige 4 Zimmer Wohnung mit Loggia
Willkommen in Ihrem neuen Zuhause in Döbling, einem Ort, an dem modernisiertes Wohnambiente auf erstklassige Lage trifft! Diese wunderschöne Wohnung im 2. Liftstock bietet Ihnen auf großzügigen 90,21 m² zuzüglich der 5,44m² Loggia alles, was das Herz begehrt. Die Wohnung besteht aus einem großen Vorraum, einem geräumigen Wohnraum mit moderner offener Tischler-Küche und Zugang zur Loggia, sowie 3 hofseitigen Zimmern, einem Bad mit Eckwanne, einem WC und einem Abstellraum. Der Wohnbereich ist zum Park, bzw zur Straße ausgerichtet, alle Schlafräume auf die absolut ruhige hintere Hofseite
Sie haben...
Krottenbachstraße - Hugo Wolf Park, sonnige 4 Zimmer Wohnung mit Loggia
Willkommen in Ihrem neuen Zuhause in Döbling, einem Ort, an dem modernisiertes Wohnambiente auf erstklassige Lage trifft! Diese wunderschöne Wohnung im 2. Liftstock bietet Ihnen auf großzügigen 90,21 m² zuzüglich der 5,44m² Loggia alles, was das Herz begehrt. Die Wohnung besteht aus einem großen Vorraum, einem geräumigen Wohnraum mit moderner offener Tischler-Küche und Zugang zur Loggia, sowie 3 hofseitigen Zimmern, einem Bad mit Eckwanne, einem WC und einem Abstellraum. Der Wohnbereich ist zum Park, bzw zur Straße ausgerichtet, alle Schlafräume auf die absolut ruhige hintere Hofseite
Sie haben hier die Möglichkeit, in eine liebevoll gestaltete Immobilie zu investieren, die sowohl für Paare als auch für Familien ein perfektes Zuhause sein kann. Die moderne Ausstattung der Wohnung sorgt dafür, dass Sie sich sofort wohlfühlen werden. Helle Räume, ansprechende Materialien und ein durchdachter Grundriss bieten Ihnen eine harmonische Wohnatmosphäre.
Ein besonderes Highlight dieser Immobilie ist die Loggia, die Ihnen nicht nur zusätzlichen Raum bietet, sondern auch einen Rückzugsort im Freien, um die frische Luft und die Sonne zu genießen. Stellen Sie sich vor, wie Sie hier Ihre Morgenkaffees mit direktem Blick auf den Hugo Wolf Park genießen oder abends mit Freunden entspannen.
Die Lage dieser Wohnung ist schlichtweg hervorragend. Sie profitieren von optimalen Verkehrsanbindungen durch Bus, Schnellbahn und Bim, die Sie schnell und unkompliziert in die Innenstadt und zu allen wichtigen Zielen bringen.
In unmittelbarer Nähe finden Sie alles, was Sie für den täglichen Bedarf benötigen. Ärzte, Apotheken, Kliniken sowie Schulen und Kindergärten sind nur wenige Minuten entfernt. Auch für Studierende ist die Lage von Vorteil, da sowohl Universitäten als auch höhere Schulen in der Nähe sind. Ein Billa Plus in gehweite und eine Bäckerei sorgen dafür, dass Sie Ihre Einkäufe bequem erledigen können.
Diese Wohnung vereint modernes Wohnen mit einer hervorragenden Infrastruktur und einer lebendigen Nachbarschaft. Hier können Sie die Vorzüge des Stadtlebens genießen, ohne auf die Annehmlichkeiten einer ruhigen Wohngegend verzichten zu müssen.
Vereinbaren Sie noch heute einen Besichtigungstermin und überzeugen Sie sich selbst von dieser modernen Wohnung direkt gegenüber dem Hugo Wolf Park, in dem sich auch ein Familienbad befindet.
Der Kaufpreis beträgt 499.000,- €
BK: 261,06 € Rücklage: 105,67 €
Kaufnebenkosten:
3,5 % Grunderwerbsteuer
1,1 % Grundbuchseintrag
1,0 % Kaufvertragserrichtung + Ust
3,6 % Provision inkl. 20 % Ust
Für Informationen und Besichtigungstermine stehe ich Ihnen jederzeit gerne zur Verfügung!
Termine sind auch am Wochenende möglich unter 0664 - 38 17 061, Anton Robert De Icco
Der Vermittler ist als Doppelmakler tätig.
Infrastruktur / Entfernungen
Gesundheit
Arzt <500m
Apotheke <500m
Klinik <1.000m
Krankenhaus <1.500m
Kinder & Schulen
Schule <500m
Kindergarten <500m
Universität <500m
Höhere Schule <500m
Nahversorgung
Supermarkt <500m
Bäckerei <500m
Einkaufszentrum <2.500m
Sonstige
Geldautomat <500m
Bank <500m
Post <500m
Polizei <500m
Verkehr
Bus <500m
U-Bahn <2.000m
Straßenbahn <1.000m
Bahnhof <1.000m
Autobahnanschluss <2.500m
Angaben Entfernung Luftlinie / Quelle: OpenStreetMap
Objektdaten
Zustand
- Zustand
- MODERNISIERT
- Baujahr
- 1974
- Alter
- NEUBAU
- HWB
- 79.6 kWh/m² pro Jahr
- Klasse HWB
- C
Flächen
- Anzahl der Logia
- 1
- Anzahl der Zimmer
- 4
- Anzahl der Badezimmer
- 1
- Anzahl der sep. WCs
- 1
- Wohnfläche
- 96m²
- Nutzfläche
- 96m²
- Gesamtfläche
- 96m²
- Kellerfläche
- 2m²
Kosten
- Kaufpreis Brutto
- € 499.000,00
- Betriebskosten
- € 204,87
- Sonstige Kosten
- € 141,37
Wohnungen zum Kaufen in Österreich
- Bezirk Gemeindebezirk Döbling
- Bezirk Gemeindebezirk Döbling
- Bezirk Gemeindebezirk Döbling
- Bezirk Gemeindebezirk Währing
- Bezirk Gemeindebezirk Währing
- Bezirk Gemeindebezirk Währing
- Bezirk Gemeindebezirk Brigittenau
- Bezirk Gemeindebezirk Brigittenau
- Bezirk Gemeindebezirk Brigittenau
- Bezirk Gemeindebezirk Alsergrund
Wohnungen zum Kaufen in Österreich
Andere Besucher suchen nach...
- Immobilien kaufen in 2601 Sollenau
- Immobilien in 4951 Polling im Innkreis, Oberösterreich
- Immobilien in 4742 Pram, Oberösterreich kaufen oder mieten
- Häuser kaufen in 2340 Mödling, Niederösterreich
- Häuser kaufen in 9421 Gemmersdorf, Kärnten
- Wohnungen / Eigentumswohnungen kaufen in 9431 St. Stefan, Kärnten
- Häuser kaufen in Bruck an der Leitha, Niederösterreich
- Immobilien mieten in Krems an der Donau, Niederösterreich
- Häuser zum Kaufen im Bezirk St. Pölten Land, Niederösterreich
- Büro / Praxen mieten in Rohrbach, Oberösterreich