Helle 3-Zimmer-Wohnung mit Loggia in 1200 Wien – Ihr neues Zuhause wartet!
Beschreibung
Willkommen zu Ihrem neuen Zuhause in der pulsierenden 1200 Wien!
Diese wunderschöne Etagenwohnung in der 2. Etage bietet Ihnen nicht nur ein komfortables Wohnerlebnis, sondern auch eine erstklassige Lage, die alle Annehmlichkeiten des urbanen Lebens in greifbare Nähe rückt.
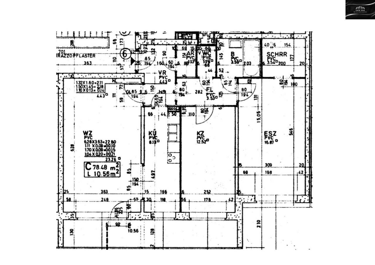
Mit einer großzügigen Fläche von 89 m² verteilt auf 3 lichtdurchflutete Zimmer, ist diese Wohnung ideal für Paare, kleine Familien oder auch als lukrative Investition.
Der gepflegte Zustand der Immobilie sorgt dafür, dass Sie sofort einziehen und sich wohlfühlen können.
Ein Highlight dieser Wohnung ist die einladende Loggia, die Ihnen einen...
Willkommen zu Ihrem neuen Zuhause in der pulsierenden 1200 Wien!
Diese wunderschöne Etagenwohnung in der 2. Etage bietet Ihnen nicht nur ein komfortables Wohnerlebnis, sondern auch eine erstklassige Lage, die alle Annehmlichkeiten des urbanen Lebens in greifbare Nähe rückt.
Mit einer großzügigen Fläche von 89 m² verteilt auf 3 lichtdurchflutete Zimmer, ist diese Wohnung ideal für Paare, kleine Familien oder auch als lukrative Investition.
Der gepflegte Zustand der Immobilie sorgt dafür, dass Sie sofort einziehen und sich wohlfühlen können.
Ein Highlight dieser Wohnung ist die einladende Loggia, die Ihnen einen herrlichen Stadtblick bietet. Hier können Sie entspannte Stunden im Freien verbringen und den Blick über das bunte Treiben der Stadt genießen.
Die Wohnung ist mit hochwertigem Parkett ausgestattet und verfügt über eine moderne Einbauküche, die keine Wünsche offenlässt. Mit der zentralen Gasheizung fühlen Sie sich in den kalten Monaten stets wohl. Das Badezimmer ist mit einer Badewanne ausgestattet, die Ihnen die perfekte Möglichkeit bietet, nach einem langen Tag zu entspannen.
Die Wohnung ist bereits vermietet, mir eine Monatliche Miete von 1.350 € gesamt Betrag (Hauptmiete inkl. BK).
Zusätzliche Annehmlichkeiten wie ein Personenaufzug, eine Rampe für den einfachen Zugang und ein Wasch- und Trockenraum runden das Angebot ab und sorgen für zusätzlichen Komfort in Ihrem Alltag.
Die Verkehrsanbindung ist hervorragend – Bus, U-Bahn, Straßenbahn und Bahnhof sind nur wenige Gehminuten entfernt. Damit erreichen Sie mühelos alle wichtigen Ziele in Wien und darüber hinaus.
In der näheren Umgebung finden Sie alles, was Sie für den täglichen Bedarf benötigen: Ärzte, Apotheken, Kliniken und Krankenhäuser sind schnell erreichbar. Für Familien sind Schulen und Kindergärten in der Nähe, während Studenten von der Nähe zur Universität profitieren. Supermärkte, Bäckereien und ein Einkaufszentrum sorgen dafür, dass Sie immer gut versorgt sind.
Öffentlichen Verkehrs:
Bus - 77m
U-Bahn - 222m
Straßenbahn - 227m
Bahnhof - 142m
Autobahnanschluss - 1.452m
Nutzen Sie die Chance und werden Sie Teil dieser lebendigen Nachbarschaft! Der Kaufpreis von 358.000,00 € macht diese Wohnung zu einer attraktiven Investition in die Zukunft.
Alle Angaben erfolgen ohne Gewähr und basieren ausschließlich auf den Informationen, die uns vom Verkäufer mitgeteilt wurden. Da wir diese Informationen lediglich weiterleiten, übernehmen wir keine Haftung für deren Richtigkeit, Vollständigkeit und Aktualität.
Ich ersuche um Verständnis, dass ich, aufgrund der Nachweispflicht gegenüber dem Auftraggeber und aus Sicherheitsgründen Unterlagen nur an Interessenten weiterleiten kann, die Ihre persönlichen Daten, d.h. Vor- und Familienname, Anschrift, Telefonnummer und E-Mail-Adresse, bekannt gegeben haben. Irrtümer und Änderungen vorbehalten!
In einem persönlichen und unverbindlichen & kostenlosen Termin können Sie sich einen Eindruck dieser außergewöhnlichen Liegenschaft machen. Ich freue mich auf Ihren Anruf!
Für nähere Auskünfte und/oder eine Besichtigung kontaktieren Sie mich unter
Mihai-George Micodin BA
CEO & Founder
Handy: +436764009306
E-Mail: micodin@crew-immobilien.at
Der Vermittler ist als Doppelmakler tätig.
Infrastruktur / Entfernungen
Gesundheit
Arzt <500m
Apotheke <500m
Klinik <500m
Krankenhaus <500m
Kinder & Schulen
Schule <500m
Kindergarten <500m
Universität <1.000m
Höhere Schule <1.500m
Nahversorgung
Supermarkt <500m
Bäckerei <500m
Einkaufszentrum <1.000m
Sonstige
Geldautomat <500m
Bank <500m
Post <500m
Polizei <500m
Verkehr
Bus <500m
U-Bahn <500m
Straßenbahn <500m
Bahnhof <500m
Autobahnanschluss <1.500m
Angaben Entfernung Luftlinie / Quelle: OpenStreetMap
Objektdaten
Ausstattung
- Klimatisiert
- Gartennutzung
- Vollmöbliert
- DVBT
- Barrierefrei
- Wasch-/Trockenraum
- Rampe
- Fahrradraum
- Gäste-WC
- Kabelkanäle
- Bad mit Badewanne
- Einbauküche
- Parkettboden
- Granitboden
- Zentralheizung
- Befeuerung mit Gas
- Personen Fahrstuhl
- Massiv Bauweise
Dokumente / Links
Zustand
- Zustand
- GEPFLEGT
- Baujahr
- 1974
- Alter
- NEUBAU
- HWB
- 84 kWh/m² pro Jahr
- Klasse HWB
- C
- fGEE
- 2.1
- Klasse fGEE
- D
Flächen
- Anzahl der Zimmer
- 3
- Anzahl der Badezimmer
- 1
- Anzahl der sep. WCs
- 1
- Wohnfläche
- 89m²
- Nutzfläche
- 89m²
- Gesamtfläche
- 89m²
Kosten
- Kaufpreis Brutto
- € 349.000,00
- Betriebskosten
- € 111,25
- Heizkosten
- € 78,50
- Sonstige Kosten
- € 131,73
Verwaltung
- Verfügbar ab
- nach Vereinbarung
Wohnungen zum Kaufen in Österreich
- Bezirk Gemeindebezirk Brigittenau
- Bezirk Gemeindebezirk Brigittenau
- Bezirk Gemeindebezirk Brigittenau
- Bezirk Gemeindebezirk Alsergrund
- Bezirk Gemeindebezirk Alsergrund
- Bezirk Gemeindebezirk Alsergrund
- Bezirk Gemeindebezirk Floridsdorf
- Bezirk Gemeindebezirk Floridsdorf
- Bezirk Gemeindebezirk Floridsdorf
- Bezirk Gemeindebezirk Leopoldstadt
Wohnungen zum Kaufen in Österreich
Wohnungen zum Kaufen in Österreich
Andere Besucher suchen nach...
- Grundstücke kaufen in 3400 Weidlingbach
- Wohnungen kaufen in 4663 Laakirchen
- Häuser in 7471 Rechnitz
- Wohnungen in 2410 Hainburg an der Donau
- Häuser kaufen in 2432 Schwadorf
- Wohnungen kaufen in 3002 Purkersdorf
- Häuser in 3150 Wilhelmsburg
- Wohnungen kaufen in 3470 Engelmannsbrunn
- Grundstücke kaufen im Bezirk Mattersburg
- Grundstücke kaufen im Bezirk Gmunden