++NEU++ Fantastische 2-Zimmer Altbauwohnung mit Balkon
-
Erstbezug
Beschreibung
Stilvoller Altbaucharme mit Balkon – 2-Zimmer-Wohnung im generalsanierten Stilhaus
Zum Verkauf gelangt eine derzeit in Sanierung befindliche, optimal aufgeteilte 2-Zimmer-Altbauwohnung mit ca. 44 m² Wohnfläche und Balkon in ausgezeichneter Lage der Brigittenau.
Diese stilvolle Einheit vereint klassischen Wiener Altbaucharme mit moderner Ausstattung und hochwertiger Sanierung – ideal als Eigennutzung oder Anlageobjekt.
Objektdetails
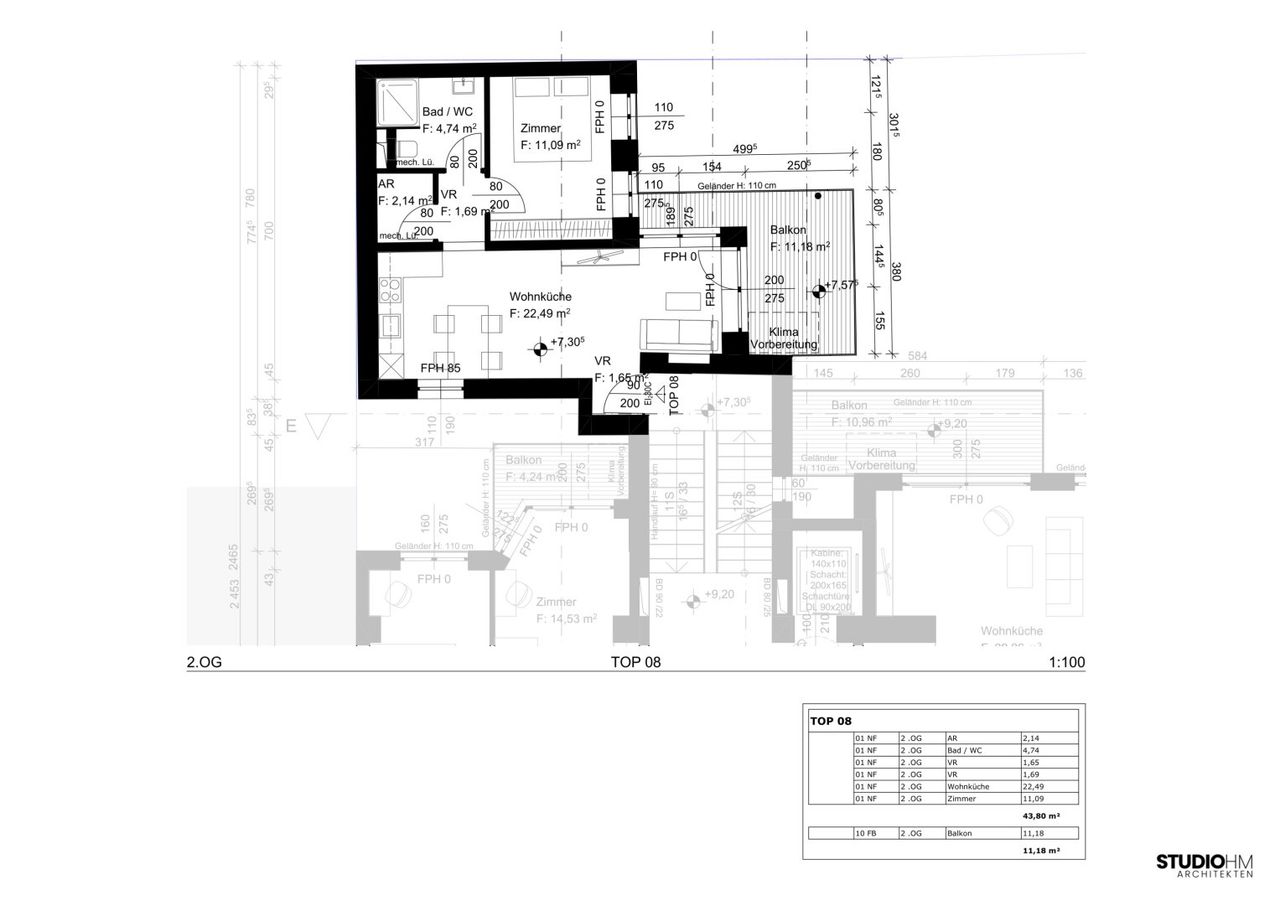
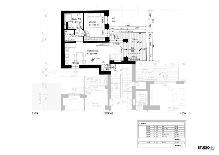
Wohnfläche: ca. 44 m² Freiflächen: Balkon Etage: 2. OG Zimmer: 2 Fertigstellung: voraussichtlich Q1 2027 Zustand: Erstbezug nach Generalsanierung
Raumaufteilung
- Vorraum
- Wohnküche
- Schlafzimmer
- Badezimmer mit Dusche und WC
- Abstellraum
- Balkon
(Siehe Plan und Beispielbilder einer bereits fertiggestellten Wohnung...
Stilvoller Altbaucharme mit Balkon – 2-Zimmer-Wohnung im generalsanierten Stilhaus
Zum Verkauf gelangt eine derzeit in Sanierung befindliche, optimal aufgeteilte 2-Zimmer-Altbauwohnung mit ca. 44 m² Wohnfläche und Balkon in ausgezeichneter Lage der Brigittenau.
Diese stilvolle Einheit vereint klassischen Wiener Altbaucharme mit moderner Ausstattung und hochwertiger Sanierung – ideal als Eigennutzung oder Anlageobjekt.
Objektdetails
Wohnfläche: ca. 44 m²
Freiflächen: Balkon
Etage: 2. OG
Zimmer: 2
Fertigstellung: voraussichtlich Q1 2027
Zustand: Erstbezug nach Generalsanierung
Raumaufteilung
- Vorraum
- Wohnküche
- Schlafzimmer
- Badezimmer mit Dusche und WC
- Abstellraum
- Balkon
(Siehe Plan und Beispielbilder einer bereits fertiggestellten Wohnung desselben Bauträgers.)
Ausstattung
Die Wohnung wird mit hochwertigen Materialien und Liebe zum Detail ausgestattet:
Edler Eichenparkettboden in allen Wohnräumen
Modern verflieste Nassräume mit Markenarmaturen
Fußbodenheizung in allen Räumen
Erstklassige Bau- und Ausstattungsqualität – genaue Beschreibung auf Anfrage verfügbar
Das gesamte Wohnhaus wird derzeit umfassend generalsaniert. Im Zuge dessen werden auch das Dachgeschoss ausgebaut und ein Aufzug eingebaut.
Einmaliger Lifterrichtungsbeitrag:
1.OG - 2.000 €
2.OG - 4.000 €
3.OG - 6.000 €
4.OG - 8.000 €
DG - 10.000 €
Lage & Infrastruktur
Die Universumstraße liegt im Herzen der Brigittenau – einem lebendigen Stadtteil zwischen Donaukanal und Donau, der urbanes Flair mit hoher Lebensqualität vereint.
In der unmittelbaren Umgebung finden sich zahlreiche Einkaufsmöglichkeiten, Restaurants, Cafés und Nahversorger. Für Erholung im Grünen sorgen der Augarten – eine der schönsten barocken Parkanlagen Wiens – sowie die nahe Donauinsel mit ihren weitläufigen Freizeit- und Erholungsflächen.
Verkehrsanbindung
Die Lage überzeugt durch eine hervorragende öffentliche Anbindung:
U6 – Dresdner Straße: wenige Gehminuten entfernt
Straßenbahn & Bus: Linien 2, 12, O, 5A, 37A
S-Bahn – Traisengasse: schnelle Verbindung ins Stadtzentrum und Umland
Individualverkehr: rasche Anbindung über Handelskai, Nordbrücke, A22, A4 und A23
Kaufpreis
EUR 289.000,-
Lifterrichtungsbeitrag: EUR 4.000,-
Vertragserrichtung: Mag. Georg Kampas (1,5 % zzgl. Barauslagen und 20 % USt.)
Betriebskosten: ca. EUR 2,50/m² (exkl. Reparaturrücklage und Aufzug)
Die endgültige Wohnungsgröße kann geringfügig abweichen, da das Objekt noch nicht naturvermessen ist.
Hinweis
Gerne senden wir Ihnen auf Anfrage eine Übersicht aller noch verfügbaren Einheiten sowie die detaillierte Bau- und Ausstattungsbeschreibung zu.
Sollten Sie Fragen haben oder einen persönlichen Gesprächstermin wünschen, zögern Sie bitte nicht mich zu kontaktieren.
Zur Vereinbarung eines Besichtigungstermins lassen Sie uns bitte jedenfalls eine E-Mailanfrage zukommen!
Bitte achten Sie darauf, dass Sie diese Immobilie, nach Ihrer Anfrage bei Adonia Immobilien, nicht auch bei einem anderen Immobilienmaklerbüro anfragen! Vielen Dank!
Vielen Dank an unsere Kunden! Unser Unternehmen wurde bereits zum Besten Start Up und erneut als Qualitätsmakler 2018 ausgezeichnet!!
Nicht alle unsere Immobilien finden Sie auf den gängigen Plattformen. Wir freuen uns auf Ihren Besuch auf unserer Homepage unter adonia.at
Wir weisen ausdrücklich auf unser wirtschaftliches Naheverhältnis mit dem Abgeber/ der Abgeberin hin! Unsere gesetzlichen Pflichten als Doppelmakler werden dadurch jedoch nicht beeinträchtigt. Irrtum und Änderungen vorbehalten.
Alle hier veröffentlichen Informationen basieren auf den uns von dem Abgeber/ der Abgeberin zur Verfügung gestellten Informationen und wurden nicht selbst erhoben.
Der Schutz von personenbezogenen Daten ist uns wichtig und auch gesetzlich gefordert. Die Verarbeitung Ihrer personenbezogenen Daten erfolgt nach den datenschutzrechtlichen Bestimmungen. Auf unserer Homepage (unter Datenschutzinformation) finden Sie eine Übersicht die Sie über die wichtigsten Aspekte der Verarbeitung personenbezogener Daten informieren soll.
Wir weisen darauf hin, dass zwischen dem Vermittler und dem zu vermittelnden Dritten ein familiäres oder wirtschaftliches Naheverhältnis besteht.
Der Vermittler ist als Doppelmakler tätig.
Infrastruktur / Entfernungen
Gesundheit
Arzt <500m
Apotheke <500m
Klinik <500m
Krankenhaus <500m
Kinder & Schulen
Schule <1.000m
Kindergarten <500m
Universität <1.000m
Höhere Schule <1.500m
Nahversorgung
Supermarkt <500m
Bäckerei <500m
Einkaufszentrum <1.000m
Sonstige
Geldautomat <500m
Bank <500m
Post <500m
Polizei <500m
Verkehr
Bus <500m
U-Bahn <500m
Straßenbahn <500m
Bahnhof <500m
Autobahnanschluss <1.500m
Angaben Entfernung Luftlinie / Quelle: OpenStreetMap
Objektdaten
Ausstattung
- Bad mit Dusche
- Fliesenboden
- Parkettboden
- Estrichboden
- Zentralheizung
- Luftwärmepumpe
- Personen Fahrstuhl
- Ausrichtung Balkon/Terrasse - Nordwest
Zustand
- Zustand
- ERSTBEZUG
- HWB
- 35.2 kWh/m² pro Jahr
- fGEE
- 0.95
Flächen
- Anzahl der Zimmer
- 2
- Anzahl der Badezimmer
- 1
- Anzahl der sep. WCs
- 1
- Anzahl der Balkone
- 1
- Wohnfläche
- 44m²
Kosten
- Kaufpreis Brutto
- € 289.000,00
Wohnungen zum Kaufen in Österreich
- Bezirk Gemeindebezirk Brigittenau
- Bezirk Gemeindebezirk Brigittenau
- Bezirk Gemeindebezirk Brigittenau
- Bezirk Gemeindebezirk Alsergrund
- Bezirk Gemeindebezirk Alsergrund
- Bezirk Gemeindebezirk Alsergrund
- Bezirk Gemeindebezirk Floridsdorf
- Bezirk Gemeindebezirk Floridsdorf
- Bezirk Gemeindebezirk Floridsdorf
- Bezirk Gemeindebezirk Leopoldstadt
Wohnungen zum Kaufen in Österreich
Wohnungen zum Kaufen in Österreich
Andere Besucher suchen nach...
- Grundstücke kaufen in 3400 Weidlingbach
- Wohnungen kaufen in 4663 Laakirchen
- Häuser in 7471 Rechnitz
- Wohnungen in 2410 Hainburg an der Donau
- Häuser kaufen in 2432 Schwadorf
- Wohnungen kaufen in 3002 Purkersdorf
- Häuser in 3150 Wilhelmsburg
- Wohnungen kaufen in 3470 Engelmannsbrunn
- Grundstücke kaufen im Bezirk Mattersburg
- Grundstücke kaufen im Bezirk Gmunden