„72 m² DG-Wohnung – 2 Zimmer – fußläufig U6/S-Bahn – sofort beziehbar“
-
sofort
Beschreibung
Sonne. Ruhe. Alte Donau ums Eck.
Wer Dachgeschoß-Wohngefühl liebt, findet hier einen selten angenehmen Mix aus Licht, Ruhe und Alltagstauglichkeit: ca. 72 m², 2 Zimmer, große Wohnküche und sofort beziehbar. Dazu eine Lage, die urbanes Leben mit Grün verbindet – Wasserpark/Alte Donau und gleichzeitig sehr gute Öffi-Anbindung. Ideal für Singles, Paare oder Käufer mit Homeoffice-Bedarf.
Diese Immobilie wird in Form einer digitalen Angebotslegung vermittelt. Das bedeutet, der angezeigte Preis ist ein Startpreis und kann im Laufe des Prozesses höher sein.“ Jetzt besichtigen!
Highlights
-
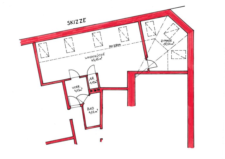
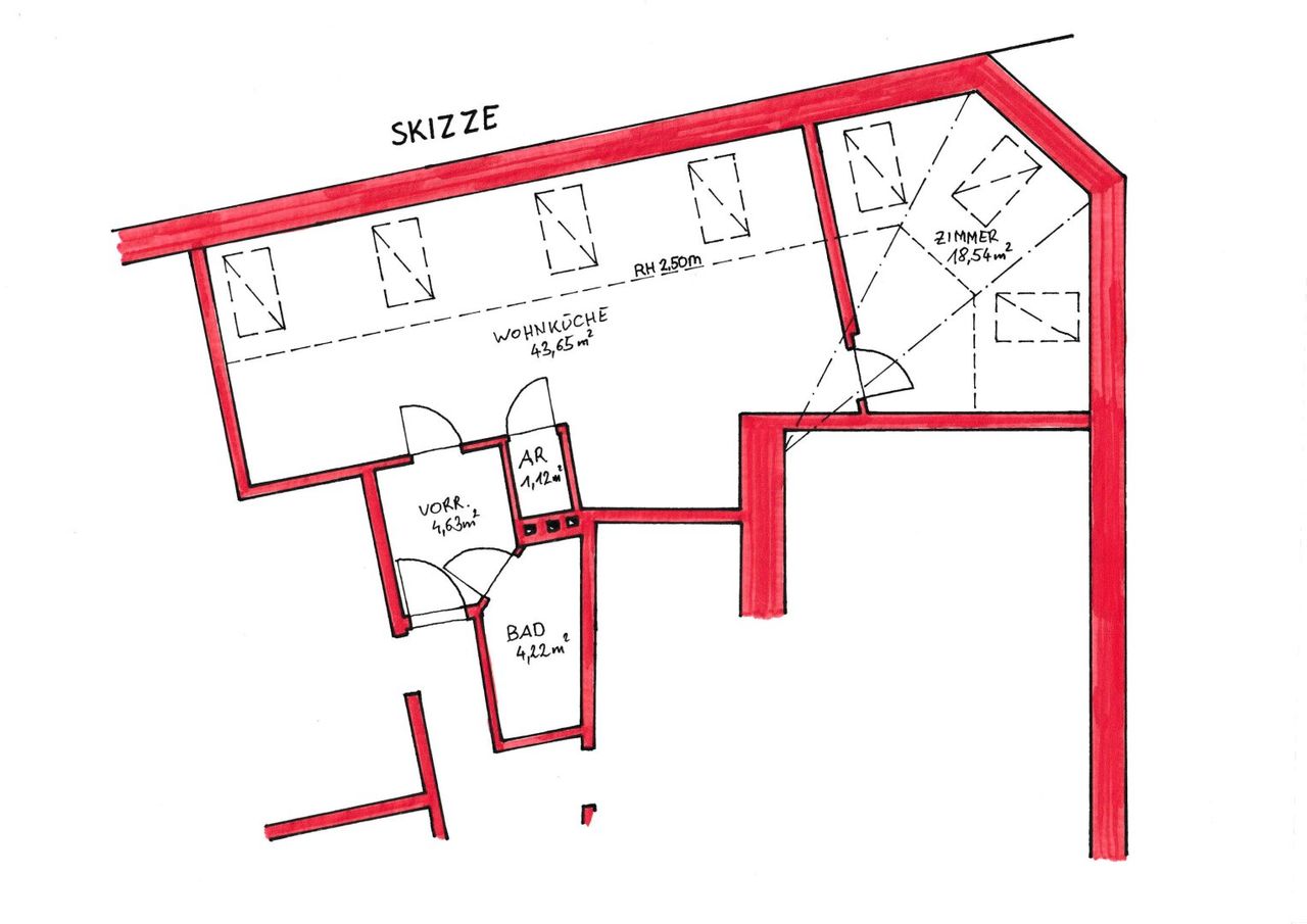
Ca. 72,16 m² Wohnfläche, 2 Zimmer
-
Dachgeschoß-Atmosphäre: hell, ruhig, angenehmes Raumgefühl
...
Sonne. Ruhe. Alte Donau ums Eck.
Wer Dachgeschoß-Wohngefühl liebt, findet hier einen selten angenehmen Mix aus Licht, Ruhe und Alltagstauglichkeit: ca. 72 m², 2 Zimmer, große Wohnküche und sofort beziehbar. Dazu eine Lage, die urbanes Leben mit Grün verbindet – Wasserpark/Alte Donau und gleichzeitig sehr gute Öffi-Anbindung. Ideal für Singles, Paare oder Käufer mit Homeoffice-Bedarf.
Diese Immobilie wird in Form einer digitalen Angebotslegung vermittelt. Das bedeutet, der angezeigte Preis ist ein Startpreis und kann im Laufe des Prozesses höher sein.“ Jetzt besichtigen!
Highlights
Ca. 72,16 m² Wohnfläche, 2 Zimmer
Dachgeschoß-Atmosphäre: hell, ruhig, angenehmes Raumgefühl
Große Wohnküche als Mittelpunkt
Sofort beziehbar (kein „Einzug in 6 Monaten“)
Sehr gute Öffi-Anbindung (U-Bahn/Straßenbahn/Bus in der Nähe)
Nähe Wasserpark/Alte Donau: Freizeitwert & Lebensqualität
Großes Kellerabteil (praktischer Stauraum)
Energieausweis vorhanden (HWB 66 | fGEE 1,36)
Raumaufteilung
Wohnküche – der zentrale Lebensbereich
Schlafzimmer – separater Rückzugsraum
Bad/WC
Vorraum / Stauraum
Kellerabteil (überdurchschnittlich groß)
Ehrlich & klar
Die Wohnung liegt im Dachgeschoß (2. Stock) ohne Lift. Wenn Stiegen für Sie grundsätzlich okay sind, bekommen Sie dafür Dachgeschoß-Licht und ein sehr angenehmes Wohngefühl zu einem Preis, der genau das berücksichtigt. Die Innenhof-Fassade braucht ein Update – die Sanierung ist bereits vorgesehen. Ich kann Ihnen Rücklagenstand, Protokolle und den aktuellen Informationsstand dazu zeigen. Das Kellerabteil ist geräumig und ausbaufähig.
Für Sie heißt das: Beste Lage & Substanz mit großem Potenzial!
Fazit
Ein Zuhause für Menschen, die Tempo und Tiefenentspannung zugleich wollen: Schnell im Zentrum. Schnell am Wasser. Und daheim über den Dächern – ruhig, hell, großzügig.
Finanzierung benötigt?
Sichern Sie sich jetzt unsere unabhängige Finanzierungsberatung wir bieten alles aus einer Hand, maßgeschneidert, bankenübergreifend und ohne Beratungskosten. wir vergleichen für Sie die Konditionen mehrerer Banken, optimieren Fixzins- und. variabele Angebote, Laufzeit und Sondertilgungen. Wir rechnen Ihre monatliche Rate realistisch durch, berücksichtigen Nebenkosten und erstellen eine tragfähige Strategie – vom Vorkredit-Check bis zur strukturierten Unterlagenliste für eine zügige Zusage.
Kurz: Sie entscheiden, wir liefern klare Zahlen und die beste Option für Ihr Ziel.
Wenden Sie sich einfach an uns, wir erledigen alles aus einer Hand!
Der Vermittler ist als Doppelmakler tätig.
Infrastruktur / Entfernungen
Gesundheit
Arzt <500m
Apotheke <500m
Klinik <500m
Krankenhaus <1.500m
Kinder & Schulen
Schule <500m
Kindergarten <500m
Universität <1.000m
Höhere Schule <500m
Nahversorgung
Supermarkt <500m
Bäckerei <500m
Einkaufszentrum <500m
Sonstige
Geldautomat <500m
Bank <500m
Post <1.000m
Polizei <500m
Verkehr
Bus <500m
U-Bahn <500m
Straßenbahn <500m
Bahnhof <500m
Autobahnanschluss <500m
Angaben Entfernung Luftlinie / Quelle: OpenStreetMap
Objektdaten
Ausstattung
- Einbauküche
- Fliesenboden
- Fertigparkettboden
- Etage Heizung
- Befeuerung mit Gas
- Massiv Bauweise
Zustand
- HWB
- 66 kWh/m² pro Jahr
- Klasse HWB
- C
- fGEE
- 1.36
- Klasse fGEE
- C
Flächen
- Anzahl der Zimmer
- 2
- Wohnfläche
- 72m²
Kosten
- Kaufpreis Brutto
- € 227.000,00
- Betriebskosten
- € 126,39
- Heizkosten
- € 30,00
- Sonstige Kosten
- € 86,67
Verwaltung
- Verfügbar ab
- sofort
Wohnungen zum Kaufen in Österreich
- Bezirk Gemeindebezirk Floridsdorf
- Bezirk Gemeindebezirk Floridsdorf
- Bezirk Gemeindebezirk Floridsdorf
- Bezirk Gemeindebezirk Brigittenau
- Bezirk Gemeindebezirk Brigittenau
- Bezirk Gemeindebezirk Brigittenau
- Bezirk Gemeindebezirk Döbling
- Bezirk Gemeindebezirk Döbling
- Bezirk Gemeindebezirk Döbling
- Bezirk Gemeindebezirk Leopoldstadt
Wohnungen zum Kaufen in Österreich
Wohnungen zum Kaufen in Österreich
Andere Besucher suchen nach...
- Grundstücke kaufen in 3400 Weidlingbach
- Wohnungen kaufen in 4663 Laakirchen
- Häuser in 7471 Rechnitz
- Wohnungen in 2410 Hainburg an der Donau
- Häuser kaufen in 2432 Schwadorf
- Wohnungen kaufen in 3002 Purkersdorf
- Häuser in 3150 Wilhelmsburg
- Wohnungen kaufen in 3470 Engelmannsbrunn
- Grundstücke kaufen im Bezirk Mattersburg
- Grundstücke kaufen im Bezirk Gmunden