"NADIAs" Wohnträume - 13 Neubauwohnungen, 1 Geschäftslokal und 1 Büro
-
Erstbezug
-
sofort
Beschreibung
Zum Verkauf gelangen in Wien 1210 Stammersdorf
- 13 Wohnungen
- 1 Geschäftslokal
- 1 Büro mit Gartenfläche
mit folgenden Einheiten:
HIER FINDEN SIE ALLE EINHEITEN IM ÜBERBLICK
Alle Tops sind für Eigennutzung erwerbbar als auch in einer Anlegervariante mit ausgewiesener MWSt.
Technische Details:
- Wärmeversorgung erfolgt zentral über eine Luft/Wasser Wärmepumpe
- Fußbodenheizung
- jede Einheit erhält einen Mietwärmemengenzähler (Heizung) bzw. Mietwasserzähler (Kalt-/Warmwasser)
- digitaler Raumthermostat im Wohnzimmer
- Trinkwassererwärmung über Speicherladesystem (2 x 1000 Liter)
- DG-Wohnungen Split-Klimaanlagen
- Kunststoff-Alu Fenster mit 3-fach Verglasung
- Bad, WC, Vorraum, Gang, Abstellraum: Fliesen 120 x 60...
Zum Verkauf gelangen in Wien 1210 Stammersdorf
- 13 Wohnungen
- 1 Geschäftslokal
- 1 Büro mit Gartenfläche
mit folgenden Einheiten:
HIER FINDEN SIE ALLE EINHEITEN IM ÜBERBLICK
Alle Tops sind für Eigennutzung erwerbbar als auch in einer Anlegervariante mit ausgewiesener MWSt.
Technische Details:
- Wärmeversorgung erfolgt zentral über eine Luft/Wasser Wärmepumpe
- Fußbodenheizung
- jede Einheit erhält einen Mietwärmemengenzähler (Heizung) bzw. Mietwasserzähler (Kalt-/Warmwasser)
- digitaler Raumthermostat im Wohnzimmer
- Trinkwassererwärmung über Speicherladesystem (2 x 1000 Liter)
- DG-Wohnungen Split-Klimaanlagen
- Kunststoff-Alu Fenster mit 3-fach Verglasung
- Bad, WC, Vorraum, Gang, Abstellraum: Fliesen 120 x 60 cm
- restliche Räume: Parkett Eiche geölt
- außenliegender Sonnenschutz, elektrisch mit Fernbedienung
- Balkon-/Terrassenplatten aus Holz-Kunststoff WPC, Geländer Glas und Niro
- Telefon/Daten: Leerverrohrung im Vorzimmer, TV: Anschluss im Wohnzimmer, restliche Räume Leerverrohrung
- allgemeiner Garten
Im Kellergeschoß befindet sich die Tiefgarage mit insgesamt 9 KFZ-Stellplätzen (Kaufpreis € 25.000,00), Kinderwagen- und Fahrradabstellraum sowie die Kellerabteile.
In fußläufiger Entfernung befindet sich ein großer Lebensmittelmarkt und Geschäfte des täglichen Bedarfs, für die öffentliche Anbindung sorgt z.B. die Straßenbahnlinie 31 direkt nach Wien Floridsdorf, Anbindung an die S- und U-Bahn, Linie 30 und Buslinien.
Kindergärten und Schulen befinden sich in der Nähe, für alle Notfälle wäre die Klinik Floridsdorf in nicht einmal 10 Minuten zu erreichen.
Genaue Bau- und Ausstattungsbeschreibung sowie Detailpläne werden bei Exposédownload mitversandt.
BITTE BEACHTEN SIE, DASS WIR AUFGRUND DER NACHWEISPFLICHT GEGENÜBER DEM EIGENTÜMER NUR ANFRAGEN MIT VOLLSTÄNDIGER ANGABE DER ANSCHRIFT UND ANGABEN ZUR PERSON (NAME, TELEFON, E-MAIL) BEARBEITEN KÖNNEN.
Wir weisen darauf hin, dass zwischen dem Vermittler und dem zu vermittelnden Dritten ein familiäres oder wirtschaftliches Naheverhältnis besteht.
Der Vermittler ist als Doppelmakler tätig.
Infrastruktur / Entfernungen
Gesundheit
Arzt <500m
Apotheke <500m
Klinik <4.000m
Krankenhaus <1.000m
Kinder & Schulen
Schule <1.000m
Kindergarten <1.000m
Universität <1.500m
Höhere Schule <5.500m
Nahversorgung
Supermarkt <500m
Bäckerei <500m
Einkaufszentrum <3.500m
Sonstige
Geldautomat <500m
Bank <500m
Post <3.000m
Polizei <1.000m
Verkehr
Bus <500m
U-Bahn <3.500m
Straßenbahn <500m
Bahnhof <3.500m
Autobahnanschluss <4.000m
Angaben Entfernung Luftlinie / Quelle: OpenStreetMap
Objektdaten
Ausstattung
- Gartennutzung
- Kabel/SAT-TV
- Teeküche
- Fahrradraum
- Bad mit Dusche
- Fliesenboden
- Parkettboden
- Fußbodenheizung
- Luftwärmepumpe
- Personen Fahrstuhl
- Ausrichtung Balkon/Terrasse - Ost
- Massiv Bauweise
Zustand
- Zustand
- ERSTBEZUG
- Alter
- NEUBAU
- HWB
- 29.35 kWh/m² pro Jahr
- Klasse HWB
- B
- fGEE
- 0.71
- Klasse fGEE
- A
Flächen
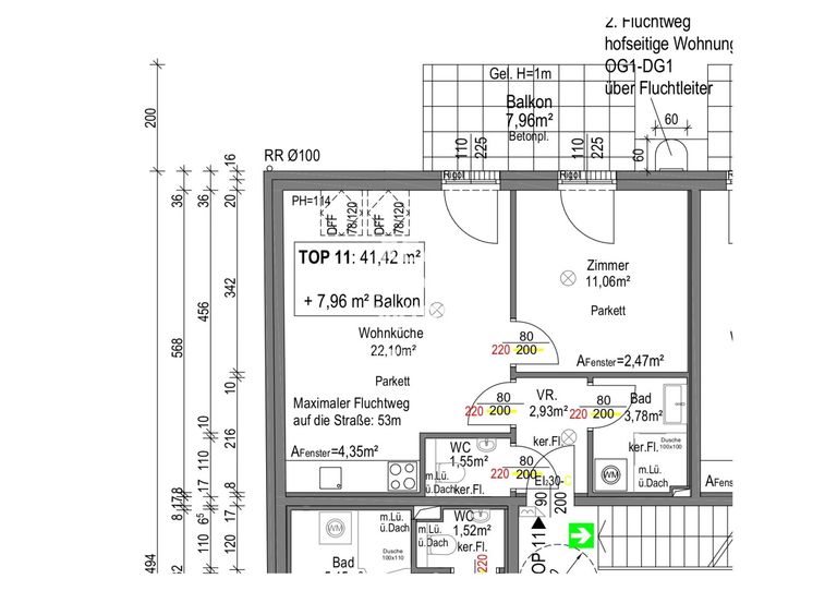
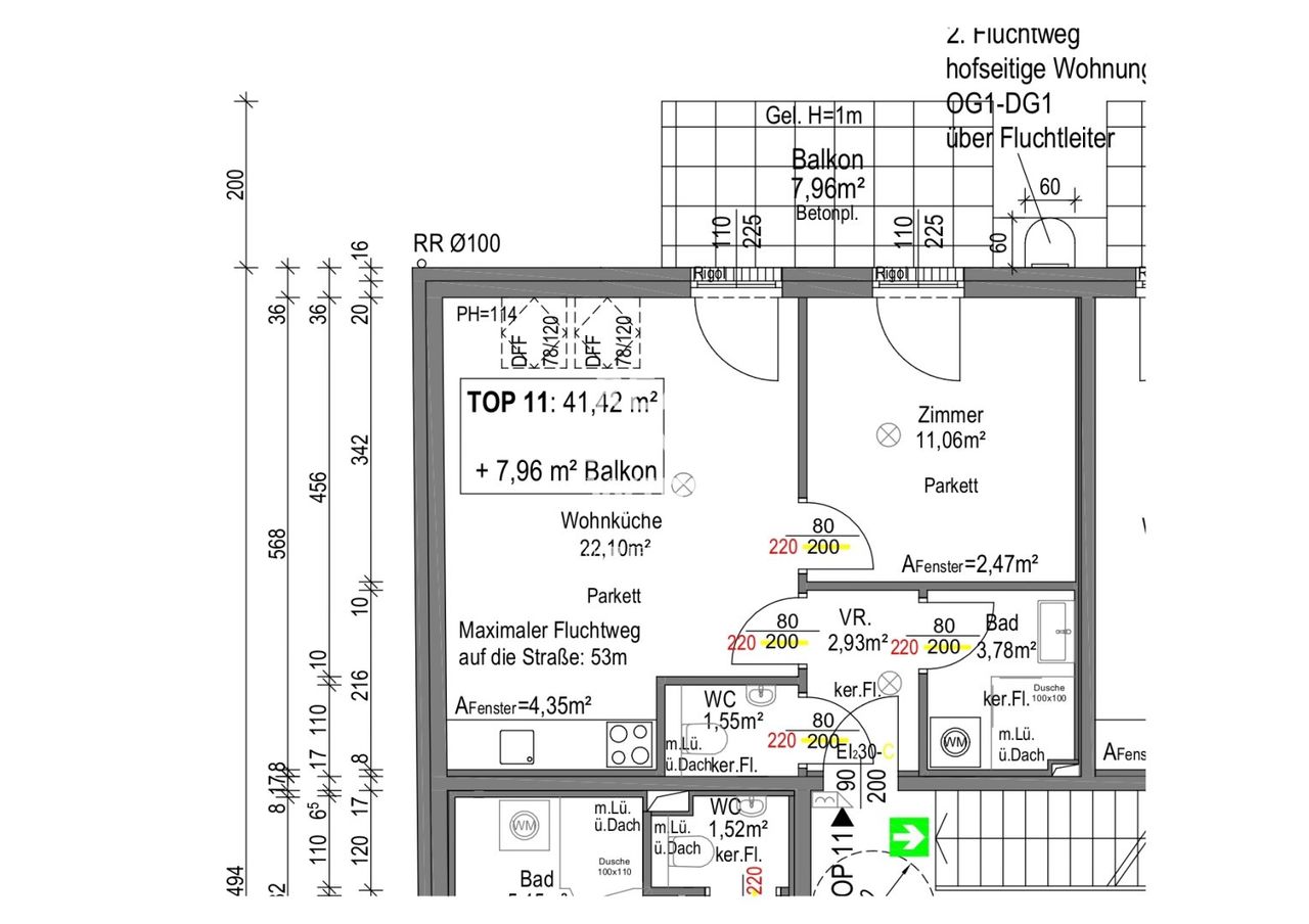
- Anzahl der Zimmer
- 2
- Anzahl der Badezimmer
- 1
- Anzahl der sep. WCs
- 1
- Anzahl der Balkone
- 1
- Wohnfläche
- 41m²
- Nutzfläche
- 41m²
Kosten
- Kaufpreis Brutto
- € 249.000,00
Verwaltung
- Verfügbar ab
- sofort
Wohnungen zum Kaufen in Österreich
- Bezirk Gemeindebezirk Floridsdorf
- Bezirk Gemeindebezirk Floridsdorf
- Bezirk Gemeindebezirk Floridsdorf
- Bezirk Gemeindebezirk Brigittenau
- Bezirk Gemeindebezirk Brigittenau
- Bezirk Gemeindebezirk Brigittenau
- Bezirk Gemeindebezirk Döbling
- Bezirk Gemeindebezirk Döbling
- Bezirk Gemeindebezirk Döbling
- Bezirk Gemeindebezirk Leopoldstadt
Wohnungen zum Kaufen in Österreich
Wohnungen zum Kaufen in Österreich
Andere Besucher suchen nach...
- Grundstücke kaufen in 3400 Weidlingbach
- Wohnungen kaufen in 4663 Laakirchen
- Häuser in 7471 Rechnitz
- Wohnungen in 2410 Hainburg an der Donau
- Häuser kaufen in 2432 Schwadorf
- Wohnungen kaufen in 3002 Purkersdorf
- Häuser in 3150 Wilhelmsburg
- Wohnungen kaufen in 3470 Engelmannsbrunn
- Grundstücke kaufen im Bezirk Mattersburg
- Grundstücke kaufen im Bezirk Gmunden