NEUBAU – 12 exklusive Eigentumswohnungen in Stammersdorf | Baustart Frühling 2026
-
Erstbezug
-
2027
-
4/2027
Beschreibung
Inmitten der beliebten Heurigengegend von Stammersdorf entsteht ein hochwertiges Neubauprojekt mit nur 12 exklusiven Eigentumswohnungen. Die Wohnanlage vereint modernes Wohnen mit naturnaher Lage am Fuße des Bisambergs – ideal für Menschen, die Ruhe suchen und dennoch nicht auf urbane Anbindung verzichten möchten.
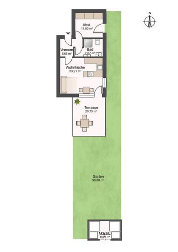
Die durchdachten Grundrisse bieten 2 bis 3 Zimmer auf rund 42–66 m² Wohnfläche. Jede Wohnung verfügt über großzügige Terrassen oder Balkone, im Erdgeschoss auch über eigene Gärten. Ein Kellerabteil ist im Kaufpreis inkludiert, Tiefgaragenplätze sind optional verfügbar.
Lage & Infrastruktur
Die Sandtnergasse befindet sich in einer ruhigen Seitenstraße – naturnah und dennoch gut angebunden:
- ...
Inmitten der beliebten Heurigengegend von Stammersdorf entsteht ein hochwertiges Neubauprojekt mit nur 12 exklusiven Eigentumswohnungen. Die Wohnanlage vereint modernes Wohnen mit naturnaher Lage am Fuße des Bisambergs – ideal für Menschen, die Ruhe suchen und dennoch nicht auf urbane Anbindung verzichten möchten.
Die durchdachten Grundrisse bieten 2 bis 3 Zimmer auf rund 42–66 m² Wohnfläche. Jede Wohnung verfügt über großzügige Terrassen oder Balkone, im Erdgeschoss auch über eigene Gärten. Ein Kellerabteil ist im Kaufpreis inkludiert, Tiefgaragenplätze sind optional verfügbar.
Lage & Infrastruktur
Die Sandtnergasse befindet sich in einer ruhigen Seitenstraße – naturnah und dennoch gut angebunden:
Straßenbahnlinie 31 (Station: Stammersdorf) in ca. 7 Gehminuten
Buslinien N31, 125 fußläufig erreichbar
Ca. 20 Minuten Fahrzeit mit dem Auto ins Stadtzentrum (Stephansplatz)
Supermärkte, Bäcker, Apotheken sowie Heurige & Weingüter in direkter Umgebung
Naherholungsgebiete wie der Bisamberg, der Marchfeldkanal und die Donauinsel bieten Erholung, Radwege & Natur pur
Bildungseinrichtungen in der Umgebung
Das Projekt ist besonders familienfreundlich gelegen – folgende Einrichtungen befinden sich in kurzer Gehdistanz:
Kindergärten & Volksschulen (z. B. Volksschule Pastorstraße, VS Stammersdorf)
Neue Mittelschulen (z. B. NMS Jochbergengasse)
Allgemeinbildende höhere Schulen (AHS) wie das GRG 21 Franklinstraße oder das BRG Ödenburger Straße
Bildungscampus Willi Resetarits mit Ganztagesbetreuung in VS & NMS
Highlights der Ausstattung
Schlüsselfertige Ausführung
Alle Wohnungen zentral vom Vorzimmer aus begehbar
Zentrale Wärmepumpe – ökologisch & ökonomisch
Fußbodenheizung mit individueller Raumsteuerung
Raumkühlung über Verrohrung in der warmen Jahreszeit
Hochwertige Fenster mit 3-fach-Verglasung & Raffstores
Markensanitärausstattung (Grohe, Geberit)
Bodengleiche Duschen mit Glastrennwänden
Hochwertiger Dielenparkett in allen Wohnräumen
Video-Gegensprechanlage & Zentralschließanlage
Lift, Fahrrad- & Kinderwagenraum, Kellerabteile inkludiert
Tiefgaragenstellplätze gegen Aufpreis (€ 30.000,–)
Projektdetails
Adresse: Sandtnergasse 32, 1210 Wien
Einheiten: 12 Eigentumswohnungen
Zimmer: 2–3
Wohnflächen: ca. 42–66 m²
Freiflächen: Balkone, Terrassen oder Eigengärten
Baubeginn: Frühling 2026
Fertigstellung: Sommer 2027
Tiefgarage: Stellplätze optional um € 30.000,–
Jetzt vormerken lassen!
Profitieren Sie von der frühen Phase dieses attraktiven Neubauprojekts und sichern Sie sich Ihre Traumwohnung mit Garten, Balkon oder Dachterrasse. Gerne stehen wir Ihnen für Fragen oder ein Beratungsgespräch zur Verfügung.
Wir weisen darauf hin, dass zwischen dem Vermittler und dem zu vermittelnden Dritten ein familiäres oder wirtschaftliches Naheverhältnis besteht.
Der Vermittler ist als Doppelmakler tätig.
Infrastruktur / Entfernungen
Gesundheit
Arzt <500m
Apotheke <1.000m
Klinik <4.000m
Krankenhaus <1.000m
Kinder & Schulen
Schule <1.000m
Kindergarten <1.000m
Universität <2.000m
Höhere Schule <5.500m
Nahversorgung
Supermarkt <500m
Bäckerei <500m
Einkaufszentrum <3.500m
Sonstige
Geldautomat <500m
Bank <500m
Post <3.000m
Polizei <1.000m
Verkehr
Bus <500m
U-Bahn <4.000m
Straßenbahn <500m
Bahnhof <3.500m
Autobahnanschluss <4.000m
Angaben Entfernung Luftlinie / Quelle: OpenStreetMap
Objektdaten
Ausstattung
- Klimatisiert
- Steinboden
- Parkettboden
- Zentralheizung
- Luftwärmepumpe
- Personen Fahrstuhl
- Massiv Bauweise
Zustand
- Zustand
- ERSTBEZUG
- Baujahr
- 2027
- Alter
- NEUBAU
- HWB
- 31.6 kWh/m² pro Jahr
- Klasse HWB
- B
- fGEE
- 0.63
- Klasse fGEE
- A+
Flächen
- Anzahl der Zimmer
- 2
- Anzahl der Badezimmer
- 1
- Anzahl der sep. WCs
- 1
- Anzahl der Terrassen
- 1
- Wohnfläche
- 49m²
- Gartenfläche
- 95m²
- Kellerfläche
- 2m²
- Terrassenfläche
- 1m²
Kosten
- Kaufpreis Brutto
- € 445.000,00
Verwaltung
- Verfügbar ab
- 4/2027
Wohnungen zum Kaufen in Österreich
- Bezirk Gemeindebezirk Floridsdorf
- Bezirk Gemeindebezirk Floridsdorf
- Bezirk Gemeindebezirk Floridsdorf
- Bezirk Gemeindebezirk Brigittenau
- Bezirk Gemeindebezirk Brigittenau
- Bezirk Gemeindebezirk Brigittenau
- Bezirk Gemeindebezirk Döbling
- Bezirk Gemeindebezirk Döbling
- Bezirk Gemeindebezirk Döbling
- Bezirk Gemeindebezirk Leopoldstadt
Wohnungen zum Kaufen in Österreich
Wohnungen zum Kaufen in Österreich
Andere Besucher suchen nach...
- Grundstücke kaufen in 3400 Weidlingbach
- Wohnungen kaufen in 4663 Laakirchen
- Häuser in 7471 Rechnitz
- Wohnungen in 2410 Hainburg an der Donau
- Häuser kaufen in 2432 Schwadorf
- Wohnungen kaufen in 3002 Purkersdorf
- Häuser in 3150 Wilhelmsburg
- Wohnungen kaufen in 3470 Engelmannsbrunn
- Grundstücke kaufen im Bezirk Mattersburg
- Grundstücke kaufen im Bezirk Gmunden