++Ruhig ++ KFZ Stellplatz ++ U1 Nähe++
€ 269.000
€ 4.138 / m²
1210 Wien
-
sofort
Beschreibung
"++ Ruhig ++ KFZ Stellplatz ++ U1 Nähe ++ Diese neu renovierte Wohnung wartet ab sofort in Top-Zustand in ruhiger Lage im 1. Liftstock eines gepflegten Neubaus in der Lhotskygasse 11, 1210 Wien (Leopoldau) auf Ihre(n) neuen Eigentümer. Es gibt ein großes Wohnzimmer, in das die verbaute Loggia integriert wurde, einen weiteren zentral begehbaren Wohnraum, eine komplett eingerichtete Küche (DAN) mit Essbereich inklusive Geräten und Waschmaschinenanschluss und über den Vorraum sind das Badezimmer, das separate WC sowie ein Abstellraum erreichbar. Sämtliche Fenster sowie auch die Loggia sind nach Westen ausgerichtet. Ein KFZ-Stellplatz ist bereits inkludiert! Der Energieausweis (HWB und...
"++ Ruhig ++ KFZ Stellplatz ++ U1 Nähe ++
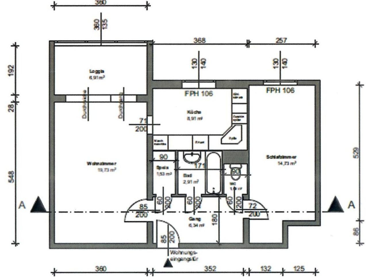
Diese neu renovierte Wohnung wartet ab sofort in Top-Zustand in ruhiger Lage im 1. Liftstock eines gepflegten Neubaus in der Lhotskygasse 11, 1210 Wien (Leopoldau) auf Ihre(n) neuen Eigentümer.
Es gibt ein großes Wohnzimmer, in das die verbaute Loggia integriert wurde, einen weiteren zentral begehbaren Wohnraum, eine komplett eingerichtete Küche (DAN) mit Essbereich inklusive Geräten und Waschmaschinenanschluss und über den Vorraum sind das Badezimmer, das separate WC sowie ein Abstellraum erreichbar. Sämtliche Fenster sowie auch die Loggia sind nach Westen ausgerichtet. Ein KFZ-Stellplatz ist bereits inkludiert!
Der Energieausweis (HWB und fGEE - Werte) wurde für diese Wohnung separat erstellt. Über einen kleinen Umweg über Stiege 1 ist diese Wohnung bei Bedarf auch barrierefrei erreichbar.
Ein Abstellraum für Kinderwägen sowie eine Waschküche befinden sich im Erdgeschoss.
Die Anbindung an das öffentliche Verkehrsnetz ist optimal: die U-Bahn Station (U1) Aderklaaer Straße befindet sich (zu Fuß) nur wenige Minuten entfernt, das Zentrum Wiens ist von hier somit in 25 Minuten bequem zu erreichen.
Sämtliche Infrastruktur zur Deckung des täglichen Bedarfs (das Citygate ist in der direkten Nachbarschaft!) sowie Kinderbetreuung, Schulen und medizinische Versorgung sowie Gastronomie und Freizeitmöglichkeiten sind in unmittelbarer Umgebung bestens erreichbar. Eine detaillierte Umgebungsanalyse steht selbstverständlich zur Verfügung.
Der Preis NUR € 269.000,--
Finanzierungsvorschlag: Eigenmittel ca. € 53.800,--/monatlich € 1.076,--
Der Vermittler ist als Doppelakler tätig.
Diese neu renovierte Wohnung wartet ab sofort in Top-Zustand in ruhiger Lage im 1. Liftstock eines gepflegten Neubaus in der Lhotskygasse 11, 1210 Wien (Leopoldau) auf Ihre(n) neuen Eigentümer.
Es gibt ein großes Wohnzimmer, in das die verbaute Loggia integriert wurde, einen weiteren zentral begehbaren Wohnraum, eine komplett eingerichtete Küche (DAN) mit Essbereich inklusive Geräten und Waschmaschinenanschluss und über den Vorraum sind das Badezimmer, das separate WC sowie ein Abstellraum erreichbar. Sämtliche Fenster sowie auch die Loggia sind nach Westen ausgerichtet. Ein KFZ-Stellplatz ist bereits inkludiert!
Der Energieausweis (HWB und fGEE - Werte) wurde für diese Wohnung separat erstellt. Über einen kleinen Umweg über Stiege 1 ist diese Wohnung bei Bedarf auch barrierefrei erreichbar.
Ein Abstellraum für Kinderwägen sowie eine Waschküche befinden sich im Erdgeschoss.
Die Anbindung an das öffentliche Verkehrsnetz ist optimal: die U-Bahn Station (U1) Aderklaaer Straße befindet sich (zu Fuß) nur wenige Minuten entfernt, das Zentrum Wiens ist von hier somit in 25 Minuten bequem zu erreichen.
Sämtliche Infrastruktur zur Deckung des täglichen Bedarfs (das Citygate ist in der direkten Nachbarschaft!) sowie Kinderbetreuung, Schulen und medizinische Versorgung sowie Gastronomie und Freizeitmöglichkeiten sind in unmittelbarer Umgebung bestens erreichbar. Eine detaillierte Umgebungsanalyse steht selbstverständlich zur Verfügung.
Der Preis NUR € 269.000,--
Finanzierungsvorschlag: Eigenmittel ca. € 53.800,--/monatlich € 1.076,--
Der Vermittler ist als Doppelakler tätig.
| Angaben gemäß gesetzlichem Erfordernis: | |||
| Heizwärmebedarf: | 95.0 kWh/(m²a) | ||
| Klasse Heizwärmebedarf: | C | ||
Objektdaten
Ausstattung
- WG geeignet
- Rollstuhlgerecht
- Kabel/SAT-TV
- Zentralheizung
- Fern Befeuerung
- Personen Fahrstuhl
- Kabel/SAT-TV
- Küche Möbliert
- Rollstuhlgerecht
- Kabel/SAT-TV
- Zentralheizung mit Fernwärme
Zustand
- Zustand
- GEPFLEGT
- Baujahr
- ca. 1975
Flächen
- Anzahl der Zimmer
- 2
- Anzahl der Badezimmer
- 1
- Anzahl der sep. WCs
- 1
- Wohnfläche
- 65m²
Kosten
- Kaufpreis
- € 269.000,00
- Nebenkosten
- € 263,57
- Betriebskosten Brutto
- € 263,57
Verwaltung
- Verfügbar ab
- sofort
Wohnungen zum Kaufen in Österreich
- Bezirk Gemeindebezirk Floridsdorf
- Bezirk Gemeindebezirk Floridsdorf
- Bezirk Gemeindebezirk Floridsdorf
- Bezirk Gemeindebezirk Donaustadt
- Bezirk Gemeindebezirk Donaustadt
- Bezirk Gemeindebezirk Donaustadt
- Bezirk Gemeindebezirk Leopoldstadt
- Bezirk Gemeindebezirk Leopoldstadt
- Bezirk Gemeindebezirk Leopoldstadt
- Bezirk Gemeindebezirk Brigittenau
Wohnungen zum Kaufen in Österreich
Wohnungen zum Kaufen in Österreich
Andere Besucher suchen nach...
- Grundstücke kaufen in 3400 Weidlingbach
- Wohnungen kaufen in 4663 Laakirchen
- Häuser in 7471 Rechnitz
- Wohnungen in 2410 Hainburg an der Donau
- Häuser kaufen in 2432 Schwadorf
- Wohnungen kaufen in 3002 Purkersdorf
- Häuser in 3150 Wilhelmsburg
- Wohnungen kaufen in 3470 Engelmannsbrunn
- Grundstücke kaufen im Bezirk Mattersburg
- Grundstücke kaufen im Bezirk Gmunden