Erstbezug! Sehr schön aufgeteilte 3-Zimmer Wohnung mit toller 24 m² Terrasse - Nähe Floridsdorfer Bahnhof
-
Erstbezug
-
Sofort
Beschreibung
1210 WIEN - NORDBAHNANLAGE 4
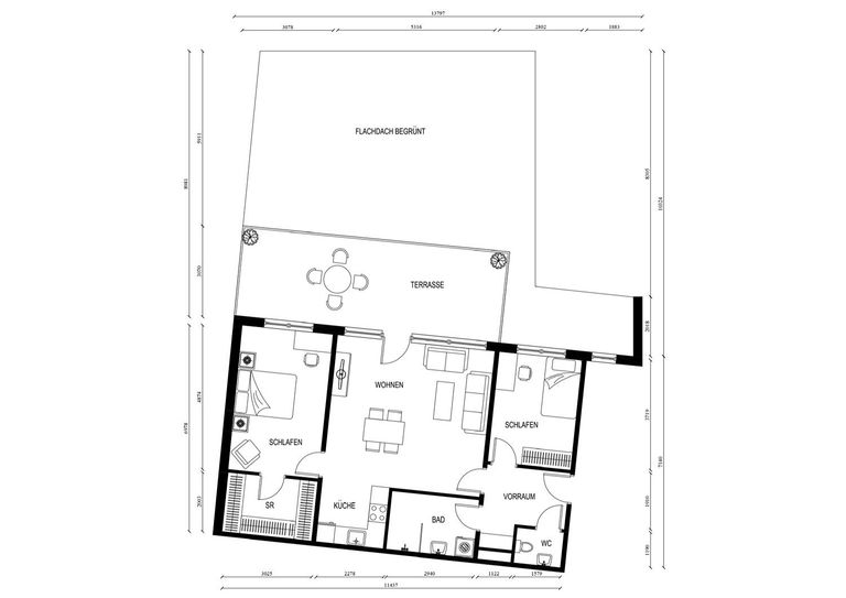
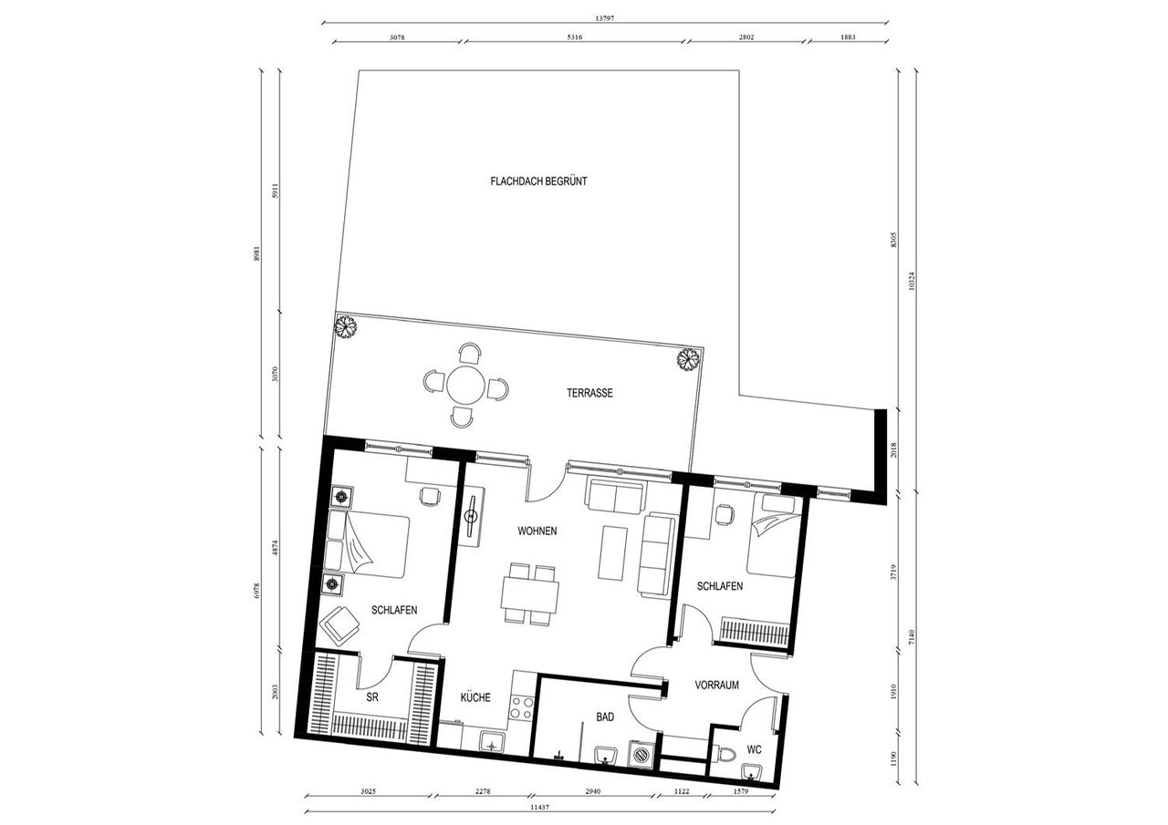
Diese sehr schön aufgeteilte 3 Zimmerwohnung (mit 2 Schlafzimmer) hat eine Wohnfläche von ca. 75,86 m² eine tolle Terrassenfläche von 24,35 m² und befindet sich im 1.Stock (Innenhof ausgerichtet). Floridsdorfer Bahnhof ist in wenigen Minuten erreichbar. Die Liegenschaft wurde von der STRABAG BAU AG errichtet.
Große Glaselemente im Wohnbereich mit Ausgang auf die tolle 24,58m² Terrasse.
Raumaufteilung:
- 1 Wohn-Esszimmer mit Terrasse
- 2 Schlafzimmer
- 1 Badezimmer
- 1 WC
- 1 Vorzimmer
- 1 Abstellrau
Die Übergabe erfolgt in schlüsselfertiger Ausstattung. Die Einrichtung wurde mit KI erstellt. Es besteht die Möglichkeit einen...
1210 WIEN - NORDBAHNANLAGE 4
Diese sehr schön aufgeteilte 3 Zimmerwohnung (mit 2 Schlafzimmer) hat eine Wohnfläche von ca. 75,86 m² eine tolle Terrassenfläche von 24,35 m² und befindet sich im 1.Stock (Innenhof ausgerichtet). Floridsdorfer Bahnhof ist in wenigen Minuten erreichbar. Die Liegenschaft wurde von der STRABAG BAU AG errichtet.
Große Glaselemente im Wohnbereich mit Ausgang auf die tolle 24,58m² Terrasse.
Raumaufteilung:
- 1 Wohn-Esszimmer mit Terrasse
- 2 Schlafzimmer
- 1 Badezimmer
- 1 WC
- 1 Vorzimmer
- 1 Abstellrau
Die Übergabe erfolgt in schlüsselfertiger Ausstattung. Die Einrichtung wurde mit KI erstellt. Es besteht die Möglichkeit einen Autoabstellplatz in der hauseigenen Tiefgarage zu kaufen.
Ausstattung
- Alle Wohnungen mit Kühlfunktion (Mittels Wärmepumpe)
- Moderne Hauszentralheizung (Anlagencontracting)
- Fußbodenheizung
- Moderne Sanitärbereiche
- 3 fach Isolierverglasung
- Eichenparkettböden
- Großformatige Fliesen
Gemeinflächen:
Fahrrad- und Kinderwagenabstellraum, Liftanlage, kleiner Spielplatz im Innenhof.
Wir weisen darauf hin, dass zwischen dem Vermittler und dem zu vermittelnden Dritten ein familiäres oder wirtschaftliches Naheverhältnis besteht.
Der Vermittler ist als Doppelmakler tätig.
Infrastruktur / Entfernungen
Gesundheit
Arzt <125m
Apotheke <325m
Klinik <750m
Krankenhaus <925m
Kinder & Schulen
Schule <375m
Kindergarten <275m
Universität <600m
Höhere Schule <650m
Nahversorgung
Supermarkt <200m
Bäckerei <300m
Einkaufszentrum <275m
Sonstige
Geldautomat <250m
Bank <250m
Post <150m
Polizei <375m
Verkehr
Bus <275m
U-Bahn <125m
Straßenbahn <300m
Bahnhof <400m
Autobahnanschluss <675m
Angaben Entfernung Luftlinie / Quelle: OpenStreetMap
Objektdaten
Ausstattung
- Kabel/SAT-TV
- Barrierefrei
- Fahrradraum
- Bad mit Dusche
- Offene Küche
- Zentralheizung
- Fußbodenheizung
- Befeuerung mit Gas
- Luftwärmepumpe
- Personen Fahrstuhl
Dokumente / Links
Zustand
- Zustand
- ERSTBEZUG
- Alter
- NEUBAU
- HWB
- 29.7 kWh/m² pro Jahr
- Klasse HWB
- B
- fGEE
- 0.87
- Klasse fGEE
- B
Flächen
- Anzahl der Zimmer
- 3
- Anzahl der Badezimmer
- 1
- Anzahl der sep. WCs
- 1
- Anzahl der Terrassen
- 1
- Wohnfläche
- 76m²
- Nutzfläche
- 87m²
- Terrassenfläche
- 1m²
Kosten
- Kaufpreis Brutto
- € 425.000,00
- Betriebskosten
- € 166,13
- Sonstige Kosten
- € 41,00
Verwaltung
- Verfügbar ab
- Sofort
Wohnungen zum Kaufen in Österreich
- Bezirk Gemeindebezirk Floridsdorf
- Bezirk Gemeindebezirk Floridsdorf
- Bezirk Gemeindebezirk Floridsdorf
- Bezirk Gemeindebezirk Brigittenau
- Bezirk Gemeindebezirk Brigittenau
- Bezirk Gemeindebezirk Brigittenau
- Bezirk Gemeindebezirk Leopoldstadt
- Bezirk Gemeindebezirk Leopoldstadt
- Bezirk Gemeindebezirk Leopoldstadt
- Bezirk Gemeindebezirk Alsergrund
Wohnungen zum Kaufen in Österreich
Andere Besucher suchen nach...
- Immobilien kaufen in 2601 Sollenau
- Immobilien in 4951 Polling im Innkreis, Oberösterreich
- Immobilien in 4742 Pram, Oberösterreich kaufen oder mieten
- Häuser kaufen in 2340 Mödling, Niederösterreich
- Häuser kaufen in 9421 Gemmersdorf, Kärnten
- Wohnungen / Eigentumswohnungen kaufen in 9431 St. Stefan, Kärnten
- Häuser kaufen in Bruck an der Leitha, Niederösterreich
- Immobilien mieten in Krems an der Donau, Niederösterreich
- Häuser zum Kaufen im Bezirk St. Pölten Land, Niederösterreich
- Büro / Praxen mieten in Rohrbach, Oberösterreich