Großzügige 3 Zimmer in der Donaustadt - Lebensqualität inklusive!
-
sofort
Beschreibung
Willkommen in Ihrem neuen Zuhause in der Donaustadt!
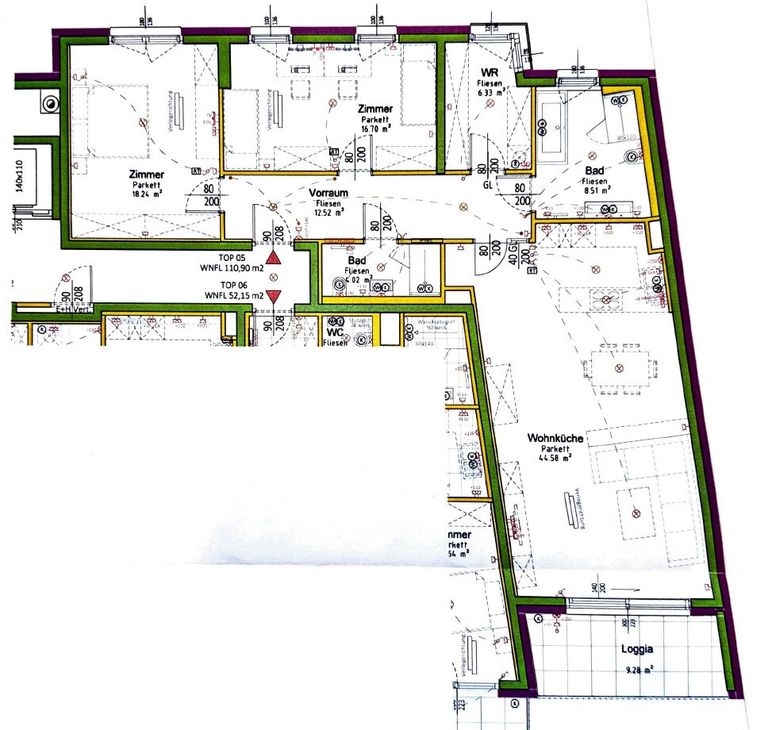
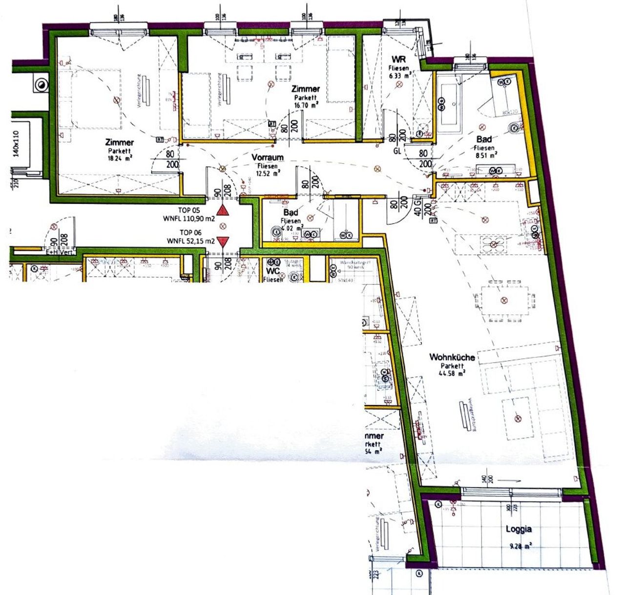
Diese neuwertige Wohnung bietet Ihnen alles, was Sie sich für ein modernes und komfortables Wohnen wünschen. Mit einer großzügigen Wohnfläche von 110,9 m² und einer durchdachten Raumaufteilung werden Sie sich hier sofort wohlfühlen.
Die Wohnung befindet sich in der 1. Etage eines gepflegten, von Glorit errichteten, Mehrfamilienhauses und überzeugt durch ihre Helligkeit und den durchdachten Grundriss. Der großzügige Wohnbereich ist der perfekte Ort, um entspannte Abende mit Familie und Freunden zu verbringen. Genießen Sie die Sonne auf Ihrem eigenen Südbalkon, der Ihnen nicht nur einen Platz zum verweilen, sondern auch...
Willkommen in Ihrem neuen Zuhause in der Donaustadt!
Diese neuwertige Wohnung bietet Ihnen alles, was Sie sich für ein modernes und komfortables Wohnen wünschen. Mit einer großzügigen Wohnfläche von 110,9 m² und einer durchdachten Raumaufteilung werden Sie sich hier sofort wohlfühlen.
Die Wohnung befindet sich in der 1. Etage eines gepflegten, von Glorit errichteten, Mehrfamilienhauses und überzeugt durch ihre Helligkeit und den durchdachten Grundriss. Der großzügige Wohnbereich ist der perfekte Ort, um entspannte Abende mit Familie und Freunden zu verbringen. Genießen Sie die Sonne auf Ihrem eigenen Südbalkon, der Ihnen nicht nur einen Platz zum verweilen, sondern auch einen idealen Ort für Ihre persönlichen Rückzugsmomente bietet.
Die moderne Einbauküche ist mit hochwertigen Miele - Geräten ausgestattet und lädt zum Kochen und Genießen ein. Hier können Sie Ihrer Kreativität freien Lauf lassen und kulinarische Köstlichkeiten zaubern. Zwei gut geschnittene Bäder, eines mit Badewanne und das andere mit Dusche, sowie zwei integrierte WCs sorgen für zusätzlichen Komfort und Flexibilität – ideal für Familien und Gäste.
Die Fußbodenheizung und die zentrale Heizungsanlage garantieren ein angenehmes Raumklima zu jeder Jahreszeit. Ein Personenaufzug erleichtert den Zugang zu Ihrer Wohnung und sorgt für zusätzlichen Komfort.
Die Lage dieser Immobilie ist unschlagbar. In der näheren Umgebung finden Sie alles, was Sie für den täglichen Bedarf benötigen: Ärzte, Apotheken, Schulen, Kindergärten, Supermärkte und Bäckereien sind nur einen kurzen Spaziergang entfernt. Auch die Verkehrsanbindung ist hervorragend – eine Bushaltestelle befindet sich in unmittelbarer Nähe, sodass Sie schnell und unkompliziert in die Innenstadt oder zu anderen wichtigen Punkten in Wien gelangen.
Diese Wohnung vereint modernen Wohnkomfort mit urbaner Lage und ist somit der perfekte Ort für Paare, Familien oder als Investition. Ein Kauf dieser Wohnung ist nicht nur eine Investition in Ihre Zukunft, sondern auch in Ihre Lebensqualität.
Zögern Sie nicht, sich diese Traumwohnung näher anzusehen. Vereinbaren Sie noch heute einen Besichtigungstermin und lassen Sie sich von dieser einzigartigen Immobilie begeistern! Ihr neues Zuhause in Wien wartet auf Sie.
Ihr Ansprechpartner:
Robert Holzmann, dipl. IM
Konzessionierter Immobilienmakler
Staatlich geprüfter Finanzierungsspezialist
+43 664 99 96 09 96
r.holzmann@hillinger-immobilien.at
Infrastruktur / Entfernungen
Gesundheit
Arzt <500m
Apotheke <500m
Klinik <1.500m
Krankenhaus <2.500m
Kinder & Schulen
Schule <1.000m
Kindergarten <1.000m
Universität <1.500m
Höhere Schule <1.500m
Nahversorgung
Supermarkt <500m
Bäckerei <1.000m
Einkaufszentrum <4.000m
Sonstige
Bank <500m
Geldautomat <500m
Post <1.000m
Polizei <1.500m
Verkehr
Bus <500m
U-Bahn <1.500m
Straßenbahn <1.500m
Bahnhof <1.500m
Autobahnanschluss <3.500m
Angaben Entfernung Luftlinie / Quelle: OpenStreetMap
Objektdaten
Ausstattung
- Kabel/SAT-TV
- Barrierefrei
- Bad mit Dusche
- Bad mit Badewanne
- Bad mit Fenster
- Einbauküche
- Zentralheizung
- Fußbodenheizung
- Fern Befeuerung
- Personen Fahrstuhl
- Ausrichtung Balkon/Terrasse - Süd
- Niedrigenergie
- Neubaustandard
Zustand
- Zustand
- NEUWERTIG
- Baujahr
- 2018
- Alter
- NEUBAU
- HWB
- 28.89 kWh/m² pro Jahr
- Klasse HWB
- A
- fGEE
- 0.76
- Klasse fGEE
- A
Flächen
- Anzahl der Badezimmer
- 2
- Anzahl der sep. WCs
- 2
- Anzahl der Logia
- 1
- Stellplätze
- 1
- Wohnfläche
- 111m²
- Nutzfläche
- 120m²
- Kellerfläche
- 6m²
Kosten
- Kaufpreis Brutto
- € 599.000,00
- Betriebskosten
- € 203,62
- Heizkosten
- € 70,61
- Sonstige Kosten
- € 168,70
Verwaltung
- Verfügbar ab
- sofort
Wohnungen zum Kaufen in Österreich
- Bezirk Gemeindebezirk Donaustadt
- Bezirk Gemeindebezirk Donaustadt
- Bezirk Gemeindebezirk Donaustadt
- Bezirk Gemeindebezirk Floridsdorf
- Bezirk Gemeindebezirk Floridsdorf
- Bezirk Gemeindebezirk Floridsdorf
- Bezirk Gemeindebezirk Leopoldstadt
- Bezirk Gemeindebezirk Leopoldstadt
- Bezirk Gemeindebezirk Leopoldstadt
- Bezirk Gemeindebezirk Landstrasse
Wohnungen zum Kaufen in Österreich
Wohnungen zum Kaufen in Österreich
Andere Besucher suchen nach...
- Grundstücke kaufen in 3400 Weidlingbach
- Wohnungen kaufen in 4663 Laakirchen
- Häuser in 7471 Rechnitz
- Wohnungen in 2410 Hainburg an der Donau
- Häuser kaufen in 2432 Schwadorf
- Wohnungen kaufen in 3002 Purkersdorf
- Häuser in 3150 Wilhelmsburg
- Wohnungen kaufen in 3470 Engelmannsbrunn
- Grundstücke kaufen im Bezirk Mattersburg
- Grundstücke kaufen im Bezirk Gmunden