Kirschblütenpark: neuwertige 2-Zimmer-Wohnung mit südöstl. Balkon und opt. Garagenstellplatz!
-
2023
Beschreibung
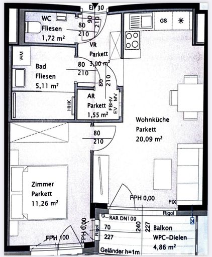
Zum Verkauf gelangt hier eine neuwertige und sehr gut geschnittene 2-Zimmer-Wohnung mit Balkon
und zusätzlich optionalem Garagenstellplatz im Neubauhaus mit Lift!
Die Wohnung ist sehr gut ausgestattet und gut gelegen in Richtung Süd-Osten.
Es erwartet Sie eine komplett ausgestattete Küche mit allen Geräten, eine schöne Wohnküche mit Zugang zum Balkon, ein Schlafzimmer auch mit Zugang zum Balkon, Badezimmer mit Dusche, Spiegelschrank, Waschmaschinenanschluss, separate Toilette mit Handwaschbecken, ein Abstellraum, und ein Balkon.
Die Küche ist mit Geräten ausgestattet: Backrohr, Ceranfeld, Dunstabzugshaube, Geschirrspüler.
Nebenan befindet sich ein praktischer Abstellraum und...
Zum Verkauf gelangt hier eine neuwertige und sehr gut geschnittene 2-Zimmer-Wohnung mit Balkon
und zusätzlich optionalem Garagenstellplatz im Neubauhaus mit Lift!
Die Wohnung ist sehr gut ausgestattet und gut gelegen in Richtung Süd-Osten.
Es erwartet Sie eine komplett ausgestattete Küche mit allen Geräten, eine schöne Wohnküche mit Zugang zum Balkon, ein Schlafzimmer auch mit Zugang zum Balkon, Badezimmer mit Dusche, Spiegelschrank, Waschmaschinenanschluss, separate Toilette mit Handwaschbecken, ein Abstellraum, und ein Balkon.
Die Küche ist mit Geräten ausgestattet: Backrohr, Ceranfeld, Dunstabzugshaube, Geschirrspüler.
Nebenan befindet sich ein praktischer Abstellraum und beim Eingang ein separat angelegtes WC und das Bad nebenan.
Die Zimmer sind mit schönem Eichen-Parkett verlegt worden.
Die Freifläche lädt zum Entspannen und Verweilen ein.
Der Vorraum bietet genug Platz für eine Garderobe an.
Das Bad ist mit einer bodenebenen Dusche mit Rainshower und Feinsteinzeugfliesen ausgestattet. Das Badezimmer und WC sind auch sauber verfliest und modern verglast.
Elektrisch bedienbare Außenjalousien, sowie Video-Gegensprechanlage mit App-Funktion. Bodentiefe Fenster (Dreifachverglasung); Eichenparkett; Fußbodenheizung; Fliesen, elektrische Aussenrollos, Lampen, etc. Kabel, Satelit- und Internetanschlüsse vorhanden.
Die Möbel (Bettgestell mit Lattenrost, Tisch mit Sesseln, Couch, Couchtisch, Stühle, Schränke und Kommoden) können auf Wunsch zusätzlich abgelöst werden.
Ein Kellerabteil ist der Wohnung als Zubehör zugeordnet.
Zusätzlich können noch einen Garagenstellplatz erwerben (€ 29.500,--) bei Bedarf.
Hausanlage:
Lift, Kellerabteil, Fahrrad- und Kinderwagenraum, sowie ein Hobbyraum / Kinderspielraum, Home/Office-Base; offene Foyer mit Pflanzenwand, begrünter Innenhof, Kleinkinder- und Jugendspielplatz und Sitzgelegenheit (Freibereiche) können mitbenützt werden.
Lage:
Nahe U1 - Kagraner Platz; hervorragende Nahversorgung und öffentliche Anbindung (U1, Straßenbahnlinie 26, Buslinie 22A) ist gewährleistet.
Das Donauzentrum und die Alte Donau sind fußläufig in rund 20 Minuten zu erreichen.
Die gute Lage dieses Objekts gewährleistete eine gute Infrastruktur und Verkehrsanbindung.
Öffentliche Anbindung: U1 Kagraner Platz, Kagran, Straßenbahnlinie 26 Saikogasse, Buslinie 22A Kagraner Platz.
Geschäfte des täglichen Bedarfs finden Sie in unmittelbarer Umgebung. Die nahe gelegene Alte Donau bietet Erholung und Freizeitmöglichkeiten. Sehr gute Einkaufsmöglichkeiten und gastronomische Versorgung in direkter Wohnumgebung. Viele Einkaufsmöglichkeiten im nahegelegenen Donauzentrum mit hunderten von Geschäften und Gastrobetrieben.
Zum Kirchblütenpark, Erste Bank Arena, Attemsgasse, Donaufelderstraße, Vienna International School, Japanische Schule, Donauzentrum, Donauplex, Segelschule, Sportcenter, Donaucity, Gänsehäufel, Strandbad, Alte Donau etc. sind es nur wenige Gehminuten entfernt.
Konditionen:
Kaufpreis: € 309.000,--
*Garagenstellplatz: € 29.500,-- *(extra bei Bedarf);
Grunderwerbssteuer: 3,5 % vom KP (Kaufpreis);
Grundbucheintragung: 1,1% vom KP (Möglichkeit auf Befreiung wenn Erstimmobilie und zum dringenden Wohnbedürfnis gekauft wird);
Kaufvertragserrichtungskosten + Notar: Treuhandschaft und Beglaubigungen: i.d.R.: ? (i.d.R. ca. 1,5 % vom KP + 20% MwSt.;
Maklerhonorar: 3 % vom KP + 20 % MwSt.
ev. Pfandrechtseintragungskosten: 1,2% vom KP (Möglichkeit auf Befreiung wenn Erstimmobilie und zum dringenden Wohnbedürfnis gekauft wird);
Dienstleistung für Anleger*innen:
Sie möchten nach Erwerb der Immobilie mit der Vermietung und eventuellen Fragen während des Mietverhältnisses nicht beschäftigt sein?
Wir stehen Ihnen mit einem Dienstleistungskonzept für Anleger zur Verfügung. Gerne übermitteln wir Ihnen bei Bedarf die Unterlagen hierfür.
Finanzierung:
Sie suchen nach einer passenden Finanzierung für dieses Objekt?
Um Ihnen Ihre wertvolle Zeit und Ihr Geld zu sparen, stehen wir Ihnen auch hier tatkräftig zur Seite!
Gerne stehen wir Ihnen für ein unverbindliches und kostenloses Erstberatungsgespräch zur Verfügung.
Wir beraten Sie verlässlich und professionell! Sparen Sie Ihre kostbare Zeit mit unzähligen Bankterminen.
Kontakt:
Bitte beachten Sie, dass wir aufgrund der Nachweispflicht gegenüber dem Eigentümer nur Anfragen mit vollständiger Angabe der Anschrift bearbeiten können.
Wir senden Ihnen gerne weitere und detaillierte Beschreibungen, sowie Besichtigungstermine zu, sobald wir Ihre Anfrage erhalten haben.
Wir bitten Sie daher um eine E-Mail-Anfrage an: office@pr-immobilien.at
Noch nichts gefunden? Wir informieren Sie über geeignete Immobilienangebote noch vor allen anderen.
Legen Sie jetzt Ihren individuellen Suchagenten unter folgendem Link an. Wir schicken Ihnen passende Immobilien exklusiv vorab zu.
Suchagent anlegen - https://pr-immobilien-real-estate.service.immo/registrieren/de
Der Vermittler ist als Doppelmakler tätig.
Infrastruktur / Entfernungen
Gesundheit
Arzt <500m
Apotheke <500m
Klinik <3.000m
Krankenhaus <3.000m
Kinder & Schulen
Schule <500m
Kindergarten <500m
Universität <1.000m
Höhere Schule <500m
Nahversorgung
Supermarkt <500m
Bäckerei <500m
Einkaufszentrum <1.000m
Sonstige
Geldautomat <500m
Bank <500m
Post <1.000m
Polizei <1.000m
Verkehr
Bus <500m
U-Bahn <500m
Straßenbahn <500m
Bahnhof <500m
Autobahnanschluss <2.000m
Angaben Entfernung Luftlinie / Quelle: OpenStreetMap
Objektdaten
Ausstattung
- Klimatisiert
- Gartennutzung
- Vollmöbliert
- Rollstuhlgerecht
- Kabel/SAT-TV
- DVBT
- UMTS Empfang
- Fahrradraum
- Seniorengerecht
- Bad mit Dusche
- Offene Küche
- Fliesenboden
- Parkettboden
- Estrichboden
- Fußbodenheizung
- Fern Befeuerung
- Personen Fahrstuhl
- Ausrichtung Balkon/Terrasse - Süd
- Kamera
- Niedrigenergie
- Neubaustandard
Zustand
- Zustand
- NEUWERTIG
- Baujahr
- 2023
- Alter
- NEUBAU
- HWB
- 23.3 kWh/m² pro Jahr
- Klasse HWB
- B
- fGEE
- 0.78
- Klasse fGEE
- A
Flächen
- Anzahl der Zimmer
- 2
- Anzahl der Badezimmer
- 1
- Anzahl der sep. WCs
- 1
- Anzahl der Balkone
- 1
- Stellplätze
- 1
- Wohnfläche
- 44m²
- Gesamtfläche
- 49m²
- Freifläche
- 5m²
- Kellerfläche
- 2m²
Kosten
- Kaufpreis Brutto
- € 309.000,00
- Betriebskosten
- € 94,96
- Sonstige Kosten
- € 5,63
Verwaltung
- Verfügbar ab
- nach Vereinbarung
Wohnungen zum Kaufen in Österreich
- Bezirk Gemeindebezirk Donaustadt
- Bezirk Gemeindebezirk Donaustadt
- Bezirk Gemeindebezirk Donaustadt
- Bezirk Gemeindebezirk Floridsdorf
- Bezirk Gemeindebezirk Floridsdorf
- Bezirk Gemeindebezirk Floridsdorf
- Bezirk Gemeindebezirk Leopoldstadt
- Bezirk Gemeindebezirk Leopoldstadt
- Bezirk Gemeindebezirk Leopoldstadt
- Bezirk Gemeindebezirk Landstrasse
Wohnungen zum Kaufen in Österreich
Wohnungen zum Kaufen in Österreich
Andere Besucher suchen nach...
- Grundstücke kaufen in 3400 Weidlingbach
- Wohnungen kaufen in 4663 Laakirchen
- Häuser in 7471 Rechnitz
- Wohnungen in 2410 Hainburg an der Donau
- Häuser kaufen in 2432 Schwadorf
- Wohnungen kaufen in 3002 Purkersdorf
- Häuser in 3150 Wilhelmsburg
- Wohnungen kaufen in 3470 Engelmannsbrunn
- Grundstücke kaufen im Bezirk Mattersburg
- Grundstücke kaufen im Bezirk Gmunden