Anleger Traum-2 Zi-DG-Eigentumswohnung-Erstbezug-schlüsselfertig-südseitige Terrassen
-
Erstbezug
-
2025
-
sofort
Beschreibung
Neubau Projekt im Herzen von Wien Essling mit 19 schlüsselfertigen Eigentumswohnungen auf Eigengrund. Die hochwertig ausgestatteten 2-4 Zimmer Wohnungen verfügen alle über einen Außenbereich – entweder Garten, Balkon, Terrasse oder Loggia. Alle Einheiten werden schlüsselfertig verkauft und sind hochwertig ausgestattet. AUSSTATTUNG: Kunststoff / Alu Fenster mit 3-fach Verglasung Beschattung Raffstores Dachflächenfenster Kipp-/Schwing Fenster von Velux Wohnungseingangstüre EI²30-C Brandschutz in Sicherheitsklasse WK 1 oder 2 mit Mehrfach Verriegelung, Türspion & Beschläge in Chrom von Firma DANA oder KUNEX Innentüren glatt mit Beschlägen aus Chrom Freisprechanlage (ohne Video) von Bticino oder gleichwertig Ausstattung der Badezimmer mit Sanitärgegenständen von Laufen, Geberit, Grohe und...
Neubau Projekt im Herzen von Wien Essling mit 19 schlüsselfertigen Eigentumswohnungen auf Eigengrund.
Die hochwertig ausgestatteten 2-4 Zimmer Wohnungen verfügen alle über einen Außenbereich – entweder Garten, Balkon, Terrasse oder Loggia.
Alle Einheiten werden schlüsselfertig verkauft und sind hochwertig ausgestattet.
AUSSTATTUNG:
Kunststoff / Alu Fenster mit 3-fach Verglasung
Beschattung Raffstores
Dachflächenfenster Kipp-/Schwing Fenster von Velux
Wohnungseingangstüre EI²30-C Brandschutz in Sicherheitsklasse WK 1 oder 2 mit Mehrfach Verriegelung, Türspion & Beschläge in Chrom von Firma DANA oder KUNEX
Innentüren glatt mit Beschlägen aus Chrom
Freisprechanlage (ohne Video) von Bticino oder gleichwertig
Ausstattung der Badezimmer mit Sanitärgegenständen von Laufen, Geberit, Grohe und Hans Grohe. Handtuchheizkörper mit E-Patrone.
Vorräume, Badezimmer und WC´s werden mit Feinsteinzeug Minimum Größe 60x60 cm ausgestattet.
Wohnräume, Küche – Parkett (Eiche) wird vollflächig verklebt.
Terrassenbelag – Steinplatten 120 x 60
Klimaanlagen Vorbereitung im Dachgeschoss
Energieeffiziente Luft-Wärmepumpe mit Heizzentrale im Keller
Regelung der Heizung in den Wohnungen über ein Raumthermostat
Fußbodenheizung in allen Räumen
SONSTIGES:
Kein Baurecht, kein Pachtgrund - Eigengrund
HAFTUNGSAUSSCHLUSS:
Wir weisen darauf hin, dass sämtliche Daten im vorliegenden Angebot, sowie die von unserem Büro an Sie weitergegebenen Auskünfte, vom Eigentümer der Immobilie zur Verfügung gestellt wurden. Ebenso sind Informationen von Dritten (z.B. behördliche Informationen) eingeholt worden, auch für diese können wir unsererseits keinerlei Haftung für deren uneingeschränkte Richtigkeit übernehmen.
Infrastruktur / Entfernungen
Gesundheit
Arzt <1.000m
Apotheke <500m
Klinik <2.000m
Krankenhaus <4.000m
Kinder & Schulen
Schule <500m
Kindergarten <500m
Universität <1.000m
Höhere Schule <1.500m
Nahversorgung
Supermarkt <500m
Bäckerei <500m
Einkaufszentrum <2.500m
Sonstige
Geldautomat <2.500m
Bank <1.000m
Post <1.000m
Polizei <2.000m
Verkehr
Bus <500m
U-Bahn <1.500m
Straßenbahn <2.500m
Bahnhof <1.500m
Autobahnanschluss <5.500m
Angaben Entfernung Luftlinie / Quelle: OpenStreetMap
Objektdaten
Ausstattung
- Barrierefrei
- Bad mit Dusche
- Fliesenboden
- Fertigparkettboden
- Fußbodenheizung
- Luftwärmepumpe
- Personen Fahrstuhl
- Ausrichtung Balkon/Terrasse - Süd
- Satteldach
- Schlüsselfertig mit Keller
- Neubaustandard
Zustand
- Zustand
- ERSTBEZUG
- Baujahr
- 2025
- Alter
- NEUBAU
- HWB
- 45.1 kWh/m² pro Jahr
- Klasse HWB
- B
- fGEE
- 0.7
- Klasse fGEE
- A+
Flächen
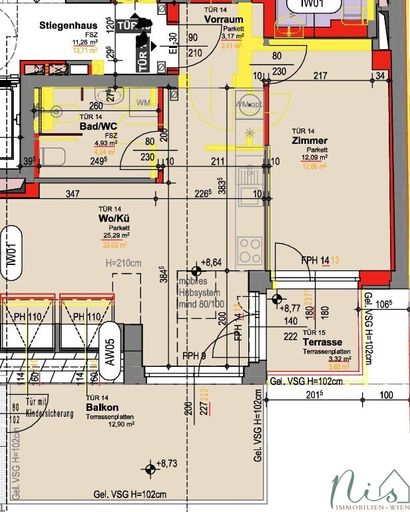
- Anzahl der Zimmer
- 2
- Anzahl der sep. WCs
- 1
- Anzahl der Terrassen
- 2
- Wohnfläche
- 45m²
- Nutzfläche
- 62m²
- Terrassenfläche
- 2m²
Kosten
- Kaufpreis Brutto
- € 279.000,00
Verwaltung
- Verfügbar ab
- sofort
Wohnungen zum Kaufen in Österreich
- Bezirk Gemeindebezirk Donaustadt
- Bezirk Gemeindebezirk Donaustadt
- Bezirk Gemeindebezirk Donaustadt
- Bezirk Gemeindebezirk Floridsdorf
- Bezirk Gemeindebezirk Floridsdorf
- Bezirk Gemeindebezirk Floridsdorf
- Bezirk Gemeindebezirk Leopoldstadt
- Bezirk Gemeindebezirk Leopoldstadt
- Bezirk Gemeindebezirk Leopoldstadt
- Bezirk Gemeindebezirk Landstrasse
Wohnungen zum Kaufen in Österreich
Wohnungen zum Kaufen in Österreich
Andere Besucher suchen nach...
- Grundstücke kaufen in 3400 Weidlingbach
- Wohnungen kaufen in 4663 Laakirchen
- Häuser in 7471 Rechnitz
- Wohnungen in 2410 Hainburg an der Donau
- Häuser kaufen in 2432 Schwadorf
- Wohnungen kaufen in 3002 Purkersdorf
- Häuser in 3150 Wilhelmsburg
- Wohnungen kaufen in 3470 Engelmannsbrunn
- Grundstücke kaufen im Bezirk Mattersburg
- Grundstücke kaufen im Bezirk Gmunden