Neuwertige 3-Zimmer Wohnung, 62m² - Eigennutzer oder als Investment?
Beschreibung
Willkommen in Ihrem neuen Zuhause in 1230 Wien!
Diese toll ausgestattete und gepflegte Wohnung in verkehrsgünstiger Lage im 23. Bezirks besticht nicht nur durch ihre Raumaufteilung.
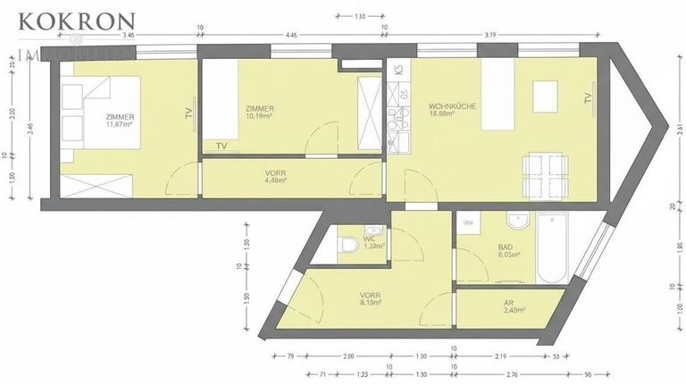
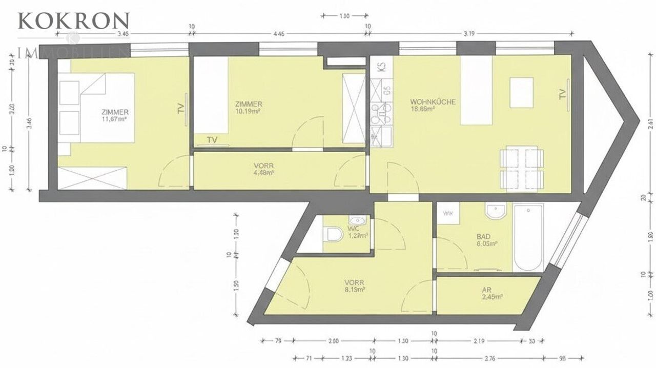
Mit einer großzügigen Fläche von ca. 62,8 m² und zwei getrennt begehbaren Zimmern ist diese Immobilie aktuell ideal für Singles, Paare oder sogar Kleinfamilien geeignet.
Durch Ihr großzügiges Vorzimmer betreten Sie die Wohnung, für Garderobe und Ablage ist ausreichend Platz vorhanden, von hier gelangen Sie in einen praktischen Abstellraum, das Badezimmer mit Badewanne, in das WC mit praktischem Handwaschbecken und in die Wohnküche. Die Wohnküche ist bereits mit sämtlichen Geräten ausgestattet.
Sie gelangen...
Willkommen in Ihrem neuen Zuhause in 1230 Wien!
Diese toll ausgestattete und gepflegte Wohnung in verkehrsgünstiger Lage im 23. Bezirks besticht nicht nur durch ihre Raumaufteilung.
Mit einer großzügigen Fläche von ca. 62,8 m² und zwei getrennt begehbaren Zimmern ist diese Immobilie aktuell ideal für Singles, Paare oder sogar Kleinfamilien geeignet.
Durch Ihr großzügiges Vorzimmer betreten Sie die Wohnung, für Garderobe und Ablage ist ausreichend Platz vorhanden, von hier gelangen Sie in einen praktischen Abstellraum, das Badezimmer mit Badewanne, in das WC mit praktischem Handwaschbecken und in die Wohnküche. Die Wohnküche ist bereits mit sämtlichen Geräten ausgestattet.
Sie gelangen von Ihrer Wohnküche über einen zusätzlichen Vorraum zu den 2 Zimmern (ca. 11,7 und 10,2m²).
Hard Facts:
- Wohnfläche von ca. 62,8 m²
- 3 Zimmer
- 1 WC mit Handwaschbecken
- 1 Badezimmer mit Wanne
- Kellerabteil mit ca. 3,00 m²
- Lift im Haus
- Kaufpreis: € 310.000,-
Besondere Ausstattungsmerkmale:
- Überall Außenrollos
- Sole-Erdwärmeanlage und Kühlsystem
- WC mit Handwaschbecken und Lüftung
- Badezimmer mit Badewanne und Waschmaschine
- Küche bereits voll ausgestattet
- hochwertiger Eichen-Parkettboden und Innentüren
- Sicherheitstüre
Nutzen Sie diese einmalige Gelegenheit und vereinbaren Sie noch heute einen Besichtigungstermin!
Diese Wohnung könnte schon bald Ihr neues Zuhause sein – ein Ort, an dem Sie sich wohlfühlen und Ihre Träume verwirklichen können.
Wir freuen uns auf Ihre Anfrage!
Der Vermittler ist als Doppelmakler tätig.
Infrastruktur / Entfernungen
Gesundheit
Arzt <1.000m
Apotheke <500m
Klinik <1.000m
Krankenhaus <2.500m
Kinder & Schulen
Schule <1.000m
Kindergarten <500m
Universität <5.500m
Höhere Schule <5.500m
Nahversorgung
Supermarkt <500m
Bäckerei <500m
Einkaufszentrum <1.000m
Sonstige
Geldautomat <1.000m
Bank <1.000m
Post <1.000m
Polizei <1.000m
Verkehr
Bus <500m
U-Bahn <2.000m
Straßenbahn <1.500m
Bahnhof <1.000m
Autobahnanschluss <2.500m
Angaben Entfernung Luftlinie / Quelle: OpenStreetMap
Objektdaten
Ausstattung
- WG geeignet
- Rollstuhlgerecht
- Barrierefrei
- Fahrradraum
- Seniorengerecht
- Bad mit Badewanne
- Offene Küche
- Fliesenboden
- Parkettboden
- Fußbodenheizung
- Erdwärme
Zustand
- Zustand
- NEUWERTIG
- Baujahr
- 2017
- Alter
- NEUBAU
- HWB
- 33.86 kWh/m² pro Jahr
- Klasse HWB
- B
- fGEE
- 0.95
- Klasse fGEE
- B
Flächen
- Anzahl der Zimmer
- 3
- Anzahl der Badezimmer
- 1
- Anzahl der sep. WCs
- 1
- Wohnfläche
- 63m²
Kosten
- Kaufpreis Brutto
- € 310.000,00
- Betriebskosten
- € 139,20
- Heizkosten
- € 93,96
- Sonstige Kosten
- € 65,54
Verwaltung
- Verfügbar ab
- nach Vereinbarung
Wohnungen zum Kaufen in Österreich
- Bezirk Gemeindebezirk Liesing
- Bezirk Gemeindebezirk Liesing
- Bezirk Gemeindebezirk Liesing
- Bezirk Gemeindebezirk Hietzing
- Bezirk Gemeindebezirk Hietzing
- Bezirk Gemeindebezirk Hietzing
- Bezirk Gemeindebezirk Meidling
- Bezirk Gemeindebezirk Meidling
- Bezirk Gemeindebezirk Meidling
- Bezirk Gemeindebezirk Penzing
Wohnungen zum Kaufen in Österreich
Wohnungen zum Kaufen in Österreich
Andere Besucher suchen nach...
- Grundstücke kaufen in 3400 Weidlingbach
- Wohnungen kaufen in 4663 Laakirchen
- Häuser in 7471 Rechnitz
- Wohnungen in 2410 Hainburg an der Donau
- Häuser kaufen in 2432 Schwadorf
- Wohnungen kaufen in 3002 Purkersdorf
- Häuser in 3150 Wilhelmsburg
- Wohnungen kaufen in 3470 Engelmannsbrunn
- Grundstücke kaufen im Bezirk Mattersburg
- Grundstücke kaufen im Bezirk Gmunden