TRAUMHAFTE 3-ZIMMER-WOHNUNG mit Loggia in 1230 Wien! Ihr neues Zuhause wartet!
-
sofort
Beschreibung
Diese moderne und lichtdurchflutete 3-Zimmer-Etagenwohnung befindet sich in ruhiger Innenhoflage im begehrten 23. Bezirk (1230 Wien) und vereint Wohnkomfort, hochwertige Ausstattung und eine ausgezeichnete Infrastruktur. Die Immobilie liegt im 1. Obergeschoss eines gepflegten Wohnhauses und eignet sich ideal für Familien, Paare oder Anleger.
Wohnfläche & Raumaufteilung
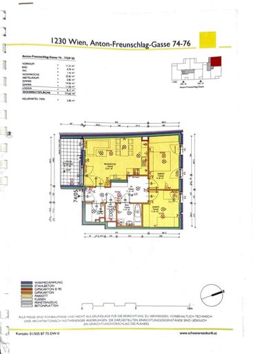
Auf einer großzügigen Wohnfläche von ca. 77,62 m² überzeugt die Wohnung durch einen durchdachten Grundriss und ein angenehmes Wohnambiente:
- Großzügiges Wohnzimmer mit viel Tageslicht, Klimaanlage und direktem Zugang zur Loggia
- Südausrichtung für optimale Lichtverhältnisse
- Zwei weitere Zimmer, flexibel nutzbar als Schlaf-, Kinder- oder Arbeitszimmer
- Voll ausgestattete, moderne Einbauküche – funktional und stilvoll zugleich ...
Diese moderne und lichtdurchflutete 3-Zimmer-Etagenwohnung befindet sich in ruhiger Innenhoflage im begehrten 23. Bezirk (1230 Wien) und vereint Wohnkomfort, hochwertige Ausstattung und eine ausgezeichnete Infrastruktur. Die Immobilie liegt im 1. Obergeschoss eines gepflegten Wohnhauses und eignet sich ideal für Familien, Paare oder Anleger.
Wohnfläche & Raumaufteilung
Auf einer großzügigen Wohnfläche von ca. 77,62 m² überzeugt die Wohnung durch einen durchdachten Grundriss und ein angenehmes Wohnambiente:
- Großzügiges Wohnzimmer mit viel Tageslicht, Klimaanlage und direktem Zugang zur Loggia
- Südausrichtung für optimale Lichtverhältnisse
- Zwei weitere Zimmer, flexibel nutzbar als Schlaf-, Kinder- oder Arbeitszimmer
- Voll ausgestattete, moderne Einbauküche – funktional und stilvoll zugleich
- Modernes Badezimmer mit Badewanne
- Separates WC
Die Loggia mit Stadtblick lädt zum Entspannen ein – ob bei einem Glas Wein am Abend oder beim Genießen der Sonne am Wochenende.
Ausstattung & Komfort
Diese Wohnung überzeugt durch ihre hochwertige und zeitgemäße Ausstattung:
- Elegantes Parkett und moderne Fliesen
- Fußbodenheizung für angenehme Wärme
- Klimaanlage im Wohnbereich
- Personenaufzug im Haus
- Kellerabteil für zusätzlichen Stauraum
- Neuwertiger Zustand – sofort bezugsfertig
Ein Tiefgaragenplatz kann bequem im Haus angemietet werden.
Grillen auf Balkon & Loggia – ausdrücklich erlaubt
Ein besonderes Highlight für Genießer:
✅ Das Aufstellen eines Grills auf dem Balkon bzw. der Loggia ist erlaubt.
✅ Seitens der Eigentümergemeinschaft bestehen keine Einwände gegen gelegentliches Grillen in den Sommermonaten.
Damit eignet sich die Wohnung ideal für gesellige Abende mit Familie und Freunden – ein echter Mehrwert in einer Stadtwohnung.
Möbelablöse
Für die hochwertige Einbauküche sowie das vorhandene Inventar ist eine Möbelablöse in Höhe von € 20.000,–vorgesehen.
Diese umfasst geschmackvolle, moderne Ausstattungselemente und ermöglicht einen sofortigen Einzug ohne zusätzlichen Aufwand.
Lage & Infrastruktur
Die Verkehrsanbindung ist ausgezeichnet: Bus- und Bahnverbindungen befinden sich in unmittelbarer Nähe und ermöglichen eine schnelle Erreichbarkeit der Innenstadt sowie anderer Bezirke.
Alle Einrichtungen des täglichen Bedarfs sind fußläufig erreichbar:
- Ärzte, Apotheken und Kliniken
- Schulen und Kindergärten
- Supermärkte und Bäckereien
Die Kombination aus ruhiger Wohnlage und urbaner Nähe sorgt für eine hohe Lebensqualität.
Fazit
Diese stilvolle Wohnung bietet Ihnen ein modernes Zuhause in hervorragender Lage – perfekt für Eigennutzer wie auch als wertstabile Investition. Der hohe Wohnkomfort, die durchdachte Raumaufteilung und die attraktive Infrastruktur machen dieses Objekt zu einer echten Gelegenheit. Überzeugen Sie sich selbst bei einer Besichtigung und starten Sie Ihr neues Kapitel! Vereinbaren Sie noch heute einen Besichtigungstermin unter folgenden Kontaktdaten: Daniel Robin Schmidt +436765553920 oder schmidt@immobilien-sablatnig.at
Wir weisen darauf hin, dass zwischen dem Vermittler und dem zu vermittelnden Dritten ein familiäres oder wirtschaftliches Naheverhältnis besteht.
Der Vermittler ist als Doppelmakler tätig.
Infrastruktur / Entfernungen
Gesundheit
Arzt <1.000m
Apotheke <500m
Klinik <2.500m
Krankenhaus <3.000m
Kinder & Schulen
Schule <500m
Kindergarten <500m
Universität <6.000m
Höhere Schule <5.500m
Nahversorgung
Supermarkt <500m
Bäckerei <1.000m
Einkaufszentrum <500m
Sonstige
Geldautomat <1.000m
Bank <1.000m
Post <1.000m
Polizei <1.000m
Verkehr
Bus <500m
U-Bahn <1.000m
Straßenbahn <4.000m
Bahnhof <500m
Autobahnanschluss <1.000m
Angaben Entfernung Luftlinie / Quelle: OpenStreetMap
Objektdaten
Ausstattung
- Räume veränderbar
- Vollmöbliert
- Rollstuhlgerecht
- Kabel/SAT-TV
- Fahrradraum
- Seniorengerecht
- Bad mit Badewanne
- Einbauküche
- Fliesenboden
- Parkettboden
- Fußbodenheizung
- Luftwärmepumpe
- Personen Fahrstuhl
- Ausrichtung Balkon/Terrasse - Süd
- Satteldach
Zustand
- Zustand
- GEPFLEGT
- Baujahr
- 2013
- Alter
- NEUBAU
- HWB
- 32 kWh/m² pro Jahr
- Klasse HWB
- B
- fGEE
- 0.88
- Klasse fGEE
- B
Flächen
- Anzahl der Zimmer
- 3
- Anzahl der Badezimmer
- 1
- Anzahl der sep. WCs
- 1
- Anzahl der Logia
- 1
- Wohnfläche
- 78m²
- Nutzfläche
- 80m²
- Kellerfläche
- 3m²
Kosten
- Kaufpreis Brutto
- € 349.000,00
- Betriebskosten
- € 180,00
- Sonstige Kosten
- € 73,50
Verwaltung
- Verfügbar ab
- sofort
Wohnungen zum Kaufen in Österreich
- Bezirk Gemeindebezirk Liesing
- Bezirk Gemeindebezirk Liesing
- Bezirk Gemeindebezirk Liesing
- Bezirk Gemeindebezirk Hietzing
- Bezirk Gemeindebezirk Hietzing
- Bezirk Gemeindebezirk Hietzing
- Bezirk Gemeindebezirk Meidling
- Bezirk Gemeindebezirk Meidling
- Bezirk Gemeindebezirk Meidling
- Bezirk Gemeindebezirk Penzing
Wohnungen zum Kaufen in Österreich
Wohnungen zum Kaufen in Österreich
Andere Besucher suchen nach...
- Grundstücke kaufen in 3400 Weidlingbach
- Wohnungen kaufen in 4663 Laakirchen
- Häuser in 7471 Rechnitz
- Wohnungen in 2410 Hainburg an der Donau
- Häuser kaufen in 2432 Schwadorf
- Wohnungen kaufen in 3002 Purkersdorf
- Häuser in 3150 Wilhelmsburg
- Wohnungen kaufen in 3470 Engelmannsbrunn
- Grundstücke kaufen im Bezirk Mattersburg
- Grundstücke kaufen im Bezirk Gmunden