Charmantes Zinshaus in Badens Fußgängerzone
Beschreibung
Zum Verkauf steht dieses charmante Zinshaus in der Fußgängerzone von Baden bei Wien. Dieses Altbaugebäude bietet sowohl Wohn- als auch Gewerbenutzungsmöglichkeiten.
Allgemeine Informationen:
Das Zinshaus verfügt über ein Geschäftslokal im Erdgeschoss, eine Wohnung im Obergeschoss und eine weitere Wohnung im Dachgeschoss. Im Keller befindet sich ein ehemaliges Lokal, welches aktuell als Lagerfläche genutzt wird. Die beiden Wohnungen und das Geschäftslokal sind derzeit vermietet. Wohnungseigentum ist nicht begründet. Genauere Informationen zu den einzelnen Einheiten finden Sie bei den Unterpunkten Geschäftslokal, Top 1 und Top 2.
Im Jahr 2004 haben Umbauarbeiten im Haus stattgefunden sowie der DG-Ausbau. Die...
Zum Verkauf steht dieses charmante Zinshaus in der Fußgängerzone von Baden bei Wien. Dieses Altbaugebäude bietet sowohl Wohn- als auch Gewerbenutzungsmöglichkeiten.
Allgemeine Informationen:
Das Zinshaus verfügt über ein Geschäftslokal im Erdgeschoss, eine Wohnung im Obergeschoss und eine weitere Wohnung im Dachgeschoss. Im Keller befindet sich ein ehemaliges Lokal, welches aktuell als Lagerfläche genutzt wird. Die beiden Wohnungen und das Geschäftslokal sind derzeit vermietet. Wohnungseigentum ist nicht begründet. Genauere Informationen zu den einzelnen Einheiten finden Sie bei den Unterpunkten Geschäftslokal, Top 1 und Top 2.
Im Jahr 2004 haben Umbauarbeiten im Haus stattgefunden sowie der DG-Ausbau. Die Immobilie verfügt über eine Gaszentralheizung aus dem Jahr 2006. Im Jahr 2013 wurde die Immobilie saniert (laut Eigentümerangabe).
Die Liegenschaft weist eine Grundfläche von 212 m² (laut Grundbuch) und eine Nutzfläche von ungefähr 458 m² auf.
Folgende Flächenwidmung und Bebauungsvorschriften liegen vor:
- Flächenwidmung: BK - 6 WE
- Bebauung: 60, g, 6-9
Ebenso machen wir darauf aufmerksam, dass sich die Liegenschaft in der Schutzzone befindet. Gerne stehen wir Ihnen diesbezüglich für genauere Informationen zur Verfügung.
Geschäftslokal:
Das Geschäftslokal im Erdgeschoss bietet eine großzügige Nutzfläche von ca. 121 m². Diese erstreckt sich über drei geräumige Zimmer, einen Innenhof mit ansprechendem Glasdach, einen Vorraum und eine Toilettenanlage.
Zusätzlich verfügt das Geschäftslokal über einen einladenden Eingangsbereich (7,68 m²), eine attraktive Auslagenfläche (10,82 m²) und eine große Lagerfläche von ca. 64 m² im Keller.
Die derzeitigen Mieter werden die Geschäftsräume bis Ende des Jahres nutzen. Anschließend stehen die Räumlichkeiten im Erdgeschoss zur neuen Vermietung oder Eigennutzung zur Verfügung.
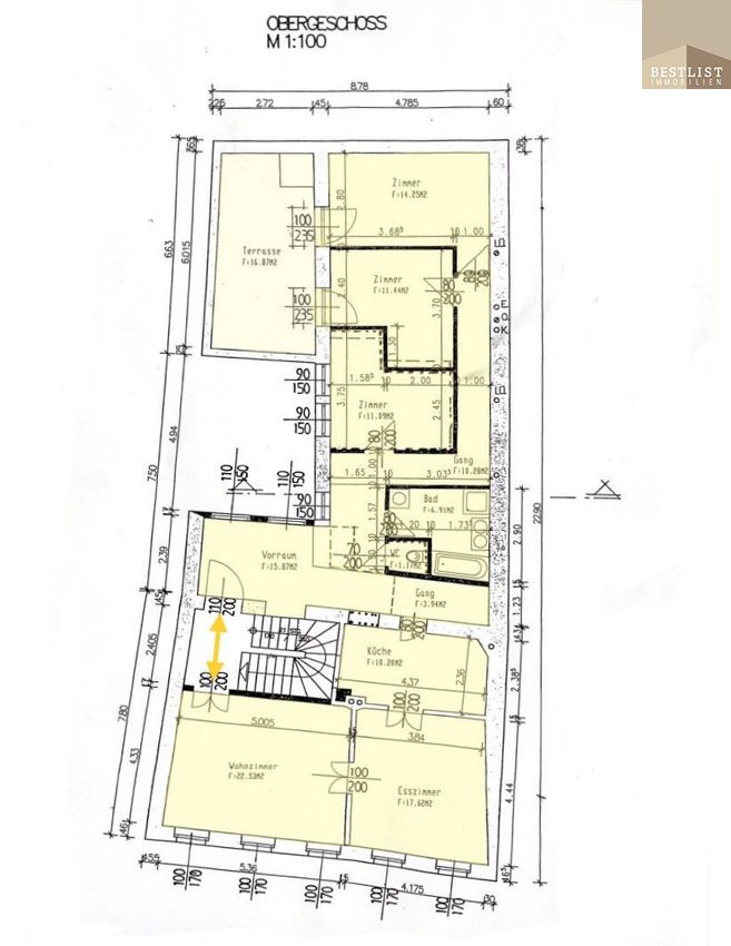
Top 1:
Diese großzügige Wohnung erstreckt sich über das gesamte Obergeschoss und bietet eine Wohnfläche von ca. 125 m². Die Fläche verteilt sich auf einen Vorraum, ein Wohnzimmer, ein Esszimmer, eine Küche, ein Bad, ein separates WC und drei weitere Zimmer. Zur Wohnung gehört auch eine großzügige Terrasse.
Beim Betreten der Wohnung gelangen Sie in den Vorraum, von dem aus mehrere Zimmer zentral erreichbar sind.
Das gut ausgestattete Badezimmer verfügt über eine Dusche, eine Badewanne, einen Waschtisch und einen Waschmaschinenanschluss. Das WC ist separat untergebracht.
Die drei Zimmer können vielfältig genutzt werden, beispielsweise als Schlafzimmer, Kinderzimmer oder Arbeitszimmer. Zwei der Zimmer bieten direkten Zugang zur Terrasse.
Von der Küche aus gelangen Sie in das Esszimmer, das wiederum ins Wohnzimmer führt. Wohn- und Esszimmer bieten durch ihre großzügige Fläche ausreichend Platz für eine komplette Wohn- und Esszimmermöblierung, wobei noch genügend Freiraum verbleibt.
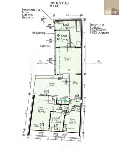
Top 2:
Diese Wohnung befindet sich im Dachgeschoss und verfügt über eine ca. 23 m2 große Terrasse. Die Wohnung hat eine Wohnfläche von ca. 110 m². Die Fläche verteilt sich auf einen Vorraum, ein Wohn-/Esszimmer, eine Küche, ein Bad, ein WC, einen Abstellraum und vier weitere Räume, die vielseitig genutzt werden können.
Beim Betreten der Wohnung gelangt man in den Vorraum, von dem aus mehrere Räume zentral zugänglich sind. Rechts befinden sich zwei Schlafzimmer und ein Abstellraum. Auf der linken Seite befindet sich die Küche, von der aus man in den großzügigen Wohn-/Essbereich gelangt. Von hier aus gelangt man in das Bad und ein weiteres Zimmer.
Das derzeitige Jahreseinkommen (netto) beträgt € 38.472,-, woraus sich eine Bruttoanfangsrendite von 3,2 % ergibt. (laut Eigentümerangaben).
Unser nachhaltiger Denkansatz sieht auch die Vermeidung von unnötigen Ausdrucken in Papierform vor, daher geben Sie uns Bescheid, ob Sie schriftliche Unterlagen ausgehändigt haben möchten oder ob wir diese einfach per Mail an Sie senden sollen. Wir richten uns gerne nach Ihren Wünschen!
Ulrike List / Geschäftsführung
Wir weisen darauf hin, dass zwischen dem Vermittler und dem zu vermittelnden Dritten ein familiäres oder wirtschaftliches Naheverhältnis besteht.
Der Vermittler ist als Doppelmakler tätig.
Infrastruktur / Entfernungen
Gesundheit
Arzt <500m
Apotheke <500m
Klinik <1.000m
Krankenhaus <1.500m
Kinder & Schulen
Schule <500m
Kindergarten <500m
Höhere Schule <8.500m
Universität <10.000m
Nahversorgung
Supermarkt <500m
Bäckerei <500m
Einkaufszentrum <5.000m
Sonstige
Bank <500m
Geldautomat <500m
Polizei <500m
Post <500m
Verkehr
Bus <500m
Bahnhof <500m
Autobahnanschluss <4.000m
Straßenbahn <500m
Flughafen <5.000m
Angaben Entfernung Luftlinie / Quelle: OpenStreetMap
Objektdaten
Ausstattung
- Befeuerung mit Gas
- Massiv Bauweise
Zustand
- Zustand
- GEPFLEGT
- Baujahr
- 1945
- Alter
- ALTBAU
- HWB
- 46.3 kWh/m² pro Jahr
- Klasse HWB
- B
- fGEE
- 1.13
- Klasse fGEE
- C
Flächen
- Anzahl der Terrassen
- 2
- Wohnfläche
- 236m²
- Nutzfläche
- 458m²
- Lagerfläche
- 64m²
- Verkaufsfläche
- 140m²
- Grundstücksfläche
- 212m²
- Terrassenfläche
- 2m²
Kosten
- Kaufpreis Brutto
- € 1.190.000,00
- Betriebskosten
- € 325,25
Andere Besucher suchen nach...
- Grundstücke kaufen in 3400 Weidlingbach
- Wohnungen kaufen in 4663 Laakirchen
- Häuser in 7471 Rechnitz
- Wohnungen in 2410 Hainburg an der Donau
- Häuser kaufen in 2432 Schwadorf
- Wohnungen kaufen in 3002 Purkersdorf
- Häuser in 3150 Wilhelmsburg
- Wohnungen kaufen in 3470 Engelmannsbrunn
- Grundstücke kaufen im Bezirk Mattersburg
- Grundstücke kaufen im Bezirk Gmunden