*** 885 m² Wohn- & Geschäftsfläche im Zentrum von Kindberg mit Entwicklungspotenzial! ***
-
sofort
Beschreibung
Ein Objekt. Viele Möglichkeiten.
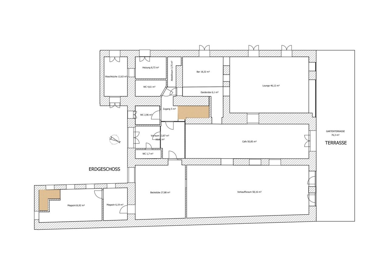
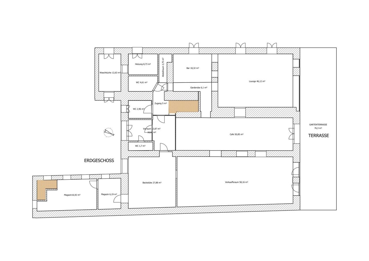
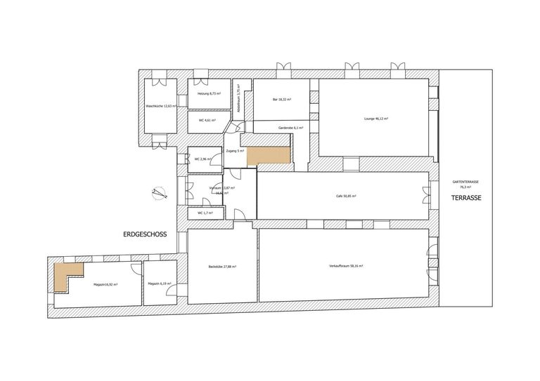
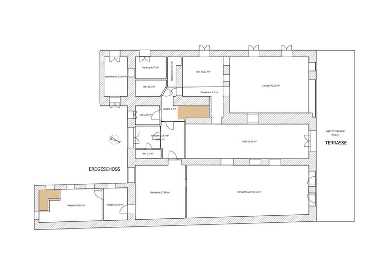
In bester Lage von Kindberg, direkt an der Hauptstraße 65+67, wartet dieses beeindruckende Investmentobjekt mit riesigem Potenzial auf seine nächste Erfolgsgeschichte. Auf 1.721 m² Grundstücksfläche vereint sich hier ein Wohn- und Geschäftshaus mit einer Gesamtnutzfläche von rund 885 m², die sich in 524 m² Wohnfläche und 180 m² Geschäftsfläche aufteilen – ergänzt durch Nebenräume, eine große überdachte Terrasse und ein Nebengebäude mit zusätzlichem Ausbaupotenzial.
Besonders attraktiv: In den Geschäftsräumlichkeiten wurde bereits eine zusätzliche Klimaanlage installiert, wodurch auch an heißen Tagen ein angenehmes Raumklima gewährleistet ist. Zudem befindet sich der Fernwärmeanschluss bereits am Grundstück, was zukünftige Modernisierungsmaßnahmen...
Ein Objekt. Viele Möglichkeiten.
In bester Lage von Kindberg, direkt an der Hauptstraße 65+67, wartet dieses beeindruckende Investmentobjekt mit riesigem Potenzial auf seine nächste Erfolgsgeschichte. Auf 1.721 m² Grundstücksfläche vereint sich hier ein Wohn- und Geschäftshaus mit einer Gesamtnutzfläche von rund 885 m², die sich in 524 m² Wohnfläche und 180 m² Geschäftsfläche aufteilen – ergänzt durch Nebenräume, eine große überdachte Terrasse und ein Nebengebäude mit zusätzlichem Ausbaupotenzial.
Besonders attraktiv: In den Geschäftsräumlichkeiten wurde bereits eine zusätzliche Klimaanlage installiert, wodurch auch an heißen Tagen ein angenehmes Raumklima gewährleistet ist. Zudem befindet sich der Fernwärmeanschluss bereits am Grundstück, was zukünftige Modernisierungsmaßnahmen im Bereich der Energieversorgung wesentlich erleichtert und langfristig Planungssicherheit bietet.
Highlights im Überblick
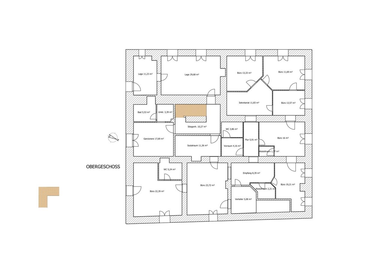
🏠 524 m² Wohnfläche – großzügig aufgeteilt über 3 Etagen
🛍️ 3 Geschäftslokale + Nebenräume im EG – ca. 180 m² Gewerbefläche
❄️ Zusätzliche Klimaanlage in den Geschäftsräumen
🔥 Fernwärmeanschluss bereits am Grundstück
🌳 1.721 m² Grundstück – mit Carport, großem Nebengebäude & Terrasse
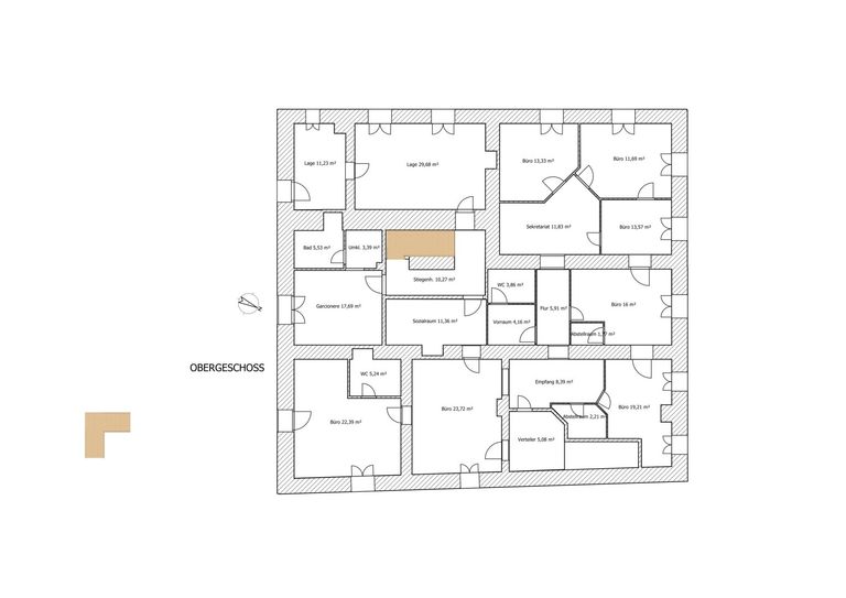
🩺 1. OG – ehemalige Arztpraxis – ideal für Praxis, Büro oder Umbau in Wohnungen
🛏️ DG vollständig ausgebaut – sofort als Wohnraum nutzbar
☀️ 76 m² überdachte Terrasse – z.B. als Gastronomiebereich nutzbar
🧱 Solide Substanz (Baujahr ca. 1950) mit Sanierungspotenzial
💶 Kaufpreis: € 300.000,- – ein Top-Angebot für Projektentwickler & Investoren
Was dieses Objekt so besonders macht
Diese Liegenschaft vereint Nutzungsvielfalt, zentrales Grundstück und ein enormes Entwicklungspotenzial in einem einzigen Investmentpaket. Egal ob als:
Zinshaus mit getrennter Vermietung von Gewerbe & Wohneinheiten
Wohnprojekt mit Gemeinschaftsgarten & Stellplätzen
Revitalisierung & Weiterverkauf mit Wertsteigerung
Eigennutzung mit Wohnen & Arbeiten unter einem Dach
Mit 885 m² Nutzfläche, gutem Grundriss und vorhandenem Nebengebäude (seit Jahrzehnten ungenutzt), bieten sich zahlreiche Möglichkeiten für Umbau, Ausbau oder Nachverdichtung – natürlich vorbehaltlich behördlicher Genehmigungen.
Die bereits vorhandene Infrastruktur – insbesondere der Fernwärmeanschluss am Grundstück – schafft eine ideale Grundlage für ein zukunftsorientiertes Energiekonzept.
📍 Lage: Mitten in Kindberg
Zentrale Frequenzlage, optimale Infrastruktur und kurze Wege: In wenigen Gehminuten erreichst du Einkaufsmöglichkeiten, Gastronomie, Schulen und medizinische Versorgung. Die S6 (Semmering Schnellstraße) liegt nur wenige Minuten entfernt – perfekt für Pendler Richtung Graz oder Kapfenberg/Bruck.
🛠️ Sanierung als Chance
Das Objekt befindet sich dem Alter entsprechend in sanierungsbedürftigem Zustand. Genau hier liegt deine Chance: Förderprogramme wie „Raus aus Öl“, thermische Sanierung oder nachhaltige Heizungssysteme können das Projekt nicht nur ökologisch aufwerten, sondern auch den Marktwert langfristig steigern.
Der bereits am Grundstück befindliche Fernwärmeanschluss bietet hier zusätzlich eine wirtschaftlich attraktive Option für eine moderne und nachhaltige Energieversorgung. Die massive Bauweise bildet eine solide Grundlage.
📐 Eckdaten
| Merkmal | Details |
|---|---|
| Objekttyp | Wohn- & Geschäftshaus (MFH) |
| Adresse | Hauptstraße 65+67, 8650 Kindberg |
| Baujahr | ca. 1950 |
| Nutzfläche gesamt | ca. 885 m² |
| Wohnfläche | ca. 524 m² |
| Gewerbefläche | ca. 180 m² |
| Grundstücksgröße | ca. 1.721 m² |
| Zustand | Sanierungsbedürftig |
| Nebengebäude | vorhanden, ungenutzt |
| Carport | ja |
| Fernwärmeanschluss | am Grundstück vorhanden |
| Klimaanlage | zusätzliche Anlage in Geschäftsräumen |
| Kaufpreis | € 300.000,- |
💬 Fazit: Platz für Visionen
Dieses Objekt bietet nicht nur Fläche, sondern echte Perspektiven. Der unschlagbare Preis pro Quadratmeter, die zentrale Lage in einer aufstrebenden Stadt und das große Grundstück machen diese Immobilie zu einer wertvollen Kapitalanlage mit Entwicklungsspielraum.
Jetzt besichtigen und Möglichkeiten entdecken!
📞 Kontaktieren Sie uns noch heute für weitere Informationen oder zur Vereinbarung eines Besichtigungstermins.
Der Vermittler ist als Doppelmakler tätig.
Infrastruktur / Entfernungen
Gesundheit
Arzt <500m
Apotheke <500m
Krankenhaus <6.000m
Kinder & Schulen
Schule <500m
Kindergarten <500m
Nahversorgung
Supermarkt <500m
Bäckerei <500m
Sonstige
Bank <500m
Geldautomat <500m
Post <500m
Polizei <500m
Verkehr
Bus <500m
Autobahnanschluss <1.000m
Bahnhof <500m
Angaben Entfernung Luftlinie / Quelle: OpenStreetMap
Objektdaten
Ausstattung
- WG geeignet
- Räume veränderbar
- Gartennutzung
- Teilmöbliert
- Wasch-/Trockenraum
- Gastterrasse
- Kantine/Cafeteria
- Gäste-WC
- Bad mit Dusche
- Bad mit Badewanne
- Bad mit Fenster
- Bad mit Pissoir
- Einbauküche
- Fliesenboden
- Steinboden
- Teppichboden
- Parkettboden
- Laminatboden
- Dielenboden
- Zentralheizung
- Befeuerung mit Öl
- Ausrichtung Balkon/Terrasse - Südost
- Satteldach
- Massiv Bauweise
Zustand
- Zustand
- SANIERUNGSBEDUERFTIG
- Baujahr
- 1950
- Alter
- ALTBAU
- HWB
- 296.6 kWh/m² pro Jahr
- Klasse HWB
- G
- fGEE
- 2.5
- Klasse fGEE
- E
Flächen
- Anzahl der Zimmer
- 38.5
- Anzahl der Badezimmer
- 2
- Anzahl der sep. WCs
- 8
- Anzahl der Balkone
- 2
- Stellplätze
- 4
- Wohnfläche
- 524m²
- Nutzfläche
- 885m²
- Verkaufsfläche
- 180m²
- Grundstücksfläche
- 1.721m²
- Kellerfläche
- 80m²
Kosten
- Kaufpreis Brutto
- € 300.000,00
Verwaltung
- Verfügbar ab
- sofort
Zinshäuser und Renditeobjekte zum Kaufen in Österreich
Andere Besucher suchen nach...
- Immobilien kaufen in 2601 Sollenau
- Immobilien in 4951 Polling im Innkreis, Oberösterreich
- Immobilien in 4742 Pram, Oberösterreich kaufen oder mieten
- Häuser kaufen in 2340 Mödling, Niederösterreich
- Häuser kaufen in 9421 Gemmersdorf, Kärnten
- Wohnungen / Eigentumswohnungen kaufen in 9431 St. Stefan, Kärnten
- Häuser kaufen in Bruck an der Leitha, Niederösterreich
- Immobilien mieten in Krems an der Donau, Niederösterreich
- Häuser zum Kaufen im Bezirk St. Pölten Land, Niederösterreich
- Büro / Praxen mieten in Rohrbach, Oberösterreich