WOHN- UND GESCHÄFTSHAUS IM HERZEN VON MARIAZELL
Beschreibung
WOHN- UND GESCHÄFTSHAUS MIT GROSSEM POTENTIAL
Die zum Verkauf stehende Immobilie befindet sich in unverwechselbarer Lage direkt am Hauptplatz von Mariazell, unmittelbar neben der berühmten Basilika. Ursprünglich um 1900 errichtet und ehemals als Kino genutzt, bietet das Gebäude nicht nur eine spannende Geschichte, sondern heute wieder ein enormes Entwicklungspotenzial in einer touristisch attraktiven Region.
A) Objektdaten – Überblick
- Baujahr: ca. 1900
- Nutzfläche: aufgeteilt auf Untergeschoß, Erdgeschoss, Obergeschoss und Dachgeschoss
- Lift: vorhanden vom Untergeschoss bis ins Dachgeschoss
- Heizung: veraltete Ölheizung (erneuerungsbedürftig), Fernwärme-Anschluss vor dem Haus
- Zustand: umbau- und sanierungsbedürftig, großes Potential
...
WOHN- UND GESCHÄFTSHAUS MIT GROSSEM POTENTIAL
Die zum Verkauf stehende Immobilie befindet sich in unverwechselbarer Lage direkt am Hauptplatz von Mariazell, unmittelbar neben der berühmten Basilika. Ursprünglich um 1900 errichtet und ehemals als Kino genutzt, bietet das Gebäude nicht nur eine spannende Geschichte, sondern heute wieder ein enormes Entwicklungspotenzial in einer touristisch attraktiven Region.
A) Objektdaten – Überblick
- Baujahr: ca. 1900
- Nutzfläche: aufgeteilt auf Untergeschoß, Erdgeschoss, Obergeschoss und Dachgeschoss
- Lift: vorhanden vom Untergeschoss bis ins Dachgeschoss
- Heizung: veraltete Ölheizung (erneuerungsbedürftig), Fernwärme-Anschluss vor dem Haus
- Zustand: umbau- und sanierungsbedürftig, großes Potential
B) Nutzungsmöglichkeiten im Detail
1. Gewerbe (Erdgeschoss + Untergeschoss)
- Option A: Einzelhandelsfläche – direkt im Ortszentrum mit großer Schaufensterfront, auch abtrennbar in 2 Einheiten
- Option B: Gastronomiebetrieb – Café, Restaurant oder Weinstube mit großzügiger Fläche (siehe KI-Vorschläge in Bildgalerie)
- Option C: Kombination: Coworking-Space, Ärztezentrum, Wellness, Galerie oder Atelier - auch mit integrierter, breiter Stiege ins Untergeschoss - mit Potenzial für Behandlungsräume Personalräume oder Wellness-/Freizeiteinrichtung, Lager, Haustechnik,
2. Wohnen (Obergeschoss)
- Entkernter Zustand erlaubt flexible Planung
- Realisierbar: bis zu 3 Wohnungen mit Blick auf den Hauptplatz und die Basilika - besonderer Highlight!
- Ideal als Eigennutzung, Ferienwohnungen oder Dauervermietung
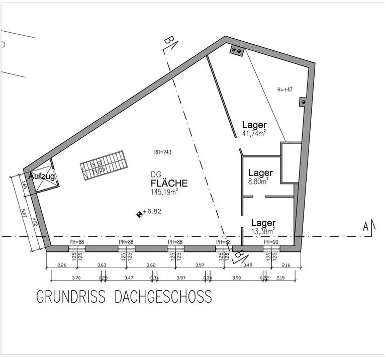
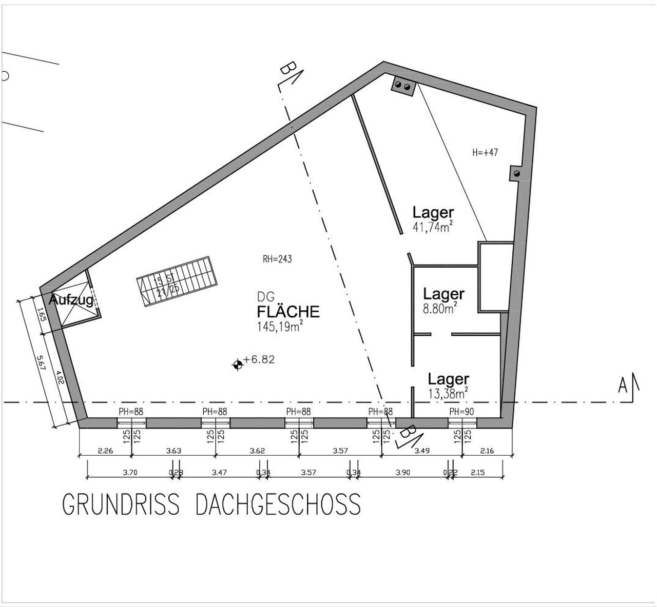
3. Dachgeschoss
- Entkernter Zustand erlaubt auch hier eine flexible Planung für eine großzügige Dachwohnung mit Panoramablick auf Basilika, Stadtzentrum Mariazells, Berglandschaft
C) Für Investoren – Chancen & Mehrwert
Mariazell ist einer der bedeutendsten Wallfahrtsorte Mitteleuropas mit jährlich hunderttausenden Besuchern. Diese Immobilie bietet daher eine seltene Gelegenheit für:
Touristische Nutzung / Beherbergung
- Entwicklung eines Boutique-Hotels oder Boardinghouse-Konzepts ("Zuhause auf Zeit")
- Betrieb von Ferienwohnungen oder Apartments im OG und DG
- Kombination mit Gastronomie im EG: Frühstücks-/Kaffeebetrieb oder Vinothek
Wohnbauprojekt
- Attraktive Vermietbarkeit für Einheimische, Saisonkräfte oder Zweitwohnsitzsuchende
- Förderungen für Sanierungen evtl. denkbar (je nach Lage, Nutzung, Energieeffizienz)
Gewerbliche Nutzung & Investment-Portfolio
- Sicherer Standort mit guter Fußgängerfrequenz
- Kombination von Mieteinnahmen aus Wohneinheiten und Gewerbefläche
- Wertsteigerungspotenzial nach Sanierung und Modernisierung
D) Sanierungsbedarf – mit solider Basis
Die Immobilie verlangt eine umfassenden Sanierung – bietet jedoch:
- einen massiven Altbaukörper
- beste Innenstadtlage
- bestehenden Lift (TÜV-Zulassung noch einzuholen)
- ausgebautes Untergeschoss integriert mit Erdgeschoss durch breiten Stiegenaufgang (2010)
- Fernwärme-Anschluss vor dem Haus
- E-Leitungen neuwertig (2010)
- neue, straßenseitige Fassade (2024)
- und vor allem: einzigartige Lage mit Geschichte
Diese Immobilie ist ideal für kreative Investoren, Projektentwickler oder Unternehmer mit Sinn für Geschichte und Potenzial.
Vereinbaren Sie jetzt einen Besichtigungstermin und nutzen diese besondere Chance im Herzen Mariazells - ich freue mich auf Ihre Anfrage und stehe Ihnen für Besichtigungen gerne zur Verfügung.
Wir ersuchen Sie um Verständnis, dass wir von Ihnen vor der Zusendung des Exposés die Bestätigung des sofortigen Tätigwerdens sowie die Aufklärung des Rücktrittsrechtes gemäß FAGG (Fern- und Auswärtsgeschäfte-Gesetz) benötigen. Dies ist eine seit 13.06.2014 geänderte Konsumentenschutzbestimmung nach den EU Verbraucherrechte-Richtlinien. Nach Ihrer schriftlichen Anfrage erhalten Sie die entsprechenden Unterlagen von uns, um deren Bestätigung wir Sie bitten. Anschließend freuen wir uns über eine Terminvereinbarung mit Frau Doris Rotschopf unter 0664 302 30 53. Die Verpflichtung zur Zahlung einer Vermittlungsprovision entsteht für Sie selbstverständlich nur bei erfolgreicher Vermittlung und wird erst mit der Rechtswirksamkeit des vermittelten Geschäfts fällig.
Alle Daten stammen vom Eigentümer, der Baubehörde oder der Verwaltung und wurden mit Sorgfalt erhoben. Für die Richtigkeit und Vollständigkeit kann keine Haftung übernommen werden. Es wird darauf hingewiesen, dass sich der Interessent vor Abschluss des Rechtsgeschäftes aus eigener Wahrnehmung d.h. Besichtigung vom Objekt zu überzeugen hat. Zahlenangaben können gerundet oder geschätzt sein. Das Anbot ist freibleibend und unverbindlich. Irrtümer und Änderungen vorbehalten. Wir weisen darauf hin, dass die Firma Immobilien Rot, Doris Rotschopf als Doppelmakler tätig ist (§5 Abs. 3 Maklergesetz). Nachgezeichnete Pläne können von den Originalplänen abweichen und sind eventuell nicht maßstabgetreu. Verträge, die nicht in der jeweiligen Muttersprache verfasst sind, sind vom Mieter selbst in die jeweilige Sprache zu übersetzen. Gerichtsstand: Wien
Datenschutz-Grundverordnung, 25. Mai 2018: Ihre personenbezogenen Kundendaten werden von uns zum Zwecke der Vertragserfüllung erfasst, gespeichert und verarbeitet.
Hinweis gemäß Energieausweisvorlagegesetz: Ein Energieausweis wurde vom Eigentümer bzw. Verkäufer, nach unserer Aufklärung über die generell geltende Vorlagepflicht, sowie Aufforderung zu seiner Erstellung noch nicht vorgelegt. Daher gilt zumindest eine dem Alter und der Art des Gebäudes entsprechende Gesamtenergieeffizienz als vereinbart. Wir übernehmen keinerlei Gewähr oder Haftung für die tatsächliche Energieeffizienz der angebotenen Immobilie.
Der Vermittler ist als Doppelmakler tätig.
Infrastruktur / Entfernungen
Gesundheit
Arzt <250m
Krankenhaus <2.250m
Apotheke <250m
Kinder & Schulen
Schule <250m
Kindergarten <250m
Nahversorgung
Supermarkt <250m
Bäckerei <500m
Sonstige
Geldautomat <250m
Bank <250m
Post <250m
Polizei <5.000m
Verkehr
Bus <250m
Straßenbahn <750m
Bahnhof <1.500m
Flughafen <2.250m
Angaben Entfernung Luftlinie / Quelle: OpenStreetMap
Objektdaten
Ausstattung
- Räume veränderbar
- Estrichboden
- Zentralheizung
- Fernwärme Heizung
- Befeuerung mit Öl
- Fern Befeuerung
- Personen Fahrstuhl
- Massiv Bauweise
Zustand
- Zustand
- ENTKERNT
- Baujahr
- 1900
- Alter
- ALTBAU
Flächen
- Anzahl der Logia
- 1
- Gesamtfläche
- 718m²
- Grundstücksfläche
- 245m²
- Kellerfläche
- 18m²
Kosten
- Kaufpreis Brutto
- € 590.000,00
- Betriebskosten
- € 90,00
Verwaltung
- Verfügbar ab
- nach Vereinbarung
Zinshäuser und Renditeobjekte zum Kaufen in Österreich
Andere Besucher suchen nach...
- Immobilien kaufen in 2601 Sollenau
- Immobilien in 4951 Polling im Innkreis, Oberösterreich
- Immobilien in 4742 Pram, Oberösterreich kaufen oder mieten
- Häuser kaufen in 2340 Mödling, Niederösterreich
- Häuser kaufen in 9421 Gemmersdorf, Kärnten
- Wohnungen / Eigentumswohnungen kaufen in 9431 St. Stefan, Kärnten
- Häuser kaufen in Bruck an der Leitha, Niederösterreich
- Immobilien mieten in Krems an der Donau, Niederösterreich
- Häuser zum Kaufen im Bezirk St. Pölten Land, Niederösterreich
- Büro / Praxen mieten in Rohrbach, Oberösterreich