*** Top kernsaniertes 568m² Zinshaus in Kindberg – 5 Einheiten incl. Carports, voll vermietet, starke Renditechance! ***
Beschreibung
Nachhaltig saniertes Zinshaus mit 5 Einheiten – vollvermietet & wertbeständig in Kindberg
Dieses 2014 umfassend sanierte Zinshaus vereint technische Qualität, stabile Mieteinnahmen und eine ausgezeichnete Infrastruktur zu einer überzeugenden Kapitalanlage.
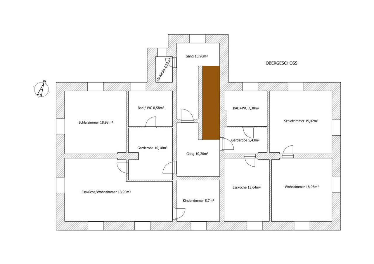
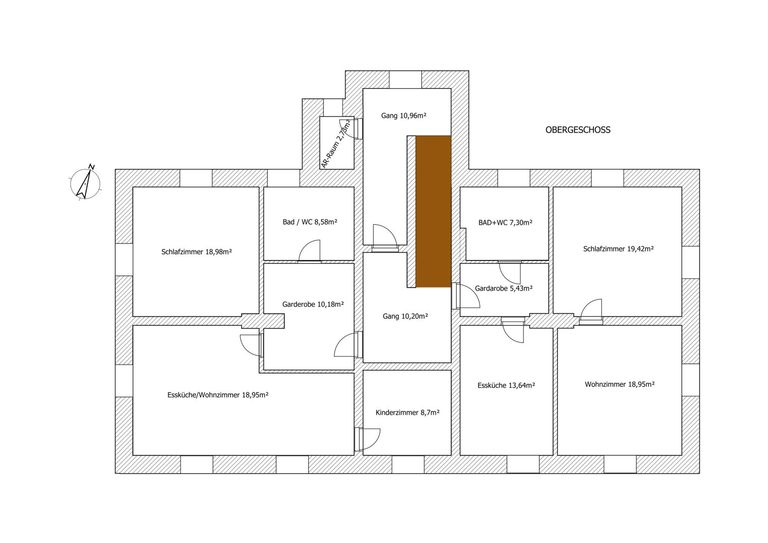
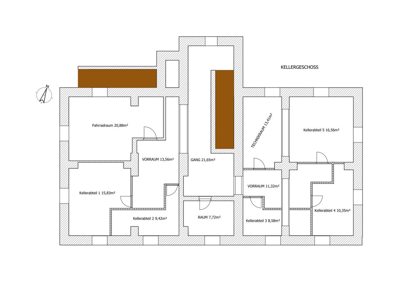
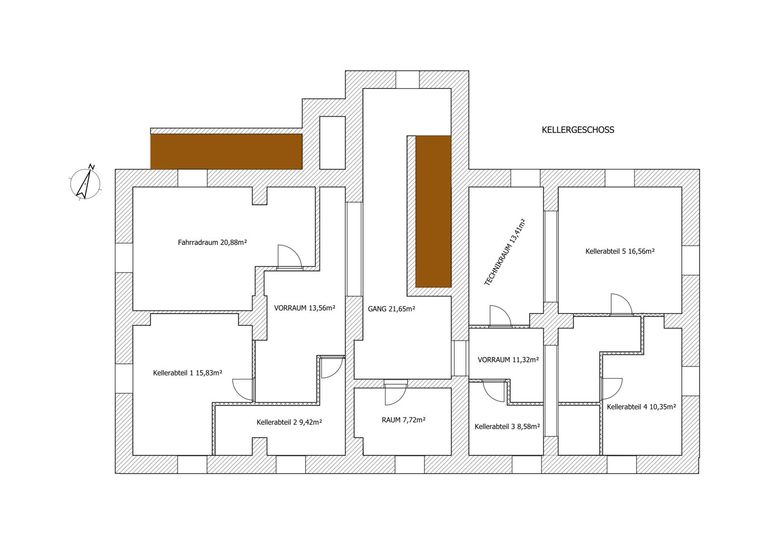
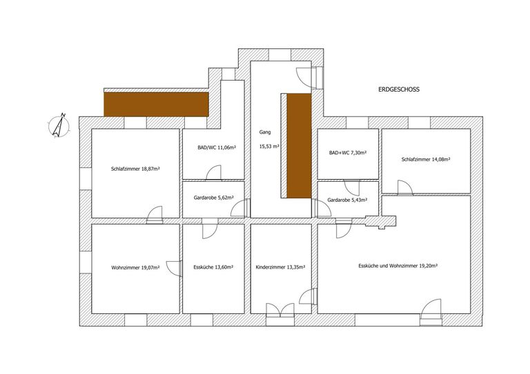
Auf insgesamt 419 m² Wohnfläche und 568 m² Nutzfläche verteilen sich fünf gut vermietete Wohneinheiten. Das Objekt präsentiert sich in einem ausgezeichneten baulichen Zustand und bietet Anlegern ein solides, kalkulierbares Investment mit langfristiger Perspektive.
Die Sanierung 2014 umfasste unter anderem:
- Erneuerung des Daches
- Vollwärmeschutz-Fassade
- 3-fach-ISO-Kunststofffenster
- Modernisierung der Innenräume
- Erneuerung von Strom- und Leitungsinstallationen
- Gas-Zentralheizung
- Aufwertung des Kellergeschosses
Hier investierst du nicht in einen Sanierungsfall – sondern in nachhaltige...
Nachhaltig saniertes Zinshaus mit 5 Einheiten – vollvermietet & wertbeständig in Kindberg
Dieses 2014 umfassend sanierte Zinshaus vereint technische Qualität, stabile Mieteinnahmen und eine ausgezeichnete Infrastruktur zu einer überzeugenden Kapitalanlage.
Auf insgesamt 419 m² Wohnfläche und 568 m² Nutzfläche verteilen sich fünf gut vermietete Wohneinheiten. Das Objekt präsentiert sich in einem ausgezeichneten baulichen Zustand und bietet Anlegern ein solides, kalkulierbares Investment mit langfristiger Perspektive.
Die Sanierung 2014 umfasste unter anderem:
- Erneuerung des Daches
- Vollwärmeschutz-Fassade
- 3-fach-ISO-Kunststofffenster
- Modernisierung der Innenräume
- Erneuerung von Strom- und Leitungsinstallationen
- Gas-Zentralheizung
- Aufwertung des Kellergeschosses
Hier investierst du nicht in einen Sanierungsfall – sondern in nachhaltige Substanz.
Besonderes Highlight: Dachterrassenwohnung
Ein echtes Differenzierungsmerkmal ist die attraktive Dachterrassenwohnung mit 17,5 m² Dachterrasse – ein gefragtes Wohnplus, das für stabile Nachfrage und langfristige Vermietbarkeit sorgt.
Wirtschaftliche Eckdaten auf einen Blick
- 5 Wohneinheiten
- Vollvermietet
- 5 Carport-Stellplätze
- Sehr gute Infrastruktur (Einkauf, Verkehr, Nahversorgung fußläufig erreichbar)
- Kaufpreis: € 465.000,- zzgl. 20 % USt.
Die Kombination aus moderner Gebäudetechnik, gepflegtem Gesamtzustand und durchdachtem Wohnkonzept schafft beste Voraussetzungen für eine stabile Rendite.
Warum dieses Objekt überzeugt
✔ Keine unmittelbaren Investitionen notwendig
✔ Technisch modernisiert & energieeffizient
✔ Attraktive Wohnungsgrößen
✔ Sehr gute Vermietbarkeit
✔ Nachhaltiger Standort mit Entwicklungspotenzial
Dieses Zinshaus eignet sich ideal für Anleger, die Wert auf Sicherheit, Qualität und langfristige Ertragskraft legen.
Der Vermittler ist als Doppelmakler tätig.
Infrastruktur / Entfernungen
Gesundheit
Arzt <2.000m
Apotheke <500m
Krankenhaus <3.500m
Kinder & Schulen
Schule <2.500m
Kindergarten <1.000m
Universität <8.000m
Nahversorgung
Supermarkt <500m
Bäckerei <2.500m
Sonstige
Bank <2.000m
Geldautomat <2.000m
Post <500m
Polizei <3.000m
Verkehr
Bus <500m
Autobahnanschluss <1.500m
Bahnhof <2.000m
Flughafen <8.000m
Angaben Entfernung Luftlinie / Quelle: OpenStreetMap
Objektdaten
Ausstattung
- Bad mit Dusche
- Bad mit Badewanne
- Bad mit Fenster
- Einbauküche
- Fliesenboden
- Parkettboden
- Laminatboden
- Estrichboden
- Zentralheizung
- Befeuerung mit Gas
- Ausrichtung Balkon/Terrasse - Nord
- Satteldach
- Massiv Bauweise
Zustand
- Baujahr
- 1900
- HWB
- 119 kWh/m² pro Jahr
- Klasse HWB
- D
- fGEE
- 2.12
- Klasse fGEE
- D
Flächen
- Grundstücksfläche
- 1.243m²
Kosten
- Kaufpreis Brutto
- € 465.000,00
Zinshäuser und Renditeobjekte zum Kaufen in Österreich
Andere Besucher suchen nach...
- Immobilien kaufen in 2601 Sollenau
- Immobilien in 4951 Polling im Innkreis, Oberösterreich
- Immobilien in 4742 Pram, Oberösterreich kaufen oder mieten
- Häuser kaufen in 2340 Mödling, Niederösterreich
- Häuser kaufen in 9421 Gemmersdorf, Kärnten
- Wohnungen / Eigentumswohnungen kaufen in 9431 St. Stefan, Kärnten
- Häuser kaufen in Bruck an der Leitha, Niederösterreich
- Immobilien mieten in Krems an der Donau, Niederösterreich
- Häuser zum Kaufen im Bezirk St. Pölten Land, Niederösterreich
- Büro / Praxen mieten in Rohrbach, Oberösterreich