*** Top kernsaniertes 439m² Zinshaus mit Nebengebäude in Kindberg – 4 Einheiten incl. Carports, voll vermietet, starke Renditechance! ***
-
sofort
Beschreibung
Nachhaltig saniertes Zinshaus mit 4 Einheiten – vollvermietet & wertbeständig in Kindberg
Dieses 2013 umfassend sanierte Zinshaus vereint technische Qualität, stabile Mieteinnahmen und eine ausgezeichnete Infrastruktur zu einer überzeugenden Kapitalanlage.
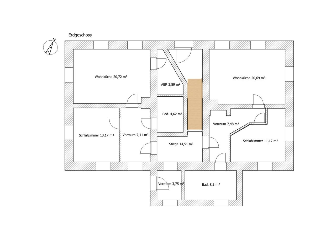
Auf insgesamt 283 m² Wohnfläche und 439 m² Nutzfläche verteilen sich vier gut vermietete Wohneinheiten. Das Objekt präsentiert sich in einem ausgezeichneten baulichen Zustand und bietet Anlegern ein solides, kalkulierbares Investment mit langfristiger Perspektive.
Die Sanierung 2013 umfasste unter anderem:
- Erneuerung des Daches
- Vollwärmeschutz-Fassade
- 2-fach-ISO-Kunststofffenster
- Modernisierung der Innenräume und Sanitär
- Erneuerung von Strom- und Leitungsinstallationen
- Gas-Zentralheizung
- Aufwertung des Kellergeschosses
Hier investierst du nicht in einen Sanierungsfall – sondern...
Nachhaltig saniertes Zinshaus mit 4 Einheiten – vollvermietet & wertbeständig in Kindberg
Dieses 2013 umfassend sanierte Zinshaus vereint technische Qualität, stabile Mieteinnahmen und eine ausgezeichnete Infrastruktur zu einer überzeugenden Kapitalanlage.
Auf insgesamt 283 m² Wohnfläche und 439 m² Nutzfläche verteilen sich vier gut vermietete Wohneinheiten. Das Objekt präsentiert sich in einem ausgezeichneten baulichen Zustand und bietet Anlegern ein solides, kalkulierbares Investment mit langfristiger Perspektive.
Die Sanierung 2013 umfasste unter anderem:
- Erneuerung des Daches
- Vollwärmeschutz-Fassade
- 2-fach-ISO-Kunststofffenster
- Modernisierung der Innenräume und Sanitär
- Erneuerung von Strom- und Leitungsinstallationen
- Gas-Zentralheizung
- Aufwertung des Kellergeschosses
Hier investierst du nicht in einen Sanierungsfall – sondern in nachhaltige Substanz.
Besonderes Highlight: Dachterrassenwohnung über 2Etagen
Ein echtes Differenzierungsmerkmal ist die attraktive Dachterrassenwohnung mit 5,6 m² Terrasse – ein gefragtes Wohnplus, das für stabile Nachfrage und langfristige Vermietbarkeit sorgt.
Wirtschaftliche Eckdaten auf einen Blick
- 4 Wohneinheiten
- Vollvermietet
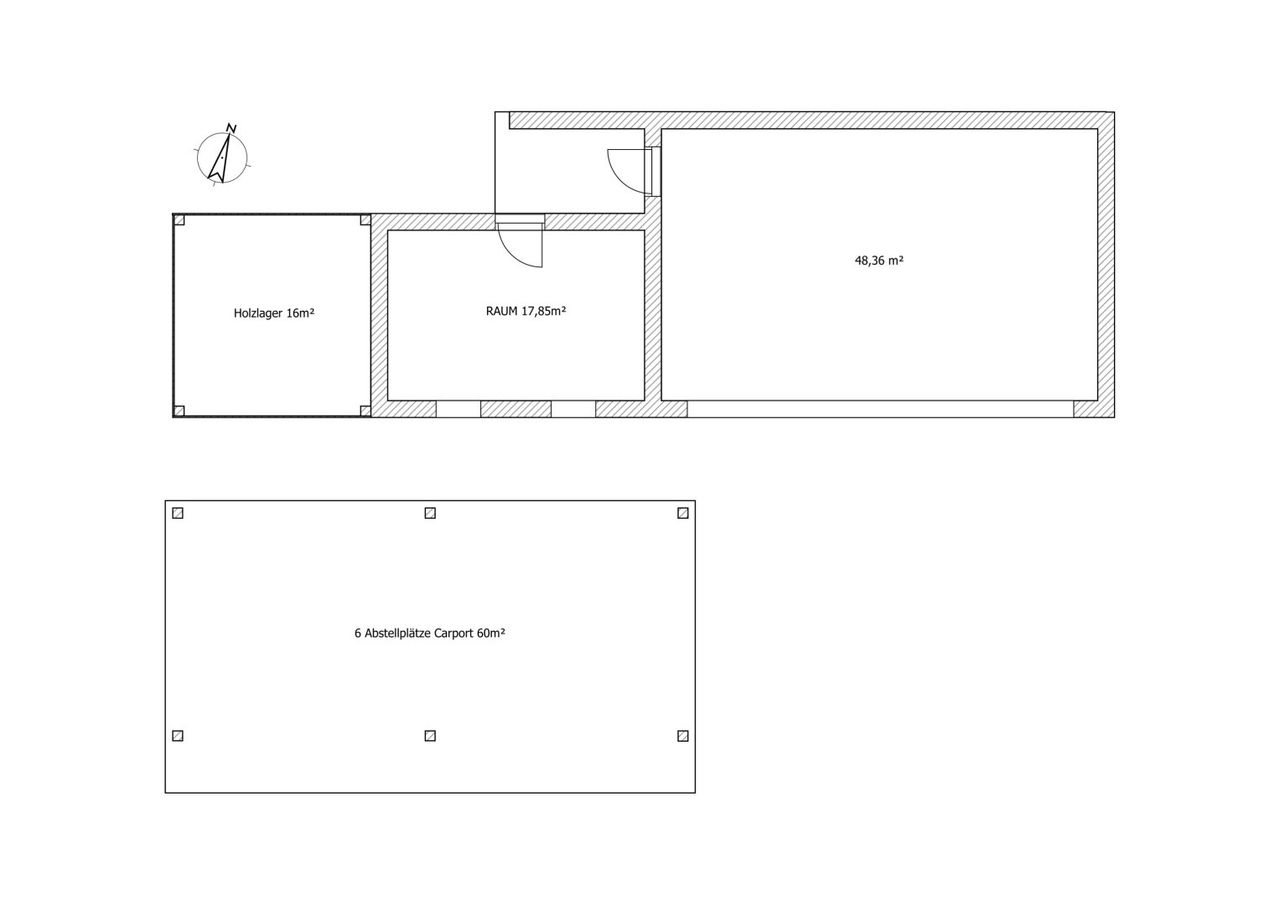
- 6 Carport-Stellplätze + Nebengebäude
- Sehr gute Infrastruktur (Einkauf, Verkehr, Nahversorgung fußläufig erreichbar)
- Kaufpreis: € 325.000,- zzgl. 20 % USt.
Die Kombination aus moderner Gebäudetechnik, gepflegtem Gesamtzustand und durchdachtem Wohnkonzept schafft beste Voraussetzungen für eine stabile Rendite.
Warum dieses Objekt überzeugt
✔ Keine unmittelbaren Investitionen notwendig
✔ Technisch modernisiert & energieeffizient
✔ Attraktive Wohnungsgrößen
✔ Sehr gute Vermietbarkeit
✔ Nachhaltiger Standort mit Entwicklungspotenzial
Dieses Zinshaus eignet sich ideal für Anleger, die Wert auf Sicherheit, Qualität und langfristige Ertragskraft legen.
Der Vermittler ist als Doppelmakler tätig.
Infrastruktur / Entfernungen
Gesundheit
Arzt <1.500m
Apotheke <1.000m
Krankenhaus <3.500m
Kinder & Schulen
Schule <2.500m
Kindergarten <1.000m
Universität <8.000m
Nahversorgung
Supermarkt <1.000m
Bäckerei <2.500m
Sonstige
Bank <1.500m
Geldautomat <1.500m
Post <1.000m
Polizei <3.500m
Verkehr
Bus <500m
Autobahnanschluss <1.500m
Bahnhof <1.500m
Flughafen <7.500m
Angaben Entfernung Luftlinie / Quelle: OpenStreetMap
Objektdaten
Ausstattung
- Teilmöbliert
- Zentralheizung
- Befeuerung mit Gas
- Satteldach
- Massiv Bauweise
Zustand
- Baujahr
- 1900
- Alter
- NEUBAU
- HWB
- 139.3 kWh/m² pro Jahr
- Klasse HWB
- D
- fGEE
- 2.28
- Klasse fGEE
- D
Flächen
- Anzahl der Zimmer
- 10
- Anzahl der Badezimmer
- 4
- Anzahl der sep. WCs
- 4
- Anzahl der Terrassen
- 1
- Stellplätze
- 6
- Wohnfläche
- 283m²
- Nutzfläche
- 439m²
- Grundstücksfläche
- 1.065m²
- Kellerfläche
- 55m²
- Terrassenfläche
- 1m²
Kosten
- Kaufpreis Brutto
- € 390.000,00
- enth. Umsatzsteuer
- € 65.000,00
Verwaltung
- Verfügbar ab
- sofort
Häuser zum Kaufen im Umkreis von Kindberg
Häuser zum Kaufen in Österreich
Andere Besucher suchen nach...
- Immobilien kaufen in 2601 Sollenau
- Immobilien in 4951 Polling im Innkreis, Oberösterreich
- Immobilien in 4742 Pram, Oberösterreich kaufen oder mieten
- Häuser kaufen in 2340 Mödling, Niederösterreich
- Häuser kaufen in 9421 Gemmersdorf, Kärnten
- Wohnungen / Eigentumswohnungen kaufen in 9431 St. Stefan, Kärnten
- Häuser kaufen in Bruck an der Leitha, Niederösterreich
- Immobilien mieten in Krems an der Donau, Niederösterreich
- Häuser zum Kaufen im Bezirk St. Pölten Land, Niederösterreich
- Büro / Praxen mieten in Rohrbach, Oberösterreich