Miethaus mit 9 Wohnungen, Gemeinschaftsgarten und Carports
Beschreibung
Entdecken Sie eine einzigartige Gelegenheit in Hohenau an der March: Eine Wohnanlage, die 1950 in solider Ziegel-Massivbauweise errichtet wurde. Auf dem Grundstück darf nach NÖ-Bauordnung ein weiteres Gebäude errichtet werden. Diese bemerkenswerte Immobilie erstreckt sich über eine großzügige Grundstücksfläche von ca. 1.801 m² und bietet eine beeindruckende Wohnfläche von ca. 549 m². Die letzte umfassende Modernisierung fand im Jahr 2007 statt und kombiniert den Charme der Vergangenheit mit dem Komfort der Gegenwart. Die Wohnanlage besteht aus neun Wohneinheiten, die mit Parkett, elegantem Laminat und zeitlosen Fliesen ausgestattet sind. Zwei Küchentypen – sowohl möbliert als auch unmöbliert – bieten Flexibilität für...
Entdecken Sie eine einzigartige Gelegenheit in Hohenau an der March: Eine Wohnanlage, die 1950 in solider Ziegel-Massivbauweise errichtet wurde. Auf dem Grundstück darf nach NÖ-Bauordnung ein weiteres Gebäude errichtet werden.
Diese bemerkenswerte Immobilie erstreckt sich über eine großzügige Grundstücksfläche von ca. 1.801 m² und bietet eine beeindruckende Wohnfläche von ca. 549 m². Die letzte umfassende Modernisierung fand im Jahr 2007 statt und kombiniert den Charme der Vergangenheit mit dem Komfort der Gegenwart.
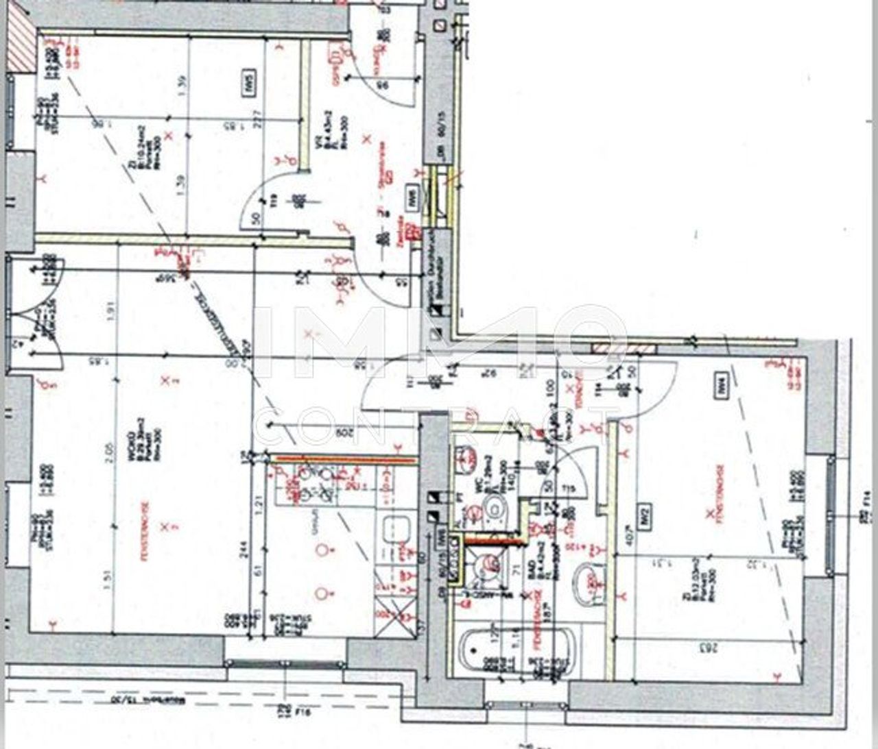
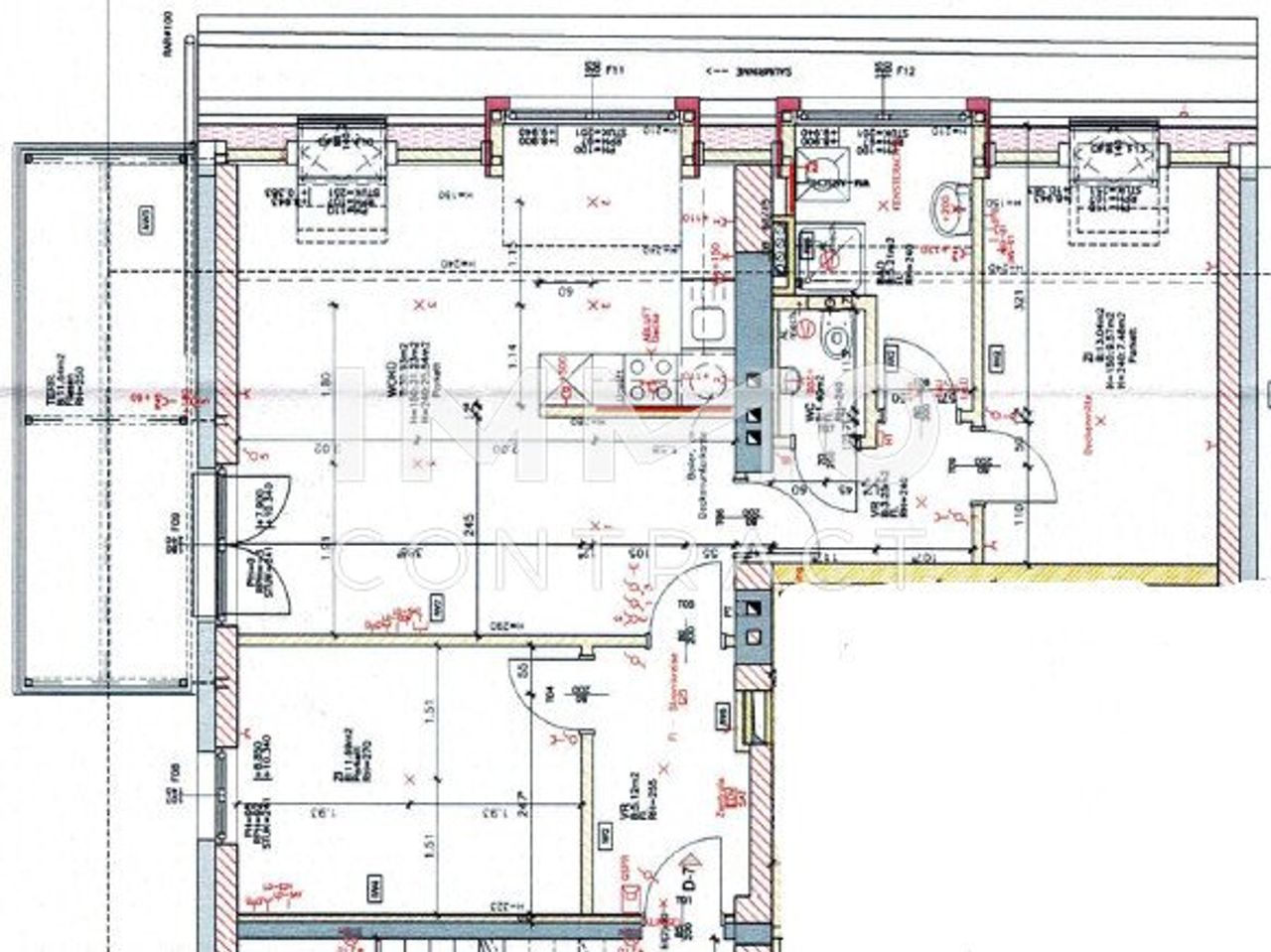
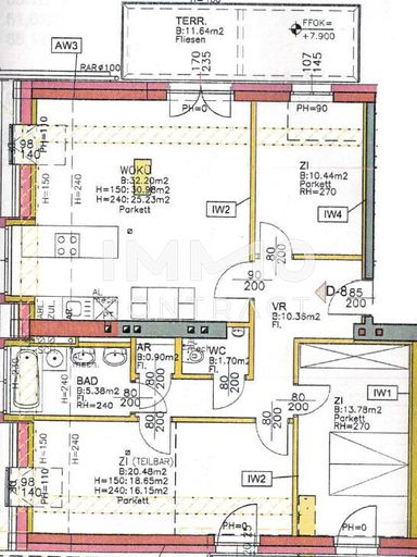
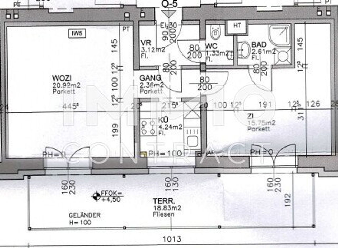
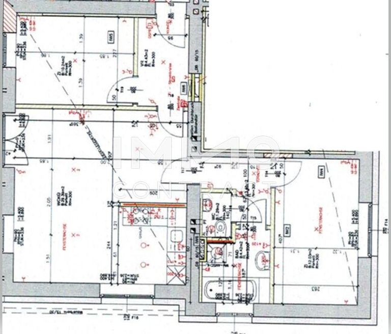
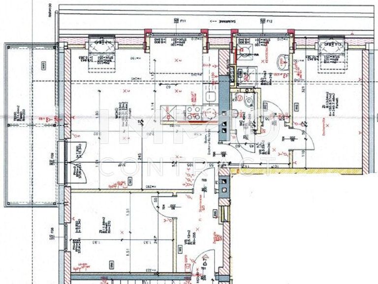
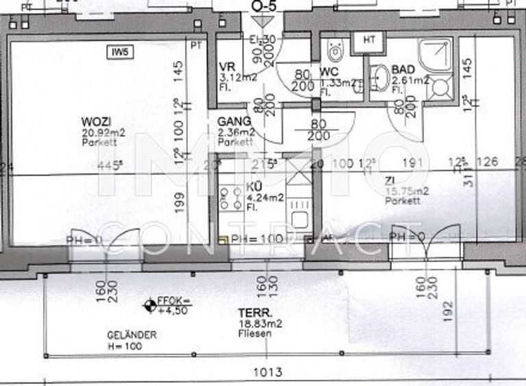
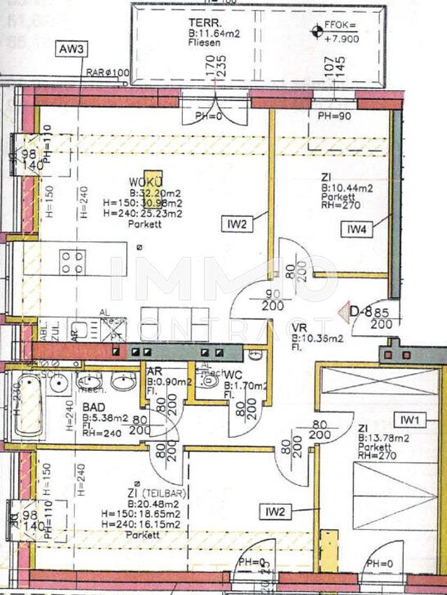
Die Wohnanlage besteht aus neun Wohneinheiten, die mit Parkett, elegantem Laminat und zeitlosen Fliesen ausgestattet sind. Zwei Küchentypen – sowohl möbliert als auch unmöbliert – bieten Flexibilität für individuelle Bedürfnisse. Jeder Wohnung ist außerdem ein eigenes Kellerabteil zugeordnet, welches zusätzlichen Stauraum ermöglicht.
Die Anlage verfügt über einen Gemeinschaftsgarten, der zur Entspannung und Erholung im Freien einlädt. Weiterhin profitieren Sie von der Annehmlichkeit eines eigenen Balkons bei jeder Wohneinheit, ideal zum Genießen sonniger Tage. Für die Fahrzeuge stehen Carports zur Verfügung, die optimalen Schutz bieten.
Rendite ca. 3,9 %
Alle Mieter verfügen über einen befristeten Mietvertrag.
Für ein weiteres Gebäude wurden bereits Pläne eingereicht, doch das Vorhaben wurde, dann nicht umgesetzt.
Es besteht somit die Möglichkeit diese Anlage zu erweitern.
Die Immobilie steht ab sofort zu einem nach Vereinbarung verhandelbaren Zeitpunkt zur Verfügung. Profitieren Sie von einer hervorragenden Lage . Kontaktieren Sie uns gerne für weitere Informationen oder zur Vereinbarung eines Besichtigungstermins.
Nutzen Sie diese Chance, eine erstklassige Investition in eine Wohnanlage in Hohenau an der March zu tätigen.
Der Vermittler ist als Doppelmakler tätig.
Infrastruktur / Entfernungen
Gesundheit
Arzt <6.500m
Apotheke <500m
Kinder & Schulen
Schule <1.000m
Kindergarten <4.500m
Nahversorgung
Supermarkt <500m
Bäckerei <500m
Sonstige
Bank <500m
Geldautomat <500m
Post <4.500m
Polizei <500m
Verkehr
Bus <500m
Bahnhof <1.000m
Angaben Entfernung Luftlinie / Quelle: OpenStreetMap
Objektdaten
Ausstattung
- Gartennutzung
- Fahrradraum
- Bad mit Dusche
- Bad mit Badewanne
- Bad mit Fenster
- Einbauküche
- Fliesenboden
- Laminatboden
- Erdwärme
- Ausrichtung Balkon/Terrasse - Ost
- Ausrichtung Balkon/Terrasse - West
- Ausrichtung Balkon/Terrasse - Südost
Zustand
- Zustand
- MODERNISIERT
- Baujahr
- 1950
- HWB
- 42 kWh/m² pro Jahr
- Klasse HWB
- B
- fGEE
- 0.87
- Klasse fGEE
- B
Flächen
- Stellplätze
- 9
- Wohnfläche
- 549m²
- Grundstücksfläche
- 1.801m²
Kosten
- Kaufpreis Brutto
- € 1.370.000,00
Verwaltung
- Verfügbar ab
- nach Vereinbarung
Andere Besucher suchen nach...
- Grundstücke kaufen in 3400 Weidlingbach
- Wohnungen kaufen in 4663 Laakirchen
- Häuser in 7471 Rechnitz
- Wohnungen in 2410 Hainburg an der Donau
- Häuser kaufen in 2432 Schwadorf
- Wohnungen kaufen in 3002 Purkersdorf
- Häuser in 3150 Wilhelmsburg
- Wohnungen kaufen in 3470 Engelmannsbrunn
- Grundstücke kaufen im Bezirk Mattersburg
- Grundstücke kaufen im Bezirk Gmunden