Vollvermietetes Zinshaus in Bestlage von Graz nähe Lendplatz
€ 790.000
€ 2.710 / m²
8020 Graz
Beschreibung
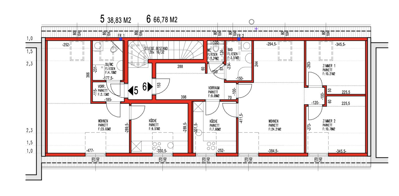
In unmittelbarer Nähe zum traditionsreichen Lendplatz befindet sich dieses historisch wertvolle Zinshaus in der Josefigasse 10. Das Gebäude wurde 2006 umfassend saniert und verbindet den Charme eines Altstadthauses mit zeitgemäßem Wohnkomfort. Auf insgesamt rund 291 m² Wohnnutzfläche verteilen sich 6 Wohnungen zwischen ca. 38 m² und 67 m². Zwei Einheiten sind unbefristet, jedoch indexgesichert vermietet, die übrigen Wohnungen auf Basis befristeter Verträge. Das Haus ist vollständig vermietet und erwirtschaftet derzeit einen Nettomietzins von € 2.146,22 monatlich. Inklusive Betriebskosten von € 696,94 und Fernwärmebedarf von € 439,57 ergibt sich ein Gesamtmietzins von € 3.367,23. Damit bietet die Liegenschaft eine attraktive und...
In unmittelbarer Nähe zum traditionsreichen Lendplatz befindet sich dieses historisch wertvolle Zinshaus in der Josefigasse 10. Das Gebäude wurde 2006 umfassend saniert und verbindet den Charme eines Altstadthauses mit zeitgemäßem Wohnkomfort. Auf insgesamt rund 291 m² Wohnnutzfläche verteilen sich 6 Wohnungen zwischen ca. 38 m² und 67 m². Zwei Einheiten sind unbefristet, jedoch indexgesichert vermietet, die übrigen Wohnungen auf Basis befristeter Verträge.
Das Haus ist vollständig vermietet und erwirtschaftet derzeit einen Nettomietzins von € 2.146,22 monatlich. Inklusive Betriebskosten von € 696,94 und Fernwärmebedarf von € 439,57 ergibt sich ein Gesamtmietzins von € 3.367,23. Damit bietet die Liegenschaft eine attraktive und stabile Einnahmequelle.
Die Lage unmittelbar beim Lendplatz zählt zu den gefragtesten Wohn- und Investitionslagen in Graz. Der traditionsreiche Markt mit seinen Bauernständen, Cafés und Lokalen bildet seit Jahrhunderten einen zentralen Treffpunkt und hat sich in den letzten Jahren zu einem kreativen, urbanen Zentrum entwickelt. Hier treffen historisches Flair und moderne Lebensqualität aufeinander – ein Garant für nachhaltige Wertentwicklung.
Der Kaufpreis von € 800.000 wird durch die außergewöhnliche Lage, die nachhaltige Vermietungssituation und den guten Bauzustand mehr als gerechtfertigt. Dieses Altstadtjuwel vereint stabile Rendite, historisches Ambiente und begehrte Innenstadtlage – eine seltene Gelegenheit für Investoren, die Substanz und Lagequalität suchen.
Das Haus ist vollständig vermietet und erwirtschaftet derzeit einen Nettomietzins von € 2.146,22 monatlich. Inklusive Betriebskosten von € 696,94 und Fernwärmebedarf von € 439,57 ergibt sich ein Gesamtmietzins von € 3.367,23. Damit bietet die Liegenschaft eine attraktive und stabile Einnahmequelle.
Die Lage unmittelbar beim Lendplatz zählt zu den gefragtesten Wohn- und Investitionslagen in Graz. Der traditionsreiche Markt mit seinen Bauernständen, Cafés und Lokalen bildet seit Jahrhunderten einen zentralen Treffpunkt und hat sich in den letzten Jahren zu einem kreativen, urbanen Zentrum entwickelt. Hier treffen historisches Flair und moderne Lebensqualität aufeinander – ein Garant für nachhaltige Wertentwicklung.
Der Kaufpreis von € 800.000 wird durch die außergewöhnliche Lage, die nachhaltige Vermietungssituation und den guten Bauzustand mehr als gerechtfertigt. Dieses Altstadtjuwel vereint stabile Rendite, historisches Ambiente und begehrte Innenstadtlage – eine seltene Gelegenheit für Investoren, die Substanz und Lagequalität suchen.
| Angaben gemäß gesetzlichem Erfordernis: | |||
| Heizwärmebedarf: | 75.0 kWh/(m²a) | ||
Objektdaten
Ausstattung
- Gartennutzung
- Bus
- Sonstiges
- Stadtzentrum
- Straßenbahn
Zustand
- Zustand
- GEPFLEGT
- Baujahr
- ca. 1880
Flächen
- Nutzfläche
- 292m²
Kosten
- Kaufpreis
- € 790.000,00
Verwaltung
- Zur gewerbl. Nutzung
- Ja
Andere Besucher suchen nach...
- Grundstücke kaufen in 3400 Weidlingbach
- Wohnungen kaufen in 4663 Laakirchen
- Häuser in 7471 Rechnitz
- Wohnungen in 2410 Hainburg an der Donau
- Häuser kaufen in 2432 Schwadorf
- Wohnungen kaufen in 3002 Purkersdorf
- Häuser in 3150 Wilhelmsburg
- Wohnungen kaufen in 3470 Engelmannsbrunn
- Grundstücke kaufen im Bezirk Mattersburg
- Grundstücke kaufen im Bezirk Gmunden