Kernsaniertes Anlageobjekt mit großzügigen Büroflächen und Wohneinheiten in 4050 Traun
€ 1.500.000
€ 1.538 / m²
4050 Traun
-
ab sofort
Beschreibung
Top-Lage, modernes Erscheinungsbild und sofort nutzbar – diese Liegenschaft überzeugt durch Substanz, Flexibilität und nachhaltiges Ertragspotenzial. In zentraler Bestlage von 4050 Traun/St. Martin, nur wenige Meter von der Salzburger Straße entfernt, steht dieses vollständig modernisierte Mehrzweckobjekt mit repräsentativem Bürogebäude und zwei separaten Wohneinheiten zum Verkauf. Die Liegenschaft präsentiert sich nach einer umfassenden Kernsanierung in neuwertigem Zustand und kombiniert hochwertige Ausstattung, solide Bauqualität und vielseitige Nutzungsmöglichkeiten – ideal für Investoren, Eigennutzer oder Unternehmen mit integriertem Wohnkonzept. ÜBERBLICK & ECKDATEN - Gesamtnutzfläche (inkl. Garage): ca. 975 m² - Grundstücksfläche: ca. 1.241 m² - Gesamtbürofläche: ca. 784 m² (KG, EG, OG) - 2...
Top-Lage, modernes Erscheinungsbild und sofort nutzbar – diese Liegenschaft überzeugt durch Substanz, Flexibilität und nachhaltiges Ertragspotenzial.
In zentraler Bestlage von 4050 Traun/St. Martin, nur wenige Meter von der Salzburger Straße entfernt, steht dieses vollständig modernisierte Mehrzweckobjekt mit repräsentativem Bürogebäude und zwei separaten Wohneinheiten zum Verkauf.
Die Liegenschaft präsentiert sich nach einer umfassenden Kernsanierung in neuwertigem Zustand und kombiniert hochwertige Ausstattung, solide Bauqualität und vielseitige Nutzungsmöglichkeiten – ideal für Investoren, Eigennutzer oder Unternehmen mit integriertem Wohnkonzept.
ÜBERBLICK & ECKDATEN
- Gesamtnutzfläche (inkl. Garage): ca. 975 m²
- Grundstücksfläche: ca. 1.241 m²
- Gesamtbürofläche: ca. 784 m² (KG, EG, OG)
- 2 getrennte Wohnungen: ca. 99 m² (EG) + 84 m² (OG)
- Stellplätze: 11 private PKW-Abstellplätze im Innenhof
- Zustand: umfassend kernsaniert (technisch & optisch neuwertig)
- Heizung: großteils Fußbodenheizung / Heizkörper
Diese Kombination aus flexibler Nutzung, langfristiger Werthaltigkeit und sofortiger Ertragschance macht die Immobilie zu einer Rarität am Markt.
DAS BÜROGEBÄUDE - MODERN, FUNKTIONAL UND VIELSEITIG
Das Bürogebäude erstreckt sich über drei Ebenen (KG, EG, OG) und wurde im Zuge der Sanierung technisch und optisch vollständig erneuert. Es bietet großzügige, helle Flächen, eine flexible Grundrissstruktur und hochwertige Materialien – perfekt für Dienstleistungsbetriebe, Kanzleien, Agenturen oder Praxisgemeinschaften.
Flächenaufteilung:
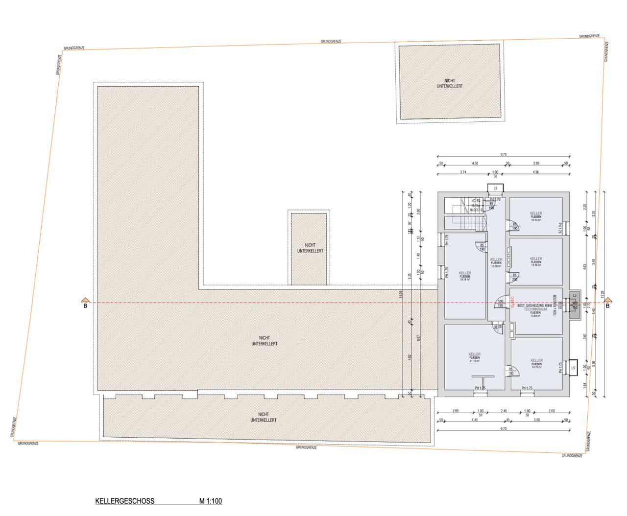
Kellergeschoss: ca. 107 m² – aktuell als Fitness- und Wellnessbereich genutzt, vielseitig adaptierbar
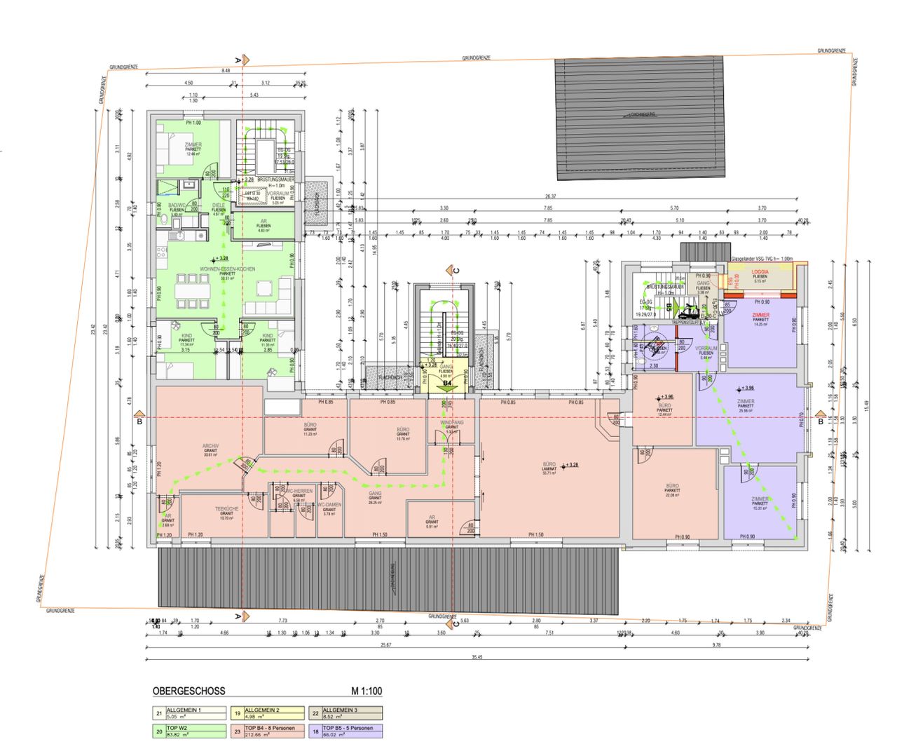
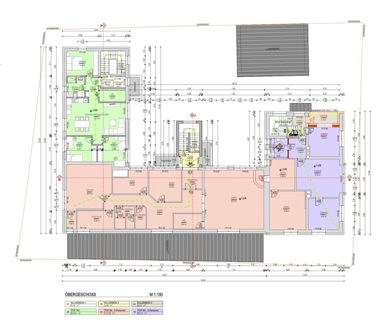
Erdgeschoss: ca. 385 m² – große, offene Büroflächen, zwei möbilierte Aufenthaltsräume mit Küche, einige Sanitärbereiche, vier WCs, Abstellräume, und eine großzügige Garage
Obergeschoss: ca. 292 m² – zusätzliche Büroflächen, teils bisher wohnlich genutzt
Ausstattung & Besonderheiten:
- Großraumbüros und mehrere Einzelbüros
- Besprechungsräume und Teeküchen auf jeder Ebene
- Sanitärräume mit WC-Anlagen und Dusche
- Serverraum inkl. EDV-Vernetzung
- Große Fensterflächen mit elektrischen Raffstores
- Automatisches Einfahrtstor inkl. Fernbedienung
- 11 Parkplätze im Innenhof
- Gargenhütte im Innenhof
- Zusätzliche öffentliche Parkmöglichkeiten vor Ort
- Eigenständige Strom- und Wärmezähler für Büro- und Wohntrakt
Die Flächen sind sofort nutzbar oder teilbar, wodurch flexible Mieterstrukturen (z. B. Coworking, Einzelvermietung oder Eigennutzung) möglich sind.
DIE WOHNUNGEN - MODERN, HOCHWERTIG UND BEZUGSFERTIG
Im hinteren Gebäudeteil befinden sich zwei eigenständige Wohneinheiten, die 2020 vollständig neu errichtet bzw. hochwertig saniert wurden. Beide Wohnungen sind technisch auf aktuellem Standard und bieten modernen Wohnkomfort mit stilvollem Design.
Wohnung Erdgeschoss – ca. 99 m² + Gartenbereich:
- Großzügiger Wohn-/Essbereich mit neuer DAN-Küche inkl. Geräte (5 Jahre Garantie)
- 3 weitere Zimmer (ein Schlafzimmer und zwei Kinderzimmer)
- Hochwertige Fliesenböden, glatte Wände & Decken
- Fußbodenheizung in allen Räumen
- Internorm KF 410 Fenster mit elektrischen Raffstores
- Begehbare Dusche (120 cm) & WC
- 20 cm Wärmedämmverbundsystem
- Privater Parkplatz direkt vor der Wohnung
Wohnung Obergeschoss – ca. 84 m² + 5 m² Eingangsbereich:
- Gleiche hochwertige Ausstattung wie im EG
- Großzügiger Wohn-/Essbereich
- 3 weitere Zimmer (Schlafzimmer, Büro, Kinderzimmer)
- Modernes Bad mit Dusch-WC
- Eigener Parkplatz und separater Zugang
Beide Wohnungen präsentieren sich in neuwertigem Zustand und sind sofort vermietbar oder eigennutzbar.
Die Ausstattung erfüllt gehobene Ansprüche – perfekt für langfristige Mieter oder Eigennutzer mit Qualitätsbewusstsein.
SANIERUNGSARBEITEN - ALLES NEU, ALLES HOCHWERTIG
Die gesamte Liegenschaft wurde in den letzten Jahren komplett kernsaniert – vom Keller bis zum Dach.
Im Zuge der Sanierung wurden sämtliche Gewerke fachgerecht erneuert:
- Gebäudehülle: Wärmedämmverbundsystem, neue Fassade, neue Fenster & Türen
- Dach: befindet sich in einem Top Zustand (wurde neu versiegelt)
- Elektrik & Wasserleitungen: komplett neu
- Heizsystem: moderne Fußbodenheizung & energieeffiziente Haustechnik
- Innenausbau: neue Böden, Wände, Decken, Türen, Sanitärräume & Küchen
- EDV- & Netzwerkverkabelung: im gesamten Bürotrakt vorhanden
- Optische Gestaltung: modernes Farb- und Materialkonzept, hochwertige Oberflächen
Damit wurde eine Immobilie geschaffen, die zeitgemäßen Ansprüchen in Technik, Komfort und Energieeffizienz in jeder Hinsicht entspricht – ohne Sanierungsbedarf.
LAGE - 4050 TRAUN / St. MARTIN - ZENTRAL, SICHTBAR, BESTENS ANGEBUNDEN
Die Liegenschaft befindet sich in Traun / St. Martin, einer der begehrtesten Lagen des Großraums Linz-Wels.
Die Salzburger Straße ist nur wenige Meter entfernt – beste Sichtbarkeit, ideale Verkehrsanbindung und hohe Standortqualität sind garantiert.
Infrastruktur & Verkehr:
- Bushaltestelle direkt vor dem Gebäude (Linz Linie 43, WWT)
- Bahnhof Traun in wenigen Minuten erreichbar
- Autobahnanschluss A1 / A25 in kurzer Distanz
- Nahversorger, Gastronomie, Banken & Ärzte in unmittelbarer Umgebung
- Schulen & Kindergärten im direkten Umfeld
Diese Lage verbindet vorallem Erreichbarkeit, Urbanität und Effizienz – ein optimaler Standort für Gewerbe, Vermietung oder Eigennutzung.
Diese Liegenschaft vereint alles, was erfahrene Investor:innen oder anspruchsvolle Eigennutzer suchen: ein hochwertig kernsaniertes Gebäudeensemble mit durchdachtem Nutzungskonzept, bestehend aus modernen Büroflächen, zwei separaten Wohneinheiten und großzügigen Freiflächen. Die Verbindung aus Qualität, Flexibilität und Lage schafft ein Investment mit langfristiger Perspektive – solide in der Substanz, nachhaltig im Wert und vielseitig in der Nutzung. Ein Objekt, das in seiner Kombination aus Zustand, Standort und Ertragspotenzial nur selten am Markt zu finden ist.
Interesse? Dann schicken Sie uns bitte Ihren vollständigen Namen, Wohnadresse, Telefonnummer & Ihre E-Mailadresse und wir senden Ihnen ein aussagekräftiges Exposé mit allen relevanten Unterlagen. Bitte beachten Sie, dass wir aufgrund der Nachweispflicht gegenüber dem Eigentümer nur Anfragen mit allen Kontaktdaten bearbeiten können.
Gerne können wir im Anschluss eine unverbindliche und kostenlose Besichtigung vereinbaren. Danke!
Auch bei der Finanzierung Ihrer Traumimmobilie sind Sie bei uns in besten Händen. Als unabhängiger Immobilien- und Finanzberater in ganz Oberösterreich setzt sich das TOP-REAL Team gerne mit Ihnen zusammen.
Gemeinsam besprechen wir in aller Ruhe Ihre Finanzierungsfragen rund um das Thema Immobilienerwerb – persönlich, transparent und kompetent.
Dank unseres langjährig gepflegten Netzwerks mit starken Partnerbanken wie Sparkasse OÖ, Oberbank und Wüstenrot holen wir für Sie das bestmögliche Finanzierungsangebot ein – maßgeschneidert und unkompliziert.
Unser Tipp:
Sie sind auf der Suche nach einer passenden Immobilie?
Alle unsere Angebote finden Sie tagesaktuell im Internet unter www.toprealimmobilien.at
Teilen Sie uns Ihren Suchwunsch mit - dann werden Sie noch schneller & exklusiv über Ihre potentielle Wunschimmobilie informiert.
Überlegen Sie Ihre derzeitige Immobilie zu veräußern? Gerne können Sie Ihre Immobilie kostenlos über das TOP-REAL Team bewerten lassen.
In zentraler Bestlage von 4050 Traun/St. Martin, nur wenige Meter von der Salzburger Straße entfernt, steht dieses vollständig modernisierte Mehrzweckobjekt mit repräsentativem Bürogebäude und zwei separaten Wohneinheiten zum Verkauf.
Die Liegenschaft präsentiert sich nach einer umfassenden Kernsanierung in neuwertigem Zustand und kombiniert hochwertige Ausstattung, solide Bauqualität und vielseitige Nutzungsmöglichkeiten – ideal für Investoren, Eigennutzer oder Unternehmen mit integriertem Wohnkonzept.
ÜBERBLICK & ECKDATEN
- Gesamtnutzfläche (inkl. Garage): ca. 975 m²
- Grundstücksfläche: ca. 1.241 m²
- Gesamtbürofläche: ca. 784 m² (KG, EG, OG)
- 2 getrennte Wohnungen: ca. 99 m² (EG) + 84 m² (OG)
- Stellplätze: 11 private PKW-Abstellplätze im Innenhof
- Zustand: umfassend kernsaniert (technisch & optisch neuwertig)
- Heizung: großteils Fußbodenheizung / Heizkörper
Diese Kombination aus flexibler Nutzung, langfristiger Werthaltigkeit und sofortiger Ertragschance macht die Immobilie zu einer Rarität am Markt.
DAS BÜROGEBÄUDE - MODERN, FUNKTIONAL UND VIELSEITIG
Das Bürogebäude erstreckt sich über drei Ebenen (KG, EG, OG) und wurde im Zuge der Sanierung technisch und optisch vollständig erneuert. Es bietet großzügige, helle Flächen, eine flexible Grundrissstruktur und hochwertige Materialien – perfekt für Dienstleistungsbetriebe, Kanzleien, Agenturen oder Praxisgemeinschaften.
Flächenaufteilung:
Kellergeschoss: ca. 107 m² – aktuell als Fitness- und Wellnessbereich genutzt, vielseitig adaptierbar
Erdgeschoss: ca. 385 m² – große, offene Büroflächen, zwei möbilierte Aufenthaltsräume mit Küche, einige Sanitärbereiche, vier WCs, Abstellräume, und eine großzügige Garage
Obergeschoss: ca. 292 m² – zusätzliche Büroflächen, teils bisher wohnlich genutzt
Ausstattung & Besonderheiten:
- Großraumbüros und mehrere Einzelbüros
- Besprechungsräume und Teeküchen auf jeder Ebene
- Sanitärräume mit WC-Anlagen und Dusche
- Serverraum inkl. EDV-Vernetzung
- Große Fensterflächen mit elektrischen Raffstores
- Automatisches Einfahrtstor inkl. Fernbedienung
- 11 Parkplätze im Innenhof
- Gargenhütte im Innenhof
- Zusätzliche öffentliche Parkmöglichkeiten vor Ort
- Eigenständige Strom- und Wärmezähler für Büro- und Wohntrakt
Die Flächen sind sofort nutzbar oder teilbar, wodurch flexible Mieterstrukturen (z. B. Coworking, Einzelvermietung oder Eigennutzung) möglich sind.
DIE WOHNUNGEN - MODERN, HOCHWERTIG UND BEZUGSFERTIG
Im hinteren Gebäudeteil befinden sich zwei eigenständige Wohneinheiten, die 2020 vollständig neu errichtet bzw. hochwertig saniert wurden. Beide Wohnungen sind technisch auf aktuellem Standard und bieten modernen Wohnkomfort mit stilvollem Design.
Wohnung Erdgeschoss – ca. 99 m² + Gartenbereich:
- Großzügiger Wohn-/Essbereich mit neuer DAN-Küche inkl. Geräte (5 Jahre Garantie)
- 3 weitere Zimmer (ein Schlafzimmer und zwei Kinderzimmer)
- Hochwertige Fliesenböden, glatte Wände & Decken
- Fußbodenheizung in allen Räumen
- Internorm KF 410 Fenster mit elektrischen Raffstores
- Begehbare Dusche (120 cm) & WC
- 20 cm Wärmedämmverbundsystem
- Privater Parkplatz direkt vor der Wohnung
Wohnung Obergeschoss – ca. 84 m² + 5 m² Eingangsbereich:
- Gleiche hochwertige Ausstattung wie im EG
- Großzügiger Wohn-/Essbereich
- 3 weitere Zimmer (Schlafzimmer, Büro, Kinderzimmer)
- Modernes Bad mit Dusch-WC
- Eigener Parkplatz und separater Zugang
Beide Wohnungen präsentieren sich in neuwertigem Zustand und sind sofort vermietbar oder eigennutzbar.
Die Ausstattung erfüllt gehobene Ansprüche – perfekt für langfristige Mieter oder Eigennutzer mit Qualitätsbewusstsein.
SANIERUNGSARBEITEN - ALLES NEU, ALLES HOCHWERTIG
Die gesamte Liegenschaft wurde in den letzten Jahren komplett kernsaniert – vom Keller bis zum Dach.
Im Zuge der Sanierung wurden sämtliche Gewerke fachgerecht erneuert:
- Gebäudehülle: Wärmedämmverbundsystem, neue Fassade, neue Fenster & Türen
- Dach: befindet sich in einem Top Zustand (wurde neu versiegelt)
- Elektrik & Wasserleitungen: komplett neu
- Heizsystem: moderne Fußbodenheizung & energieeffiziente Haustechnik
- Innenausbau: neue Böden, Wände, Decken, Türen, Sanitärräume & Küchen
- EDV- & Netzwerkverkabelung: im gesamten Bürotrakt vorhanden
- Optische Gestaltung: modernes Farb- und Materialkonzept, hochwertige Oberflächen
Damit wurde eine Immobilie geschaffen, die zeitgemäßen Ansprüchen in Technik, Komfort und Energieeffizienz in jeder Hinsicht entspricht – ohne Sanierungsbedarf.
LAGE - 4050 TRAUN / St. MARTIN - ZENTRAL, SICHTBAR, BESTENS ANGEBUNDEN
Die Liegenschaft befindet sich in Traun / St. Martin, einer der begehrtesten Lagen des Großraums Linz-Wels.
Die Salzburger Straße ist nur wenige Meter entfernt – beste Sichtbarkeit, ideale Verkehrsanbindung und hohe Standortqualität sind garantiert.
Infrastruktur & Verkehr:
- Bushaltestelle direkt vor dem Gebäude (Linz Linie 43, WWT)
- Bahnhof Traun in wenigen Minuten erreichbar
- Autobahnanschluss A1 / A25 in kurzer Distanz
- Nahversorger, Gastronomie, Banken & Ärzte in unmittelbarer Umgebung
- Schulen & Kindergärten im direkten Umfeld
Diese Lage verbindet vorallem Erreichbarkeit, Urbanität und Effizienz – ein optimaler Standort für Gewerbe, Vermietung oder Eigennutzung.
Diese Liegenschaft vereint alles, was erfahrene Investor:innen oder anspruchsvolle Eigennutzer suchen: ein hochwertig kernsaniertes Gebäudeensemble mit durchdachtem Nutzungskonzept, bestehend aus modernen Büroflächen, zwei separaten Wohneinheiten und großzügigen Freiflächen. Die Verbindung aus Qualität, Flexibilität und Lage schafft ein Investment mit langfristiger Perspektive – solide in der Substanz, nachhaltig im Wert und vielseitig in der Nutzung. Ein Objekt, das in seiner Kombination aus Zustand, Standort und Ertragspotenzial nur selten am Markt zu finden ist.
Interesse? Dann schicken Sie uns bitte Ihren vollständigen Namen, Wohnadresse, Telefonnummer & Ihre E-Mailadresse und wir senden Ihnen ein aussagekräftiges Exposé mit allen relevanten Unterlagen. Bitte beachten Sie, dass wir aufgrund der Nachweispflicht gegenüber dem Eigentümer nur Anfragen mit allen Kontaktdaten bearbeiten können.
Gerne können wir im Anschluss eine unverbindliche und kostenlose Besichtigung vereinbaren. Danke!
Auch bei der Finanzierung Ihrer Traumimmobilie sind Sie bei uns in besten Händen. Als unabhängiger Immobilien- und Finanzberater in ganz Oberösterreich setzt sich das TOP-REAL Team gerne mit Ihnen zusammen.
Gemeinsam besprechen wir in aller Ruhe Ihre Finanzierungsfragen rund um das Thema Immobilienerwerb – persönlich, transparent und kompetent.
Dank unseres langjährig gepflegten Netzwerks mit starken Partnerbanken wie Sparkasse OÖ, Oberbank und Wüstenrot holen wir für Sie das bestmögliche Finanzierungsangebot ein – maßgeschneidert und unkompliziert.
Unser Tipp:
Sie sind auf der Suche nach einer passenden Immobilie?
Alle unsere Angebote finden Sie tagesaktuell im Internet unter www.toprealimmobilien.at
Teilen Sie uns Ihren Suchwunsch mit - dann werden Sie noch schneller & exklusiv über Ihre potentielle Wunschimmobilie informiert.
Überlegen Sie Ihre derzeitige Immobilie zu veräußern? Gerne können Sie Ihre Immobilie kostenlos über das TOP-REAL Team bewerten lassen.
Objektdaten
Ausstattung
- Teilmöbliert
- Teilunterkellert
- Zentralheizung
- Befeuerung mit Gas
- Teilmöbliert
- Zentralheizung mit Gas
- Teilmöbliert
Dokumente / Links
Zustand
- Zustand
- GEPFLEGT
Flächen
- Anzahl der Zimmer
- 24
- Anzahl der Badezimmer
- 5
- Anzahl der sep. WCs
- 9
- Stellplätze
- 13
- Wohnfläche
- 775m²
- Nutzfläche
- 975m²
- Grundstücksfläche
- 1.241m²
- Kellerfläche
- 107m²
Kosten
- Kaufpreis
- € 1.500.000,00
Verwaltung
- Verfügbar ab
- ab sofort
Andere Besucher suchen nach...
- Grundstücke kaufen in 3400 Weidlingbach
- Wohnungen kaufen in 4663 Laakirchen
- Häuser in 7471 Rechnitz
- Wohnungen in 2410 Hainburg an der Donau
- Häuser kaufen in 2432 Schwadorf
- Wohnungen kaufen in 3002 Purkersdorf
- Häuser in 3150 Wilhelmsburg
- Wohnungen kaufen in 3470 Engelmannsbrunn
- Grundstücke kaufen im Bezirk Mattersburg
- Grundstücke kaufen im Bezirk Gmunden