Stadthaus in Top-Lage
Beschreibung
Attraktive Anlageimmobilie in zentraler Ruhelage
Für Anleger und Investoren mit Weitblick bietet sich hier eine seltene Gelegenheit: In einer ruhigen Seitenstraße nahe dem Musiktheater und Volksgarten steht ein gepflegtes Stadthaus mit hohem Entwicklungspotenzial zum Verkauf.Die Liegenschaft vereint stabile Bestandsstruktur, flexible Nutzungsmöglichkeiten sowie eine bereits bewilligte Neubauoption.
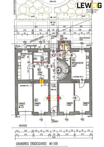
Die 5 eigenständigen sanierten Altbauwohnungen, ausgestattet mit Wohnküchen, eigenen Bädern mit WC sowie Parkettböden, sind wie folgt aufgeteilt: Top 01, EG: ca. 43 m2 Top 02, EG: ca. 52 m2 Top 03, 1.OG: ca. 84 m2 Top 04, 1.OG: ca. 39 m2 Top 05, 2.OG & DG: ca. 239 m2
Das Haus...
Attraktive Anlageimmobilie in zentraler Ruhelage
Für Anleger und Investoren mit Weitblick bietet sich hier eine seltene Gelegenheit: In einer ruhigen Seitenstraße nahe dem Musiktheater und Volksgarten steht ein gepflegtes Stadthaus mit hohem Entwicklungspotenzial zum Verkauf.Die Liegenschaft vereint stabile Bestandsstruktur, flexible Nutzungsmöglichkeiten sowie eine bereits bewilligte Neubauoption.
Die 5 eigenständigen sanierten Altbauwohnungen, ausgestattet mit Wohnküchen, eigenen Bädern mit WC sowie Parkettböden, sind wie folgt aufgeteilt:
Top 01, EG: ca. 43 m2
Top 02, EG: ca. 52 m2
Top 03, 1.OG: ca. 84 m2
Top 04, 1.OG: ca. 39 m2
Top 05, 2.OG & DG: ca. 239 m2
Das Haus verfügt zudem über ein Untergeschoss mit charaktervollem Ziegelgewölbe, welches Platz für Kellerabteile, Weinlagerung uvm. bietet. Die Garage mit elektr. Tor bietet Platz für ein Auto. Die Aufstockung und die damit verbundenen umfangreichen Sanierungen wurden alle in den späten 1990er- bzw. frühen 2000er Jahren durchgeführt.
Für Investoren ergeben sich vielfältige Optionen:
* kurzfristige Vermietung der 5 Bestandswohnungen
* Umbau auf 7 Wohnungen mit wenig Aufwand
* Realisierung eines Neubauprojektes (bewilligte Einreichung für 11 Einheiten + 6 TG-Plätze)
Eine seltene Gelegenheit für Anleger und Projektentwickler mit Weitblick in gefragter Linzer Innenstadtlage.
Wir weisen darauf hin, dass wir hier als gewerblicher Doppelmakler tätig sind und im Erfolgsfall die gesetzliche Provision verrechnen. Besichtigungen und Auskünfte sind kostenlos.
Lassen Sie sich diese Gelegenheit nicht entgehen und vereinbaren Sie noch heute einen Besichtigungstermin. Wir freuen uns auf Ihre Kontaktaufnahme unter 0732 945658 oder willkommen@lewog.at.
Wir weisen darauf hin, dass zwischen dem Vermittler und dem zu vermittelnden Dritten ein familiäres oder wirtschaftliches Naheverhältnis besteht.
Der Vermittler ist als Doppelmakler tätig.
Infrastruktur / Entfernungen
Gesundheit
Arzt <500m
Apotheke <500m
Klinik <1.000m
Krankenhaus <1.000m
Kinder & Schulen
Kindergarten <500m
Schule <500m
Universität <1.000m
Höhere Schule <1.000m
Nahversorgung
Supermarkt <500m
Bäckerei <500m
Einkaufszentrum <1.000m
Sonstige
Bank <500m
Geldautomat <500m
Post <500m
Polizei <500m
Verkehr
Bus <500m
Straßenbahn <500m
Bahnhof <1.000m
Autobahnanschluss <2.000m
Flughafen <3.000m
Angaben Entfernung Luftlinie / Quelle: OpenStreetMap
Objektdaten
Ausstattung
- Gartennutzung
- Einbauküche
- Offene Küche
- Fliesenboden
- Parkettboden
- Granitboden
- Zentralheizung
- Fernwärme Heizung
- Fern Befeuerung
- Mansarddach
- Satteldach
- Massiv Bauweise
Zustand
- Zustand
- GEPFLEGT
- Baujahr
- 1871
- Alter
- ALTBAU
- HWB
- 91 kWh/m² pro Jahr
- Klasse HWB
- C
- fGEE
- 1.52
- Klasse fGEE
- C
Flächen
- Wohnfläche
- 457m²
- Kellerfläche
- 115m²
Kosten
- Kaufpreis Brutto
- € 1.450.000,00
Häuser zum Kaufen in Österreich
Häuser zum Kaufen in Österreich
Andere Besucher suchen nach...
- Immobilien kaufen in 2601 Sollenau
- Immobilien in 4951 Polling im Innkreis, Oberösterreich
- Immobilien in 4742 Pram, Oberösterreich kaufen oder mieten
- Häuser kaufen in 2340 Mödling, Niederösterreich
- Häuser kaufen in 9421 Gemmersdorf, Kärnten
- Wohnungen / Eigentumswohnungen kaufen in 9431 St. Stefan, Kärnten
- Häuser kaufen in Bruck an der Leitha, Niederösterreich
- Immobilien mieten in Krems an der Donau, Niederösterreich
- Häuser zum Kaufen im Bezirk St. Pölten Land, Niederösterreich
- Büro / Praxen mieten in Rohrbach, Oberösterreich