Modernisiertes Zinshaus im Wohnungseigentum
Beschreibung
Sie sind auf der Suche nach einer lukrativen Investitionsmöglichkeit im Immobilienbereich, dieses Anlageobjekt ist eine ideale Basis für langfristige Einnahmen und einer soliden Rendite.
Zur Zeit sind von den ca. 900m² Wohnflächen ca. 638m² vermietet, eine weitere Wohnfläche von ca. 262m² stehen dem neuen Besitzer zur neuen Vermietung zur Verfügung. Wenn die derzeitige Eigentümerwohnungen und der Leerstand vermietet wird, erhöht das die jetzige berechnete IST Rendite um mindestens 1/3 und würde somit eine SOLL Rendite von über 4,5% (Vorsteuer) einbringen. Eine Wohnbauförderung in der Höhe von ca. € 50.000,- im Kaufpreis enthalten.
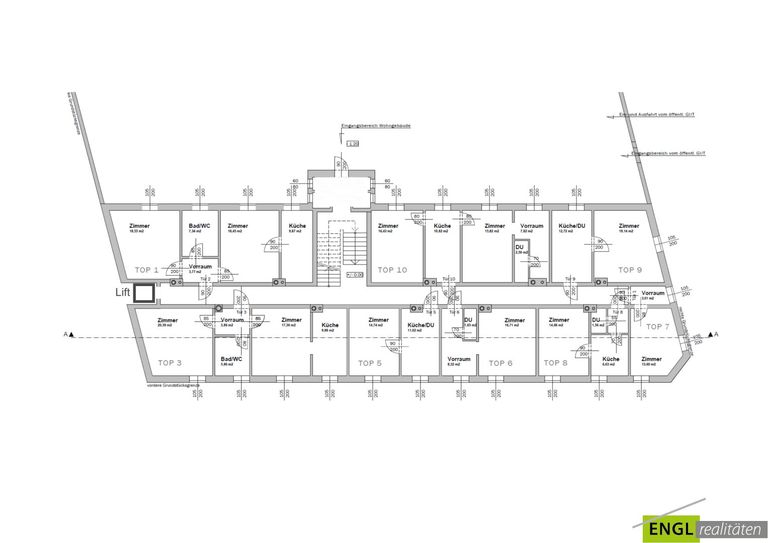
Das Dachgeschoss wurde 2010 neu aufgesetzt und modernisiert,...
Sie sind auf der Suche nach einer lukrativen Investitionsmöglichkeit im Immobilienbereich, dieses Anlageobjekt ist eine ideale Basis für langfristige Einnahmen und einer soliden Rendite.
Zur Zeit sind von den ca. 900m² Wohnflächen ca. 638m² vermietet, eine weitere Wohnfläche von ca. 262m² stehen dem neuen Besitzer zur neuen Vermietung zur Verfügung. Wenn die derzeitige Eigentümerwohnungen und der Leerstand vermietet wird, erhöht das die jetzige berechnete IST Rendite um mindestens 1/3 und würde somit eine SOLL Rendite von über 4,5% (Vorsteuer) einbringen. Eine Wohnbauförderung in der Höhe von ca. € 50.000,- im Kaufpreis enthalten.
Das Dachgeschoss wurde 2010 neu aufgesetzt und modernisiert, es verfügt über eine Vielzahl an Annehmlichkeiten, die sowohl Mieter als auch Eigentümer begeistern werden
Besonders hervorzuheben ist die neu installierte Photovoltaik Anlage (2x26 KWh) am Dach und der behindertengerechte Personenaufzug, der Ihnen oder Ihren zukünftigen Mietern ein barrierefreies Wohnen ermöglicht.
Nutzen Sie jetzt die Chance und investieren Sie in dieses attraktive Zinsobjekt, sollten sie weitere Unterlagen benötigen, freuen wir uns über ihre Kontaktaufnahme.
Bei Finanzierungsbedarf stehen ihnen unsere kompetenten Partner im Finanzbereich gerne für ein Finanzierungsgespräch zur Verfügung.
Noch nichts gefunden? Wir informieren Sie über geeignete Immobilienangebote noch vor allen anderen.
Legen Sie jetzt Ihren individuellen Suchagenten unter folgendem Link an. Wir schicken Ihnen passende Immobilien exklusiv vorab zu.
Suchagent anlegen - https://thomas-engl.service.immo/registrieren/de
Der Vermittler ist als Doppelmakler tätig.
Infrastruktur / Entfernungen
Gesundheit
Arzt <1.500m
Apotheke <500m
Klinik <500m
Krankenhaus <5.000m
Kinder & Schulen
Kindergarten <1.000m
Schule <500m
Höhere Schule <3.500m
Nahversorgung
Supermarkt <500m
Bäckerei <500m
Einkaufszentrum <3.000m
Sonstige
Bank <500m
Geldautomat <500m
Polizei <500m
Post <500m
Verkehr
Bus <500m
Bahnhof <500m
Autobahnanschluss <2.500m
U-Bahn <9.500m
Straßenbahn <500m
Flughafen <10.000m
Angaben Entfernung Luftlinie / Quelle: OpenStreetMap
Objektdaten
Ausstattung
- Gartennutzung
- Rollstuhlgerecht
- Kabel/SAT-TV
- Rolladen
- Einbauküche
- Fliesenboden
- Steinboden
- Parkettboden
- Laminatboden
- Etage Heizung
- Befeuerung mit Gas
- Personen Fahrstuhl
- Ausrichtung Balkon/Terrasse - Südost
- Satteldach
- Massiv Bauweise
Zustand
- Zustand
- MODERNISIERT
- Baujahr
- 1902
- Alter
- ALTBAU
- HWB
- 42 kWh/m² pro Jahr
- Klasse HWB
- B
- fGEE
- 1.48
- Klasse fGEE
- C
Flächen
- Anzahl der Terrassen
- 1
- Wohnfläche
- 900m²
- Grundstücksfläche
- 883m²
- Kellerfläche
- 37m²
- Terrassenfläche
- 1m²
Kosten
- Kaufpreis Brutto
- € 1.749.000,00
- Betriebskosten
- € 2.299,98
Verwaltung
- Verfügbar ab
- Nach Vereinbarung
Andere Besucher suchen nach...
- Grundstücke kaufen in 3400 Weidlingbach
- Wohnungen kaufen in 4663 Laakirchen
- Häuser in 7471 Rechnitz
- Wohnungen in 2410 Hainburg an der Donau
- Häuser kaufen in 2432 Schwadorf
- Wohnungen kaufen in 3002 Purkersdorf
- Häuser in 3150 Wilhelmsburg
- Wohnungen kaufen in 3470 Engelmannsbrunn
- Grundstücke kaufen im Bezirk Mattersburg
- Grundstücke kaufen im Bezirk Gmunden