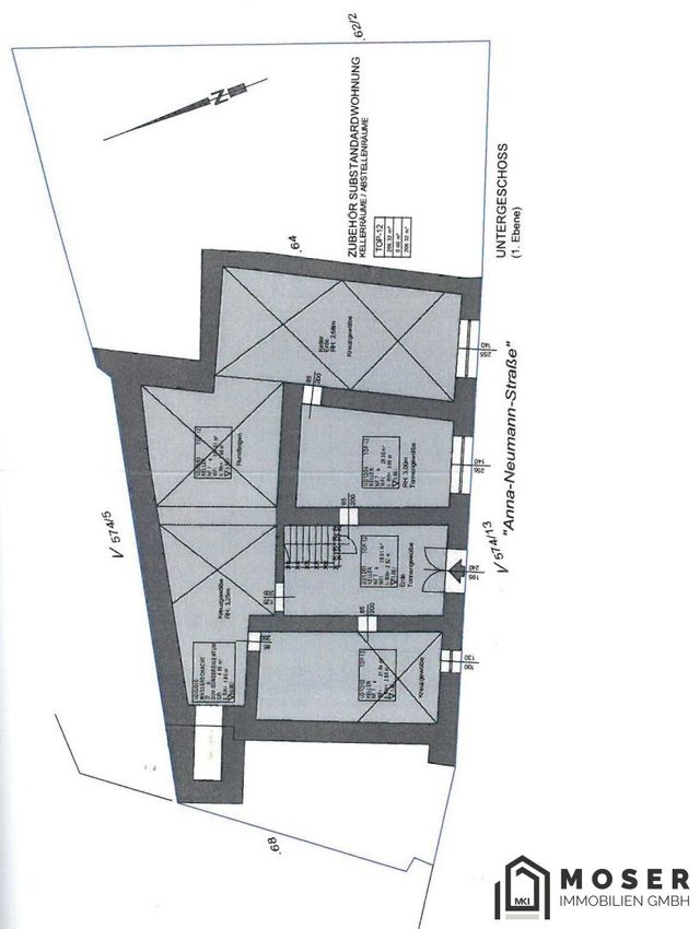
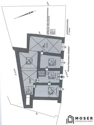
Murau - Top Ertrags-Zinshaus - 568 m² Wohnfläche mit 8 Einheiten Achtung: Die Eigentumswohnungen mit einer Größe von 26 bis 123 m² sind auch einzeln zu erwerben
Beschreibung
Dieses attraktive Renditeobjekt überzeugt durch seine durchdachte Struktur und hohe Vermietbarkeit. Die Liegenschaft umfasst insgesamt 8 Wohneinheiten in unterschiedlichen Größen von ca. 26 m² bis 123 m² und bietet damit ein ideales Investment für Anleger, die auf Risikostreuung und nachhaltige Erträge setzen.
Die breite Palette an Wohnungsgrößen spricht unterschiedliche Zielgruppen an – von Singles und Pendlern über Paare bis hin zu Familien. Dadurch wird eine konstant hohe Nachfrage sowie eine optimale Auslastung sichergestellt. Kleinere Einheiten eignen sich besonders für eine renditestarke Vermietung, während die größeren Wohnungen langfristige Mietverhältnisse begünstigen.
Das Objekt bietet hervorragendes Wertsteigerungs- und Ertragspotenzial und stellt eine solide...
Dieses attraktive Renditeobjekt überzeugt durch seine durchdachte Struktur und hohe Vermietbarkeit. Die Liegenschaft umfasst insgesamt 8 Wohneinheiten in unterschiedlichen Größen von ca. 26 m² bis 123 m² und bietet damit ein ideales Investment für Anleger, die auf Risikostreuung und nachhaltige Erträge setzen.
Die breite Palette an Wohnungsgrößen spricht unterschiedliche Zielgruppen an – von Singles und Pendlern über Paare bis hin zu Familien. Dadurch wird eine konstant hohe Nachfrage sowie eine optimale Auslastung sichergestellt. Kleinere Einheiten eignen sich besonders für eine renditestarke Vermietung, während die größeren Wohnungen langfristige Mietverhältnisse begünstigen.
Das Objekt bietet hervorragendes Wertsteigerungs- und Ertragspotenzial und stellt eine solide Grundlage für ein zukunftssicheres Immobilieninvestment dar. Durch die klare Struktur der Einheiten eignet sich die Liegenschaft sowohl für Bestandsinvestoren als auch für Neueinsteiger im Anlagebereich.
Ein Top-Renditeobjekt, das durch Vielfalt, Stabilität und nachhaltige Vermietbarkeit überzeugt.
Noch nichts gefunden? Wir informieren Sie über geeignete Immobilienangebote noch vor allen anderen.
Legen Sie jetzt Ihren individuellen Suchagenten unter folgendem Link an. Wir schicken Ihnen passende Immobilien exklusiv vorab zu.
Suchagent anlegen - https://moser-immo.service.immo/registrieren/de
Der Vermittler ist als Doppelmakler tätig.
Infrastruktur / Entfernungen
Gesundheit
Arzt <500m
Krankenhaus <2.000m
Apotheke <1.500m
Kinder & Schulen
Schule <500m
Kindergarten <1.000m
Nahversorgung
Supermarkt <500m
Bäckerei <6.500m
Einkaufszentrum <9.500m
Sonstige
Bank <500m
Geldautomat <500m
Polizei <500m
Post <1.000m
Verkehr
Bus <500m
Bahnhof <500m
Angaben Entfernung Luftlinie / Quelle: OpenStreetMap
Objektdaten
Zustand
- Zustand
- GEPFLEGT
- Alter
- ALTBAU
Flächen
- Wohnfläche
- 568m²
- Grundstücksfläche
- 580m²
- Gartenfläche
- 301m²
Kosten
- Kaufpreis Brutto
- € 715.000,00
Andere Besucher suchen nach...
- Grundstücke kaufen in 3400 Weidlingbach
- Wohnungen kaufen in 4663 Laakirchen
- Häuser in 7471 Rechnitz
- Wohnungen in 2410 Hainburg an der Donau
- Häuser kaufen in 2432 Schwadorf
- Wohnungen kaufen in 3002 Purkersdorf
- Häuser in 3150 Wilhelmsburg
- Wohnungen kaufen in 3470 Engelmannsbrunn
- Grundstücke kaufen im Bezirk Mattersburg
- Grundstücke kaufen im Bezirk Gmunden