Kernsaniertes, historisches Zinshaus mit 8 Einheiten, weiterem Entwicklungspotenzial & attraktiver Rendite!
-
sofort
Beschreibung
Villa Wertheim – historische Rarität trifft modernes Investment!
Mit der Villa Wertheim gelangt eine außergewöhnliche Liegenschaft mit Geschichte, Substanz und erheblichem Entwicklungspotenzial zum Verkauf. Die eindrucksvolle Immobilie befindet sich im Herzen von Kirchbach in der Steiermark und wurde mit großer Sorgfalt und fachlicher Expertise umfassend kernsaniert.
Dabei wurde nicht nur der historische Charakter bewahrt – es wurde gezielt in die aufwendige Restaurierung wertvoller Originalsubstanz investiert und gleichzeitig moderner Wohnkomfort auf höchstem Niveau geschaffen.
Eckdaten der Liegenschaft
- 8 hochwertig sanierte Wohneinheiten mit durchdachten Grundrissen
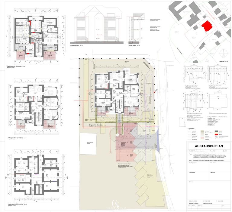
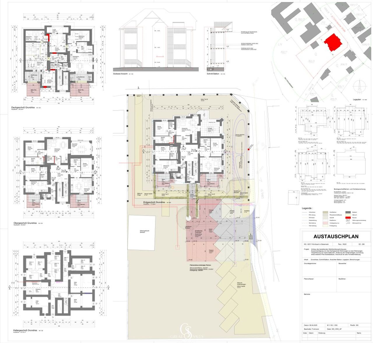
- Gesamtwohnfläche: ca. 483 m²
- Grundstücksfläche: 2.077 m² – exakt vermessen & im Grenzkataster eingetragen ...
Villa Wertheim – historische Rarität trifft modernes Investment!
Mit der Villa Wertheim gelangt eine außergewöhnliche Liegenschaft mit Geschichte, Substanz und erheblichem Entwicklungspotenzial zum Verkauf.
Die eindrucksvolle Immobilie befindet sich im Herzen von Kirchbach in der Steiermark und wurde mit großer Sorgfalt und fachlicher Expertise umfassend kernsaniert.
Dabei wurde nicht nur der historische Charakter bewahrt – es wurde gezielt in die aufwendige Restaurierung wertvoller Originalsubstanz investiert und gleichzeitig moderner Wohnkomfort auf höchstem Niveau geschaffen.
Eckdaten der Liegenschaft
- 8 hochwertig sanierte Wohneinheiten mit durchdachten Grundrissen
- Gesamtwohnfläche: ca. 483 m²
- Grundstücksfläche: 2.077 m² – exakt vermessen & im Grenzkataster eingetragen
- Kerngebiet-Widmung (0,3–0,8 Baudichte) – außergewöhnlich hohe bauliche Dichte
- Nutzungsmöglichkeiten: Wohnen, Kurzzeitvermietung, Gewerbe u. v. m.
Hochwertige Kernsanierung mit Substanzerhalt
Bei der Revitalisierung wurde besonderer Wert auf den Erhalt historisch wertvoller Bauteile gelegt:
- Historische Ost- und Südfenster aufwendig und kostenintensiv restauriert
- Neue Holzfenster an der Nord- und Westseite fachgerecht eingebaut
- Originale Innentüren liebevoll restauriert
- Restaurierte Parkett- und Terrazzoböden – hochwertig, selten und kostenintensiv
- Farbgebung in freiwilliger Abstimmung mit dem Denkmalschutz (historische „Nullfarbe“)
- Beheizung mittels moderner, effizienter Fernwärme
- Außenliegende Raffstores bei der Veranda Top 5
- Jeder Einheit ist ein Kellerabteil zugeordnet
- Großzügige Parkmöglichkeiten für Bewohner und Besucher
- Gepflegter, ruhiger Grünbereich zur privaten & gemeinschaftlichen Nutzung
Alle Sanierungs- und Umbaumaßnahmen sind vollständig abgeschlossen.
Vermietung & Ertrag
Von acht Einheiten sind aktuell fünf nachhaltig vermietet – starke Nachfrage bei kurzer Vermarktungsdauer - ein Investmentobjekt, dass jetzt schon beträchtliche Mieterlöse generiert!
Bei Vollvermietung ergeben sich:
- Monatliche Netto-Mieteinnahmen: ca. € 5.112,79
- Jährliche Netto-Mieteinnahmen: ca. € 61.353,48
- Netto-Rendite: ca. 4,5 %
Besonderheit: Top 8 mit Mietkauf-Option
Die Top 8 verfügt über eine wertgesicherte Mietkauf-Option mit einem sehr hohen Verkaufswert von rund
€ 351.565,-.
Der Verkauf dieser Einheit würde die Gesamtperformance und Rendite der Liegenschaft deutlich steigern.
Zusätzliches Entwicklungspotenzial – Bauplatz Westseite
Ein besonderes Highlight stellt die westliche Grundstücksfläche dar:
- Rund 800 m² Bauplatz
- Voll aufgeschlossen (kostenintensive Erschließung bereits erfolgt)
- Verkehrswert ca. € 50.000,- (€ 62,50/m²)
Dieses Potenzial eröffnet zusätzliche Möglichkeiten für Erweiterung, Neubau oder strategische Projektentwicklung – insbesondere im Kerngebiet mit hoher Baudichte.
Kaufpreis
Fixpreis für die gesamte Liegenschaft im aktuellen Zustand:
€ 1.363.000,- (Netto)
Fazit
Die Villa Wertheim vereint:
- historische Eleganz
- substanzschonende, hochwertige Kernsanierung
- flexible Nutzungsmöglichkeiten im Kerngebiet
- solide laufende Erträge
- erhebliches Wertsteigerungs- und Entwicklungspotenzial
Ein seltenes Investmentobjekt am steirischen Markt – wirtschaftlich attraktiv, architektonisch besonders und strategisch vielseitig nutzbar.
Jetzt investieren & profitieren – wir freuen uns auf Ihre Anfrage!
Der Vermittler ist als Doppelmakler tätig.
Infrastruktur / Entfernungen
Gesundheit
Arzt <1.500m
Apotheke <500m
Kinder & Schulen
Schule <500m
Kindergarten <1.000m
Nahversorgung
Supermarkt <1.000m
Bäckerei <5.000m
Sonstige
Bank <500m
Geldautomat <500m
Post <500m
Polizei <5.000m
Verkehr
Bus <500m
Angaben Entfernung Luftlinie / Quelle: OpenStreetMap
Objektdaten
Ausstattung
- Gartennutzung
- Kabel/SAT-TV
- Einbauküche
- Fliesenboden
- Parkettboden
- Zentralheizung
- Fern Befeuerung
- Bad mit Dusche
- Ausrichtung Balkon/Terrasse - Süd
- Ausrichtung Balkon/Terrasse - West
Zustand
- Zustand
- VOLL_SANIERT
- Baujahr
- 1900
- Alter
- ALTBAU
- HWB
- 86.4 kWh/m² pro Jahr
- Klasse HWB
- C
- fGEE
- 1.37
- Klasse fGEE
- C
Flächen
- Anzahl der Balkone
- 6
- Anzahl der Terrassen
- 3
- Wohnfläche
- 483m²
- Grundstücksfläche
- 2.077m²
- Terrassenfläche
- 3m²
Kosten
- Kaufpreis Brutto
- € 1.363.000,00
- Betriebskosten
- € 1.232,07
Verwaltung
- Verfügbar ab
- sofort
Andere Besucher suchen nach...
- Grundstücke kaufen in 3400 Weidlingbach
- Wohnungen kaufen in 4663 Laakirchen
- Häuser in 7471 Rechnitz
- Wohnungen in 2410 Hainburg an der Donau
- Häuser kaufen in 2432 Schwadorf
- Wohnungen kaufen in 3002 Purkersdorf
- Häuser in 3150 Wilhelmsburg
- Wohnungen kaufen in 3470 Engelmannsbrunn
- Grundstücke kaufen im Bezirk Mattersburg
- Grundstücke kaufen im Bezirk Gmunden