Gepflegtes Einfamilienhaus + gut geführte Frühstückspension bei Tulln!
€ 980.000
€ 6.533 / m²
3442 Langenschönbichl
-
nach Kaufvertrag
Beschreibung
Das Einfamilienhaus: Diese sehr gepflegte Liegenschaft befindet sich in Langenschönbichl, nur wenige Kilometer von der Bezirkshauptstadt Tulln entfernt. Das Wohnhaus mit einer Wohnnutzfläche von ca. 150 m² befindet sich unmittelbar neben der Frühstückspension, was ein „Wohnen und Arbeiten“ sehr einfach macht, ohne beschwerliche Anreisezeiten oder lästigen Berufsverkehr. Es wurde ca. 2017 fertiggestellt, das Grundstück grenzt südlich an weitläufige Felder, was herrlich viel Lichteinfall und Intimsphäre gewährleistet. Im Untergeschoß gelangt man über einen praktischen Windfang, wo sich auch der Abgang in den Keller befindet, in das geräumige Vorzimmer mit WC. Durch eine breite, doppelte Glasschiebetür kommt man in das helle und...
Das Einfamilienhaus:
Diese sehr gepflegte Liegenschaft befindet sich in Langenschönbichl, nur wenige Kilometer von der Bezirkshauptstadt Tulln entfernt.
Das Wohnhaus mit einer Wohnnutzfläche von ca. 150 m² befindet sich unmittelbar neben der Frühstückspension, was ein „Wohnen und Arbeiten“ sehr einfach macht, ohne beschwerliche Anreisezeiten oder lästigen Berufsverkehr.
Es wurde ca. 2017 fertiggestellt, das Grundstück grenzt südlich an weitläufige Felder, was herrlich viel Lichteinfall und Intimsphäre gewährleistet.
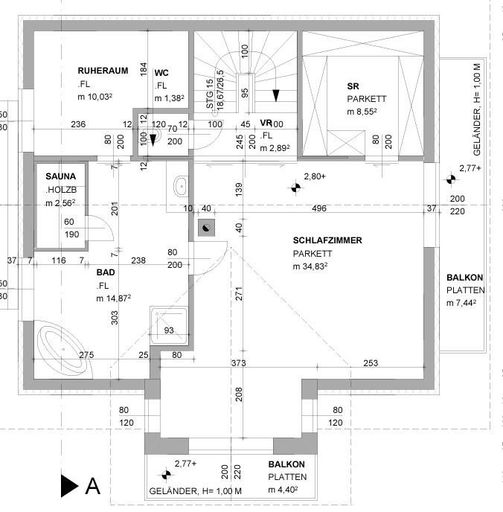
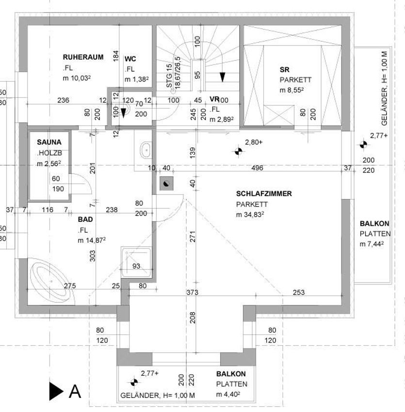
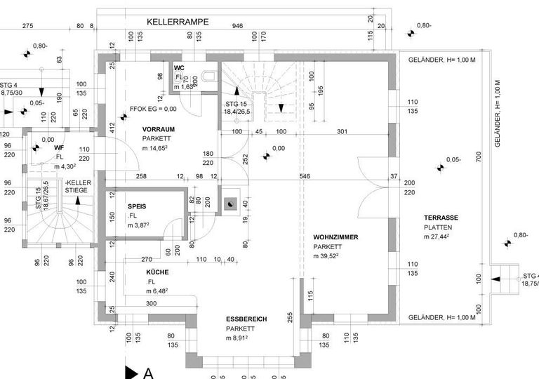
Im Untergeschoß gelangt man über einen praktischen Windfang, wo sich auch der Abgang in den Keller befindet, in das geräumige Vorzimmer mit WC. Durch eine breite, doppelte Glasschiebetür kommt man in das helle und große Wohn-Esszimmer mit offener Küche und angrenzender Speis. Vom Wohnzimmer aus ist der große Wintergarten begehbar. Von dort gelangt man über Stufen in den kleinen Garten. Küche, Eingangsbereich, WC und Speis sind verfliest, der restliche Wohnbereich ist mit Echtholzparkett ausgelegt.
Der mittig angebrachte Kachelofen hilft nicht nur, Heizkosten zu sparen, sondern sorgt in der Übergangszeit auch für angenehmes Wohlfühlklima.
Im Obergeschoß erwartet Sie ein geräumiges und lichtdurchflutetes Schlafzimmer mit je einem Balkon Richtung Osten und einem mit Fernblick Richtung Süden über die Felder. Ein begehbarer Schrankraum ist natürlich ebenso vorhanden wie ein weiteres WC. Das geräumige Bad verfügt über eine Eckbadewanne, eine Dusche und eine Sauna, welche sich gerade in der Fertigstellung befindet. Dahinter ist ein Ruheraum, welcher derzeit als Büro genützt wird. Auch ein Gäste- oder Kinderzimmer ist hier natürlich möglich.
Der Keller ist sowohl von außen als auch innen begehbar und ist in 5 Räume unterteilt, der größte davon ist als Gästezimmer eingerichtet und verfügt über ein eigenes Bad mit Dusche und WC. Im Keller befindet sich außerdem der Hauswirtschaftsraum mit Waschmaschinen und Trocknern, auch die Technik für die moderne Erdwärmepumpe, welche kostengünstiges Heizen und Warmwasser ermöglicht, ist hier untergebracht. Zahlreiche Einbaukästen und Regale sorgen dafür, dass Stauraum vermutlich nie ein Diskussionsthema werden wird.
Im Außenbereich ist außerdem ein Doppelcarport vorhanden, um Ihre fahrbaren Untersätze vor Wind und Wetter zu schützen.
Das Haus wird über eine Fußbodenheizung beheizt.
Die Frühstückspension verfügt über 23 Gästebetten (Einzelzimmer; Doppelzimmer; ein volleingerichtetes ca. 96 m² großes Dachgeschoßappartement) und ist vorallem mit Arbeitern und Besuchern der "Tullner Messe" bzw. mit zahlreichen Radfahrern gut belegt!
Der Donauradweg mit einer Länge von ca. 339 km von Passau nach Wien ist die meistbefahrene Radroute Europas (siehe Skizze). Jährlich sind hier etwa 350.000 Radler unterwegs. Der knapp 50 km lange Streckenabschnitt von Krems nach Tulln führt direkt durch Langenschönbichl und sorgt somit für eine gute Auslastung der Zimmer durch Radfahrer.
Beheizt wird das Haus mit einer modernen und energieeffizienten Erdwärmepumpe.
Öffentlich verkehrt die Buslinie 641/1054 und bringt sie in ca. 20 Minuten zum Bahnhof nach Tulln, von wo Sie wiederum in ca. 20 Minuten mit der Franz-Josef-Bahn in Wien sind (Wien Heiligenstadt mit U-Bahn Anbindung, div. Schnellbahnen). Ebenso ist der Bahnhof Tullnerfeld nur wenige Autominuten entfernt. Von dort gelangen Sie auf der Westbahnstrecke in nur ca. 15 Minuten sowohl nach Wien, als auch nach St. Pölten.
Sollten auch Sie an dieser spannenden Konstelation von "Arbeiten und Wohnen" interessiert sein, so freuen wir uns auf Ihren Anruf
und eine gemeinsame Besichtigung!
Der Gesamtkaufpreis für dieses Paket (Frühstückspension plus Einfamilienhaus) beträgt NUR € 980.000,-!*)
*) Bei diesem Preis handelt es sich um einen Richtpreis, der sich sowohl nach unten als auch nach oben verändern kann.
Vorbehaltlich Annahme durch den Abgeber!
Diese sehr gepflegte Liegenschaft befindet sich in Langenschönbichl, nur wenige Kilometer von der Bezirkshauptstadt Tulln entfernt.
Das Wohnhaus mit einer Wohnnutzfläche von ca. 150 m² befindet sich unmittelbar neben der Frühstückspension, was ein „Wohnen und Arbeiten“ sehr einfach macht, ohne beschwerliche Anreisezeiten oder lästigen Berufsverkehr.
Es wurde ca. 2017 fertiggestellt, das Grundstück grenzt südlich an weitläufige Felder, was herrlich viel Lichteinfall und Intimsphäre gewährleistet.
Im Untergeschoß gelangt man über einen praktischen Windfang, wo sich auch der Abgang in den Keller befindet, in das geräumige Vorzimmer mit WC. Durch eine breite, doppelte Glasschiebetür kommt man in das helle und große Wohn-Esszimmer mit offener Küche und angrenzender Speis. Vom Wohnzimmer aus ist der große Wintergarten begehbar. Von dort gelangt man über Stufen in den kleinen Garten. Küche, Eingangsbereich, WC und Speis sind verfliest, der restliche Wohnbereich ist mit Echtholzparkett ausgelegt.
Der mittig angebrachte Kachelofen hilft nicht nur, Heizkosten zu sparen, sondern sorgt in der Übergangszeit auch für angenehmes Wohlfühlklima.
Im Obergeschoß erwartet Sie ein geräumiges und lichtdurchflutetes Schlafzimmer mit je einem Balkon Richtung Osten und einem mit Fernblick Richtung Süden über die Felder. Ein begehbarer Schrankraum ist natürlich ebenso vorhanden wie ein weiteres WC. Das geräumige Bad verfügt über eine Eckbadewanne, eine Dusche und eine Sauna, welche sich gerade in der Fertigstellung befindet. Dahinter ist ein Ruheraum, welcher derzeit als Büro genützt wird. Auch ein Gäste- oder Kinderzimmer ist hier natürlich möglich.
Der Keller ist sowohl von außen als auch innen begehbar und ist in 5 Räume unterteilt, der größte davon ist als Gästezimmer eingerichtet und verfügt über ein eigenes Bad mit Dusche und WC. Im Keller befindet sich außerdem der Hauswirtschaftsraum mit Waschmaschinen und Trocknern, auch die Technik für die moderne Erdwärmepumpe, welche kostengünstiges Heizen und Warmwasser ermöglicht, ist hier untergebracht. Zahlreiche Einbaukästen und Regale sorgen dafür, dass Stauraum vermutlich nie ein Diskussionsthema werden wird.
Im Außenbereich ist außerdem ein Doppelcarport vorhanden, um Ihre fahrbaren Untersätze vor Wind und Wetter zu schützen.
Das Haus wird über eine Fußbodenheizung beheizt.
Die Frühstückspension verfügt über 23 Gästebetten (Einzelzimmer; Doppelzimmer; ein volleingerichtetes ca. 96 m² großes Dachgeschoßappartement) und ist vorallem mit Arbeitern und Besuchern der "Tullner Messe" bzw. mit zahlreichen Radfahrern gut belegt!
Der Donauradweg mit einer Länge von ca. 339 km von Passau nach Wien ist die meistbefahrene Radroute Europas (siehe Skizze). Jährlich sind hier etwa 350.000 Radler unterwegs. Der knapp 50 km lange Streckenabschnitt von Krems nach Tulln führt direkt durch Langenschönbichl und sorgt somit für eine gute Auslastung der Zimmer durch Radfahrer.
Beheizt wird das Haus mit einer modernen und energieeffizienten Erdwärmepumpe.
Öffentlich verkehrt die Buslinie 641/1054 und bringt sie in ca. 20 Minuten zum Bahnhof nach Tulln, von wo Sie wiederum in ca. 20 Minuten mit der Franz-Josef-Bahn in Wien sind (Wien Heiligenstadt mit U-Bahn Anbindung, div. Schnellbahnen). Ebenso ist der Bahnhof Tullnerfeld nur wenige Autominuten entfernt. Von dort gelangen Sie auf der Westbahnstrecke in nur ca. 15 Minuten sowohl nach Wien, als auch nach St. Pölten.
Sollten auch Sie an dieser spannenden Konstelation von "Arbeiten und Wohnen" interessiert sein, so freuen wir uns auf Ihren Anruf
und eine gemeinsame Besichtigung!
Der Gesamtkaufpreis für dieses Paket (Frühstückspension plus Einfamilienhaus) beträgt NUR € 980.000,-!*)
*) Bei diesem Preis handelt es sich um einen Richtpreis, der sich sowohl nach unten als auch nach oben verändern kann.
Vorbehaltlich Annahme durch den Abgeber!
| Angaben gemäß gesetzlichem Erfordernis: | |||
| Heizwärmebedarf: | 100.0 kWh/(m²a) | ||
| Klasse Heizwärmebedarf: | C | ||
Objektdaten
Ausstattung
- Teilmöbliert
- Kabel/SAT-TV
- Unterkellert
- Zentralheizung
- Erdwärme
- Kabel/SAT-TV
- Teilmöbliert
- Zentralheizung mit Wärmepumpe
Zustand
- Baujahr
- ca. 2017
Flächen
- Anzahl der Zimmer
- 4
- Anzahl der Badezimmer
- 2
- Anzahl der sep. WCs
- 3
- Anzahl der Balkone
- 1
- Anzahl der Terrassen
- 1
- Stellplätze
- 2
- Wohnfläche
- 150m²
- Grundstücksfläche
- 864m²
- Terrassenfläche
- 1m²
Kosten
- Kaufpreis
- € 980.000,00
Verwaltung
- Verfügbar ab
- nach Kaufvertrag
Andere Besucher suchen nach...
- Grundstücke kaufen in 3400 Weidlingbach
- Wohnungen kaufen in 4663 Laakirchen
- Häuser in 7471 Rechnitz
- Wohnungen in 2410 Hainburg an der Donau
- Häuser kaufen in 2432 Schwadorf
- Wohnungen kaufen in 3002 Purkersdorf
- Häuser in 3150 Wilhelmsburg
- Wohnungen kaufen in 3470 Engelmannsbrunn
- Grundstücke kaufen im Bezirk Mattersburg
- Grundstücke kaufen im Bezirk Gmunden