Top Saniertes & neu möbliertes Apartmenthaus mit Garten nähe U4
Beschreibung
Voll möbliertes Apartmenthaus (Tischlermöbel) im Alleineigentum in der Linzerstraße mit Garten!
Zum Verkauf steht ein ca.1930 errichtetes Wohnhaus mit Keller und Garten nahe dem Ferdinand-Wolf-Park/ Europahaus Wien. Im Haus befinden sich 6 Wohneinheiten, wobei zwei Wohnungen der Kategorie A und C unbefristet vermietet sind.
Eine ca 55m² Wohnung im Untergeschoss mit Zugang zum Garten, eine ca 26m² Einzimmerwohnung und zwei ca. 45m² Wohnungen im ersten Stock wurden gerade saniert und möbliert, diese werden als Kurzzeitapartments via Booking.com und airbnb angeboten, sie wurden auch bei der Baubehörde als zur Apartmentwidmung eingereicht.
Gute Verkehrsanbindung: Autobus (49A, 50 A, 450, 451),...
Voll möbliertes Apartmenthaus (Tischlermöbel) im Alleineigentum in der Linzerstraße mit Garten!
Zum Verkauf steht ein ca.1930 errichtetes Wohnhaus mit Keller und Garten nahe dem Ferdinand-Wolf-Park/ Europahaus Wien.
Im Haus befinden sich 6 Wohneinheiten, wobei zwei Wohnungen der Kategorie A und C unbefristet vermietet sind.
Eine ca 55m² Wohnung im Untergeschoss mit Zugang zum Garten, eine ca 26m² Einzimmerwohnung und zwei ca. 45m² Wohnungen im ersten Stock wurden gerade saniert und möbliert, diese werden als Kurzzeitapartments via Booking.com und airbnb angeboten, sie wurden auch bei der Baubehörde als zur Apartmentwidmung eingereicht.
Gute Verkehrsanbindung: Autobus (49A, 50 A, 450, 451), 7 Autofahrminuten zum Auhof Center bzw. Westeinfahrt.
Naherholungsgebiet: Wienerwald, Ferdinand-Wolf-Park, direkte Anbindung an den Wienfluss Weg für Fahrradfahrer.
Eckdaten:
Baugenehmigung/Baujahr: Genehmigt laut Bescheid ca. 1930.
Grundstücksgröße: ca. 737 m² - laut Grundbuch - davon 133 m2 verbaut!
Flächenwidmung: Laut Flächenwidmungsplan auf wien.at: Bauklasse WII - 10,5 m
Bauhöhe, ogk (offen, da Nachbargrundstück auch offen bebaut ist);
Keine Schutzzone
Wohnfläche aktuell ca. 297 m2
Nutzfläche: ca. 330 m²
Im Falle eines Abbruchs des bestehenden Gebäudes wäre eine Neubaunutzfläche von ca. 942 m² möglich, die gewichtete Fläche beträgt 992,39 m².
Es wäre ebenso möglich auf den Bestand in die Höhe und in die Breite zu bauen, dadurch könnte eine Gesamtfläche von 722 m² entstehen!
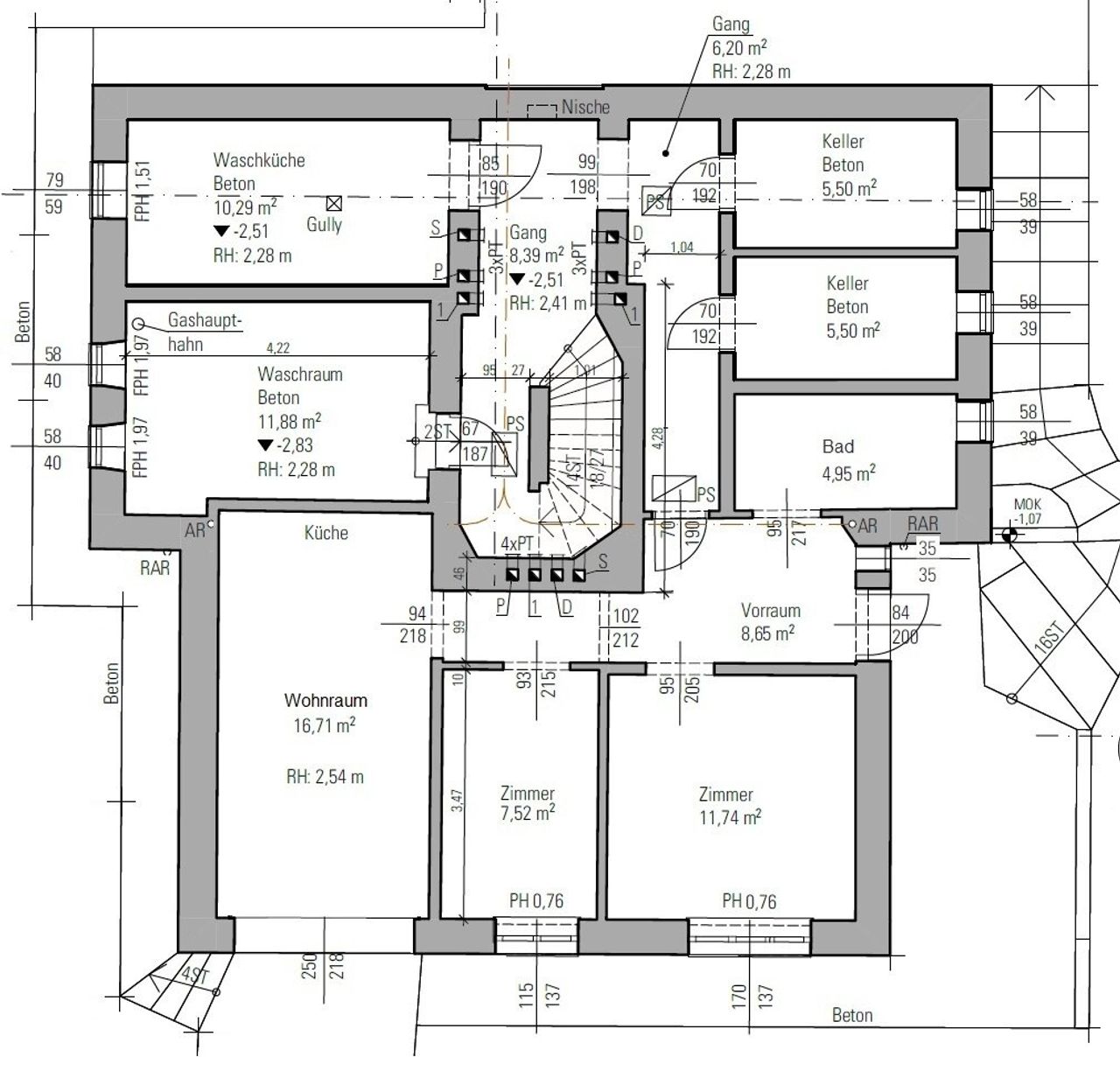
UG Top 1: Gartenseitige Wohnung mit Terrasse zum Garten ca. 55 m2 Apartment 1
Apartmentvermietung
Raumaufteilung: Vorzimmer, Wohnzimmer mit Küche, Schlafzimmer, Kinderzimmer, Bad mit Dusche und WC.
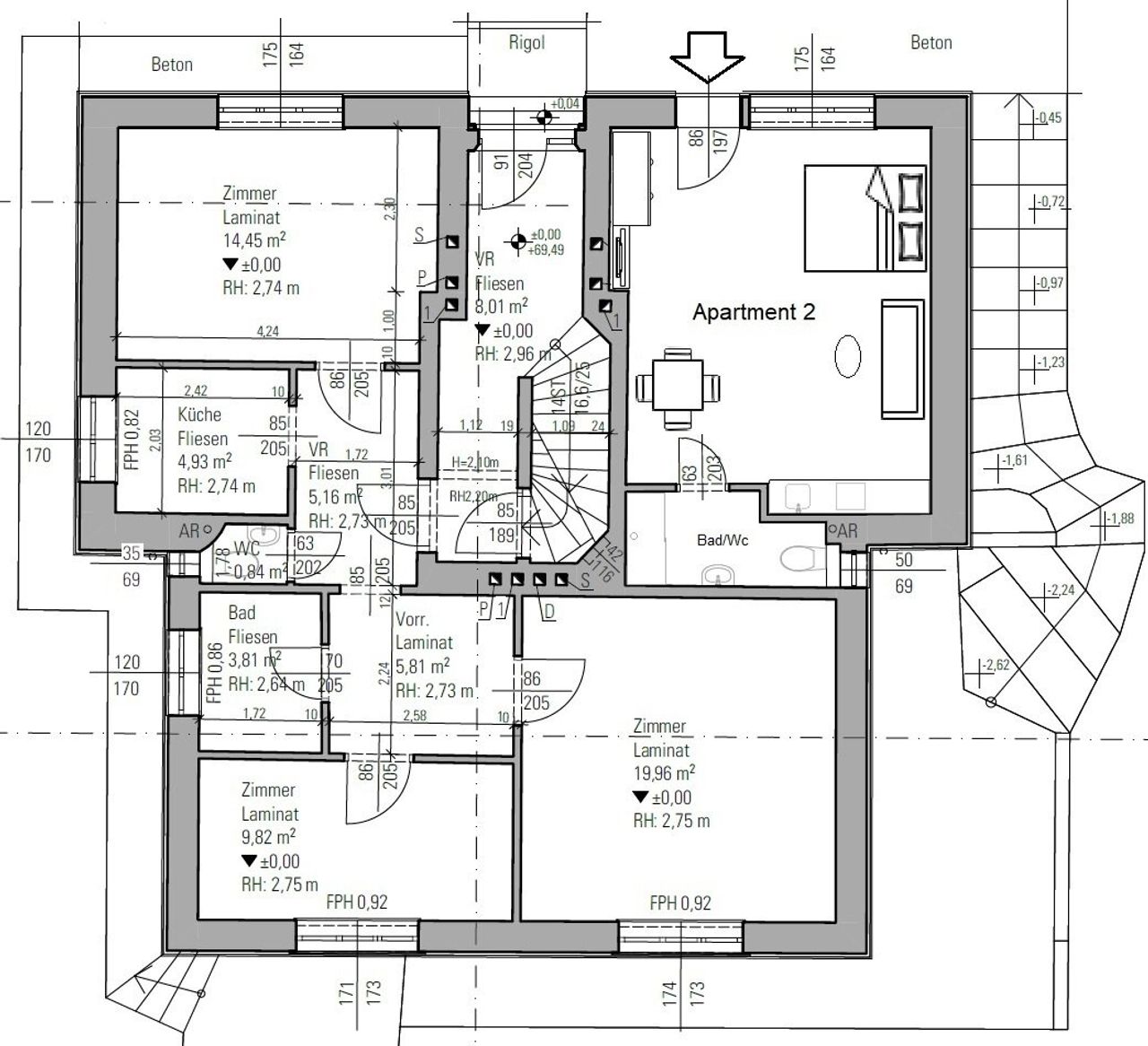
EG - Top 1a: Erdgeschosswohnung ca. 26 m², Apartment 2
Apartmentvermietung
Raumaufteilung: Wohn- Schlafraum mit Küchenzeile, Bad mit Dusche und WC.
EG - Top 2: Wohnung 65 m²,
unbefristet vermietet
Raumaufteilung: 3 Zimmer, Küche, separates WC, Badezimmer, Kellerabteil; Gasetagenheizung.
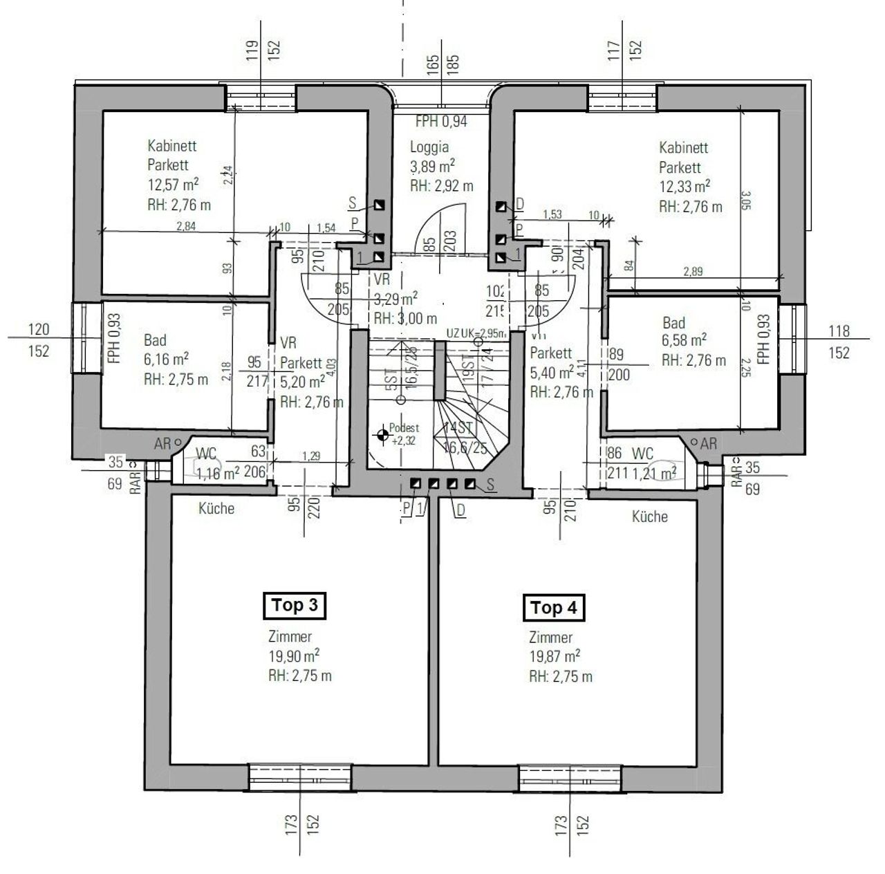
1.Stock - Top 3: Wohnung 45 m², Apartment 4
Apartmentvermietung
Raumaufteilung: Schlafzimmer, Wohnraum mit Küche, Bad mit Dusche und WC, Vorraum.
1.Stock - Top 4: Wohnung 45 m², Apartment 5
bestandsfrei - leer
Raumaufteilung: Schlafzimmer, Wohnraum mit Küche, Bad mit Dusche und WC, Vorraum.
DG - Top 5: Wohnung 64 m², Kat C
Unbefristet vermietet
Raumaufteilung: Vorzimmer, 3 Zimmer, Küche, Badezimmer, WC, Kellerabteil; - Heizung Gasetagenheizung.
Sonstige Flächen: 2 Kellerabteile für die Mieter, 2 Kellerräume, verfliest für Waschmaschinen & Trockner und Garten.
Der Kaufpreis beträgt 1.295.000,- Euro inklusive der unbefristeten Mietverträge und der Möblierung der Apartments durch einen Tischler.
Info zum Kaufpreis: Der Kaufpreis beinhaltet auch die Möglichkeit des Zubaus und des Ausbaus, bzw eines eventuellen Neubaus und der dadurch entstehenden Flächengewinnung.
Es besteht auch die Möglichkeit die Flächen des Hauses ohne Abbruch zu erweitern, durch Zubauten nach hinten und zur Seite, dadurch kann eine Gesamtfläche von 722 m² entstehen!
Es gibt auch schon einen Kostenvoranschlag für die geplante Photovoltaik Anlage am Dach.
Die Maklerprovision für die Vermittlung der angebotenen Liegenschaft beträgt 3 % des Verkaufspreises + 20% USt.
Kaufnebenkosten:
3,5 % Grunderwerbsteuer
1,1 % Grundbuchseintrag
1,2 % Kaufvertragserrichtung inkl. Ust
3,6 % Provision inkl. 20 % Ust
Für Informationen und Besichtigungstermine stehe ich Ihnen jederzeit gerne zur Verfügung!
Termine sind auch am Wochenende möglich unter 0664 - 38 17 061, Anton Robert De Icco
Wir weisen darauf hin, dass zwischen dem Vermittler und dem zu vermittelnden Dritten ein familiäres oder wirtschaftliches Naheverhältnis besteht.
Der Vermittler ist als Doppelmakler tätig.
Infrastruktur / Entfernungen
Gesundheit
Arzt <1.000m
Apotheke <250m
Klinik <3.250m
Krankenhaus <1.750m
Kinder & Schulen
Schule <500m
Kindergarten <1.000m
Universität <1.750m
Höhere Schule <5.500m
Nahversorgung
Supermarkt <250m
Bäckerei <1.250m
Einkaufszentrum <2.250m
Sonstige
Geldautomat <750m
Bank <750m
Post <2.250m
Polizei <1.250m
Verkehr
Bus <250m
Straßenbahn <750m
U-Bahn <1.250m
Bahnhof <750m
Autobahnanschluss <2.000m
Angaben Entfernung Luftlinie / Quelle: OpenStreetMap
Objektdaten
Ausstattung
- Gartennutzung
- Wasch-/Trockenraum
- Bad mit Dusche
- Bad mit Fenster
- Offene Küche
- Fliesenboden
- Parkettboden
- Ausrichtung Balkon/Terrasse - Süd
- Satteldach
Zustand
- Baujahr
- 1930
- Alter
- ALTBAU
- HWB
- 219 kWh/m² pro Jahr
- Klasse HWB
- F
Flächen
- Anzahl der Zimmer
- 14
- Anzahl der Badezimmer
- 6
- Anzahl der sep. WCs
- 6
- Anzahl der Terrassen
- 1
- Wohnfläche
- 297m²
- Nutzfläche
- 330m²
- Gesamtfläche
- 330m²
- Grundstücksfläche
- 737m²
- Terrassenfläche
- 1m²
Kosten
- Kaufpreis Brutto
- € 1.295.000,00
Verwaltung
- Ferienimmobilie
- Ja
Zinshäuser und Renditeobjekte zum Kaufen in Österreich
Andere Besucher suchen nach...
- Immobilien kaufen in 2601 Sollenau
- Immobilien in 4951 Polling im Innkreis, Oberösterreich
- Immobilien in 4742 Pram, Oberösterreich kaufen oder mieten
- Häuser kaufen in 2340 Mödling, Niederösterreich
- Häuser kaufen in 9421 Gemmersdorf, Kärnten
- Wohnungen / Eigentumswohnungen kaufen in 9431 St. Stefan, Kärnten
- Häuser kaufen in Bruck an der Leitha, Niederösterreich
- Immobilien mieten in Krems an der Donau, Niederösterreich
- Häuser zum Kaufen im Bezirk St. Pölten Land, Niederösterreich
- Büro / Praxen mieten in Rohrbach, Oberösterreich