Potential - Altbaucharmante Familienvilla mit 9 Zimmern auf 3 Ebenen in Grinzinger Best Lage
-
ab sofort
Beschreibung
Altbaucharmante Familienvilla mit 9 Zimmern auf 3 Ebenen in Grinzing. Vielfältiges Potenzial, inklusive Möglichkeit zum Einbau eines Pools und zur Installation eines Aufzuges, Historischer Charme von 1937 trifft modernen Wohnkomfort: Parkettböden, großzügige Räume und hohe Decken bieten viel Gestaltungsspielraum. Ruhige Lage in Grinzing mit Gartengrünflächen rundum, dennoch gute Anbindung an öffentliche Verkehrsmittel, Shops und Schulen, – ideale Grundlage für individuelle Gestaltung nach eigenen Wünschen.
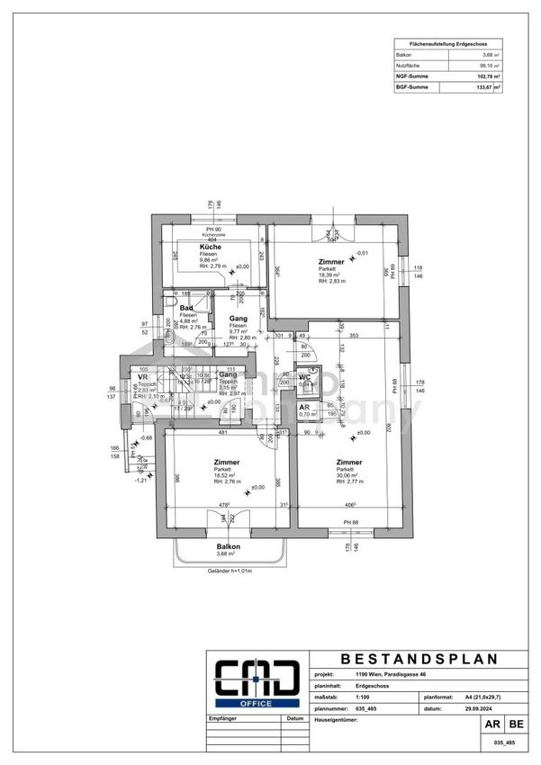
Im Erdgeschoss (ca. 99 m²) befindet sich
- Zimmer mit kleinem Balkon - südseitig
- Salon mit Abstellraum und Ausgang auf die Terrasse und dem Garten
- großzügige, moderne Einbauküche mit großem Fenster in den Garten
- Gästetoilette ...
Altbaucharmante Familienvilla mit 9 Zimmern auf 3 Ebenen in Grinzing. Vielfältiges Potenzial, inklusive Möglichkeit zum Einbau eines Pools und zur Installation eines Aufzuges, Historischer Charme von 1937 trifft modernen Wohnkomfort: Parkettböden, großzügige Räume und hohe Decken bieten viel Gestaltungsspielraum. Ruhige Lage in Grinzing mit Gartengrünflächen rundum, dennoch gute Anbindung an öffentliche Verkehrsmittel, Shops und Schulen, – ideale Grundlage für individuelle Gestaltung nach eigenen Wünschen.
Im Erdgeschoss (ca. 99 m²) befindet sich
- Zimmer mit kleinem Balkon - südseitig
- Salon mit Abstellraum und Ausgang auf die Terrasse und dem Garten
- großzügige, moderne Einbauküche mit großem Fenster in den Garten
- Gästetoilette
- Badezimmer mit Toilette
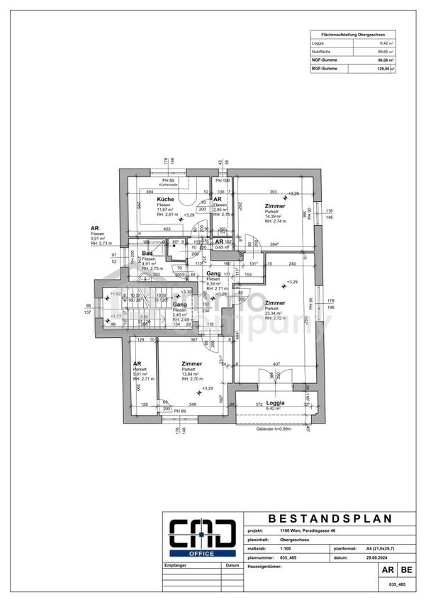
1. Obergeschoss (ca. 89 m²)
- Zimmer 1 mit begehbarer Garderobe - südseitig
- Zimmer 2 mit Loggia - südseitig
- Zimmer 3 - ostseitig
- moderne Küche mit separater Speis
- Abstellraum
- Badezimmer
- separate Toilette
Mansarde - 2. Obergeschoss (ca. 83 m²)
- Zimmer 1 mit Ausgang auf eine kleine Terrasse - südseitig
- angrenzend Zimmer 2
- Zimmer 3 mit begehbarer Garderobe und Ausgang auf die kleine nordseitige Terrasse
- Wirtschaftsraum
- Badezimmer
- separate Toilette
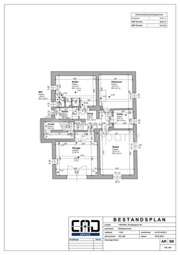
Kellergeschoss / Souterrain (ca. 96m²)
- originelles Kellerstübchen
- ehemaliger Wellnessbereich mit Toilette und Dusche
- Eingang in die Garage
- Heizraum
- diverse Abstellräume
- AUSSTATTUNG:
- Böden: schöner Fischgrätparkett in den Wohnräumen, moderne Fliesen Küche (Erdgeschoss & 1 OG): moderne Einbauküche mit Markengeräten Badezimmer & WC´s: im Retro Style - aber durchaus ansprechend Heizung: Gasetagenheizung / separate Zähler in jedem Stockwerk
- Das Haus liegt inmitten eines schönen sehr leicht zu pflegenden Gartens, in dem es sich gut leben lässt - ein kleines Gartenhäuschen am Grundstücksende bietet ausreichend platz für Rasenmäher uä.
Verkehrsanbindung / Infrastruktur:
Die öffentliche Verkehrsanbindung ist durch die Straßenbahnlinie 38, die Buslinien 35A & 10A und die S-Bahn 45 gegeben, die in fußläufiger Distanz rasch zu erreichen sind. Schnell befindet man sich auf dem "Sieveringer Platzl" und der Obkirchergasse, wo sich alle Geschäfte, die Sie für den täglichen Bedarf benötigen (BILLA, SPAR Gourmet, Bäckerei, Banken) befinden. Schulen, Kindergärten und auch die ärztliche Versorgung sind von hier aus bestens erreichbar. Es ist uns ein Anliegen, Sie mit sämtlichen Informationen zu versorgen, die für Sie sinnvoll und nützlich sein könnten. Jeder hat aber andere Prioritäten. Sollten Sie zu einem bestimmten Thema mehr Informationen wünschen, übermitteln wir diese gerne oder recherchieren für Sie!
Wir weisen darauf hin, dass wir in diesem Fall als Doppelmakler tätig sind
Ich würde mich sehr freuen, wenn ich Ihnen diese Traumhafte Immobilie präsentieren darf.
Stefan Dorak 0699184 100 52 Immo Company
Der Vermittler ist als Doppelmakler tätig.
Nutzen Sie die einmalige Gelegenheit, diese Immobilie zu besichtigen – sehen und erleben ist sehr viel eindrucksvoller!
Eine Besichtigung ist kostenfrei und unverbindlich, und gibt Ihnen einen unverfälschten Eindruck von der Immobilie.
Gerne unterstütze ich Sie auch bei der Finanzierung sowie beim Verkauf/Vermietung Ihrer Immobilie.
Infrastruktur / Entfernungen
Gesundheit
Arzt <500m
Apotheke <500m
Klinik <1.000m
Krankenhaus <1.000m
Kinder & Schulen
Schule <1.000m
Kindergarten <500m
Universität <1.000m
Höhere Schule <1.000m
Nahversorgung
Supermarkt <500m
Bäckerei <500m
Einkaufszentrum <2.000m
Sonstige
Geldautomat <500m
Bank <500m
Post <1.000m
Polizei <500m
Verkehr
Bus <500m
U-Bahn <1.500m
Straßenbahn <500m
Bahnhof <1.000m
Autobahnanschluss <2.000m
Angaben Entfernung Luftlinie / Quelle: OpenStreetMap
Objektdaten
Ausstattung
- WG geeignet
- Räume veränderbar
- Gartennutzung
- Kabel/SAT-TV
- Gäste-WC
- Bad mit Fenster
- Einbauküche
- Fliesenboden
- Parkettboden
- Etage Heizung
- Fern Befeuerung
- Ausrichtung Balkon/Terrasse - Südwest
- Pyramidendach
- Schlüsselfertig mit Keller
Dokumente / Links
Zustand
- Zustand
- GEPFLEGT
- Baujahr
- 1937
- Alter
- ALTBAU
- HWB
- 187.7 kWh/m² pro Jahr
- Klasse HWB
- F
- fGEE
- 2.98
- Klasse fGEE
- E
Flächen
- Anzahl der Zimmer
- 9
- Anzahl der Badezimmer
- 3
- Anzahl der sep. WCs
- 5
- Anzahl der Balkone
- 1
- Anzahl der Terrassen
- 2
- Stellplätze
- 1
- Wohnfläche
- 275m²
- Nutzfläche
- 362m²
- Grundstücksfläche
- 645m²
- Gartenfläche
- 519m²
- Kellerfläche
- 96m²
- Terrassenfläche
- 2m²
Kosten
- Kaufpreis Brutto
- € 2.990.000,00
Verwaltung
- Verfügbar ab
- ab sofort
Andere Besucher suchen nach...
- Grundstücke kaufen in 3400 Weidlingbach
- Wohnungen kaufen in 4663 Laakirchen
- Häuser in 7471 Rechnitz
- Wohnungen in 2410 Hainburg an der Donau
- Häuser kaufen in 2432 Schwadorf
- Wohnungen kaufen in 3002 Purkersdorf
- Häuser in 3150 Wilhelmsburg
- Wohnungen kaufen in 3470 Engelmannsbrunn
- Grundstücke kaufen im Bezirk Mattersburg
- Grundstücke kaufen im Bezirk Gmunden