Bestandsfreies Zinshaus in Wiener Neustadt – Sanierungsobjekt mit Renditepotenzial und Bebauungsstudie
-
sofort
Beschreibung
Bestandsfreies Wohn- und Geschäftsgebäude mit Bebauungsstudie im Zentrum Wr. Neustadts!
Das Objekt ist als sanierungsbedürftig zu bezeichnen, hält jedoch ein beachtliches Entwicklungspotential.
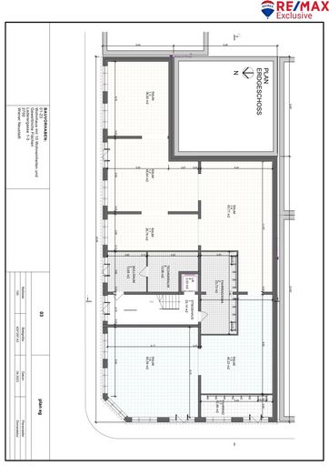
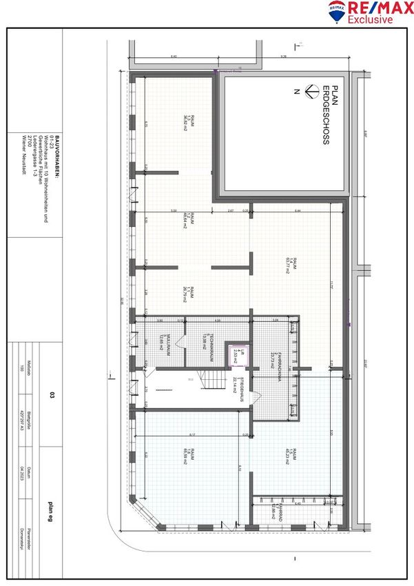
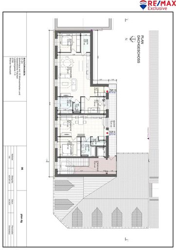
Lesen Sie hierzu die beigefügte Studie.
Das Haus befindet sich in der Schutzzone 3:
Schutzzone Kategorie 3, Sonderbebauungshöhe "h3", "Ensembleschutzwürdige Gebäude", Bebauungsweise "g" , Bebauungsdichte nicht fest gelegt
Erläuterung Sonderbebauungshöhe:
Die Fassaden- und Gesimshöhe wird durch die höchste Fassaden- und Gesimshöhe seitlich angrenzender Objekte der Schutzzone mit Kategorie 1-3 (Stichtag 01.01.2009) begrenzt. In dem Fall, dass an einer seitlichen Grundgrenze die Schutzzone 1-3 und an der anderen Seite die Schutzzone 4 angrenzt, kann, zur...
Bestandsfreies Wohn- und Geschäftsgebäude mit Bebauungsstudie im Zentrum Wr. Neustadts!
Das Objekt ist als sanierungsbedürftig zu bezeichnen, hält jedoch ein beachtliches Entwicklungspotential.
Lesen Sie hierzu die beigefügte Studie.
Das Haus befindet sich in der Schutzzone 3:
Schutzzone Kategorie 3, Sonderbebauungshöhe "h3", "Ensembleschutzwürdige Gebäude", Bebauungsweise "g" , Bebauungsdichte nicht fest gelegt
Erläuterung Sonderbebauungshöhe:
Die Fassaden- und Gesimshöhe wird durch die höchste Fassaden- und Gesimshöhe seitlich angrenzender Objekte der Schutzzone mit Kategorie 1-3 (Stichtag 01.01.2009) begrenzt. In dem Fall, dass an einer seitlichen Grundgrenze die Schutzzone 1-3 und an der anderen Seite die Schutzzone 4 angrenzt, kann, zur Vermeidung großflächiger Feuermauern, auf einer Länge von max, 2/3 der gesamten Gebäudefront die Gebäudehöhe entsprechend der angrenzenden Höhe in der Schutzzone 4 angehoben werden. Bei Eckparzellen hat die Höhenabstufung in Abhängigkeit mit der Straßenbreite vor den Eckbereichen zu erfolgen. Grenzen nur Objekte der Schutzzonenkategorie 4 an, haben sich vertikale Zubauten diesen Gebäudehöhen unterzuordnen. Hofseitige, vom öffentlichen Raum nicht einsehbare Zubauten sind möglich, sofern keine Störung der Schutzzone verursacht wird
Besondere Vorschriften für die Schutzzone der Kategorie 3 „Ensembleschutzwürdige Gebäude" - in der Plandarstellung mit „SZ3" gekennzeichnet:
Straßenseitige Fassaden sind zu erhalten. Zubauten haben sich in Proportion und Kubatur den angrenzenden Gebäuden einzufügen und müssen auf die äußere Gestaltungscharakteristik des Bestandsgebäudes Bedacht nehmen. Fix montierte Sonnenschutzanlagen sowie außenliegende Jalousien oder Markisen sind im Bereich der Obergeschoße zulässig, sofern sie in ihrer Größe, Art und Farbgebung dem Fassadencharakter entsprechen und im geschlossenen Zustand diesen nicht beeinträchtigen.
Kaufpreis: € 720.000,--
Besichtigungsmöglichkeit besteht jederzeit nach Terminvereinbarung.
Aufgrund der Nachweispflicht gegenüber dem Eigentümer ersuchen wir um Verständnis, dass nur Anfragen mit der Angabe der vollständigen Anschrift und Telefonnummer bearbeitet werden können.
Wir weisen auf Ihre 14-tägige Rücktrittsfrist (gemäß § 11 FAGG ) hin. Um Ihre Rechte zu wahren, können nur Anfragen mit vollständigen Kontaktdaten (Name, Adresse, Telefon, Email) beantwortet werden.
Vor Ablauf der 14-tägigen Rücktrittsfrist werden wir gerne für Sie tätig, wenn Sie gesetzeskonform (FAGG) uns ausdrücklich (am einfachsten per E-Mail) dazu auffordern.
Wenn der Kaufvertrag/der Mietvertrag nicht zustande kommt, bleibt unsere Tätigkeit für Sie vollkommen kostenlos.
Gewährleistung:
Die Verkäuferseite gewährleistet, dass der Vertragsgegenstand ihr unbeschränktes Eigentum und frei von Geldlasten, Bestandrechten und sonstigen Rechten Dritter ist.
Ansonsten wird jede Gewährleistung der Verkäuferseite ausgeschlossen und festgestellt, dass sich dieser Gewährleistungsausschluss sowohl auf bestimmte als auch auf gewöhnlich vorausgesetzte Eigenschaften des Vertragsgegenstandes wie beispielsweise Lage, Größe, Zustand, Abnützung, Widmung, Beschaffenheit, Ertrag und Verwendungsmöglichkeit bezieht.
Hinweis gemäß Energieausweisvorlagegesetz: Ein Energieausweis wurde vom Eigentümer bzw. Verkäufer, nach unserer Aufklärung über die generell geltende Vorlagepflicht, sowie Aufforderung zu seiner Erstellung noch nicht vorgelegt. Daher gilt zumindest eine dem Alter und der Art des Gebäudes entsprechende Gesamtenergieeffizienz als vereinbart. Wir übernehmen keinerlei Gewähr oder Haftung für die tatsächliche Energieeffizienz der angebotenen Immobilie.
Der Vermittler ist als Doppelmakler tätig.
Infrastruktur / Entfernungen
Gesundheit
Arzt <250m
Apotheke <200m
Klinik <950m
Krankenhaus <600m
Kinder & Schulen
Schule <225m
Kindergarten <550m
Höhere Schule <400m
Universität <2.950m
Nahversorgung
Supermarkt <225m
Bäckerei <150m
Einkaufszentrum <1.425m
Sonstige
Bank <125m
Geldautomat <125m
Post <525m
Polizei <300m
Verkehr
Bus <200m
Autobahnanschluss <2.350m
Bahnhof <625m
Flughafen <2.450m
Angaben Entfernung Luftlinie / Quelle: OpenStreetMap
Objektdaten
Ausstattung
- Befeuerung mit Gas
- Massiv Bauweise
Dokumente / Links
Zustand
- Zustand
- SANIERUNGSBEDUERFTIG
- Alter
- ALTBAU
Flächen
- Nutzfläche
- 621m²
- Grundstücksfläche
- 439m²
Kosten
- Kaufpreis Brutto
- € 720.000,00
Verwaltung
- Verfügbar ab
- sofort
Andere Besucher suchen nach...
- Grundstücke kaufen in 3400 Weidlingbach
- Wohnungen kaufen in 4663 Laakirchen
- Häuser in 7471 Rechnitz
- Wohnungen in 2410 Hainburg an der Donau
- Häuser kaufen in 2432 Schwadorf
- Wohnungen kaufen in 3002 Purkersdorf
- Häuser in 3150 Wilhelmsburg
- Wohnungen kaufen in 3470 Engelmannsbrunn
- Grundstücke kaufen im Bezirk Mattersburg
- Grundstücke kaufen im Bezirk Gmunden