Abrissobjekt mit Grundstück und Waldparadies in idyllischer Lage
Beschreibung
Das ursprünglich 1977 baubewilligte Wohnhaus mit zwei Wohneinheiten erhielt 1997 die Benützungsbewilligung. Es befindet sich in einem teils unfertigen Zustand und erfordert umfassende Sanierungs- und Fertigstellungsarbeiten. Ergänzt wird das Angebot durch ein großzügiges Waldgrundstück mit rund 22.619 m² Fläche – ideal für Naturliebhaber oder als langfristige Wertanlage.
laut Angaben der Gemeinde Kirchschlag:
Das Haus darf abgerissen werden, da das Grundstück die Widmung Bauland Agrar aufweist. Es ist nur zu beachten, falls Neu-, Zubauten oder Erweiterungen stattfinden, eine Ergänzungsabgabe (Aufschließungsabgabe fällig wird)
In der Gemeinde Kirchschlag gibt es keinen Bebauungsplan. Es muss die NÖ Bauordnung eingehalten werden bzgl. Höhe...
Das ursprünglich 1977 baubewilligte Wohnhaus mit zwei Wohneinheiten erhielt 1997 die Benützungsbewilligung. Es befindet sich in einem teils unfertigen Zustand und erfordert umfassende Sanierungs- und Fertigstellungsarbeiten. Ergänzt wird das Angebot durch ein großzügiges Waldgrundstück mit rund 22.619 m² Fläche – ideal für Naturliebhaber oder als langfristige Wertanlage.
laut Angaben der Gemeinde Kirchschlag:
Das Haus darf abgerissen werden, da das Grundstück die Widmung Bauland Agrar aufweist. Es ist nur zu beachten, falls Neu-, Zubauten oder Erweiterungen stattfinden, eine Ergänzungsabgabe (Aufschließungsabgabe fällig wird)
In der Gemeinde Kirchschlag gibt es keinen Bebauungsplan. Es muss die NÖ Bauordnung eingehalten werden bzgl. Höhe etc.
Flächenaufstellung:
• Wohnfläche gesamt: ca. 178 m²• Erdgeschoss: ca. 89,64 m²
+ 10,40 m² Loggia
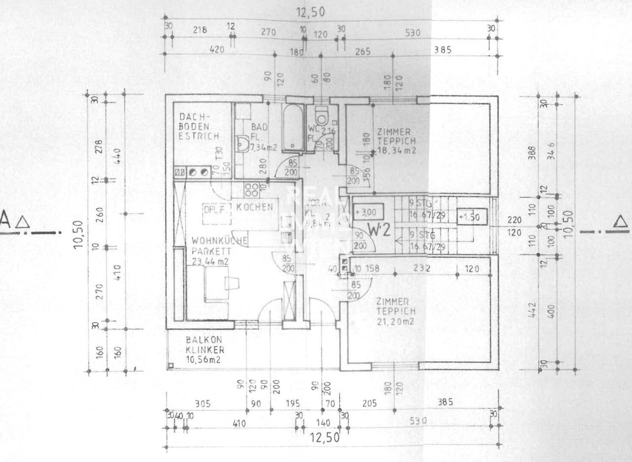
• Dachgeschoss: ca. 88,38 m²
+ 10,56 m² Loggia
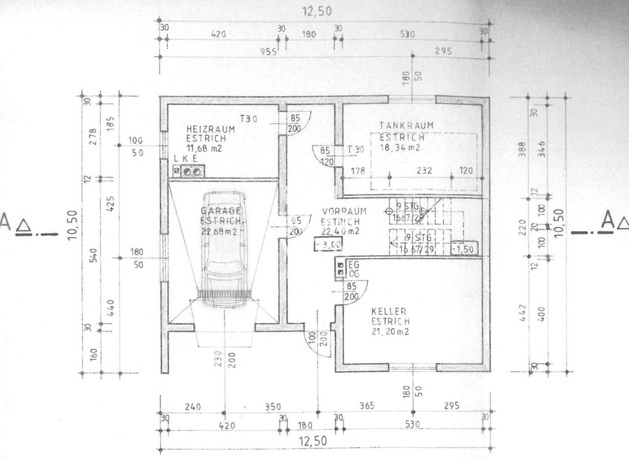
• Kellerfläche: ca. 73,62 m²
• Garage: ca. 22,68 m²
Raumaufteilung:
• Kellergeschoss: Vorraum, Kellerraum, Tankraum, Heizraum, Garage – mit deutlicher Schimmelbildung und Feuchtigkeitsschäden.
• Erdgeschoss: Großzügiger Wohnbereich mit Kochzone, mehrere Zimmer, Bad, WC, Loggia – Fertigstellung ausstehend.
• Dachgeschoss: Drei Zimmer, Wohnküche, Bad, WC, Abstellraum, Balkon – es fehlen Zargen und Innentüren, diverse Ausbauarbeiten erforderlich.
Ausstattung & Zustand
• Fenster und Balkontüren in PVC-Wärmeschutz-Ausführung
• Fußböden teils unvollständig oder uneinheitlich
• Zentralheizung über Heizkessel für feste Brennstoffe im Keller
• Mängel: Wassereintritte, Schimmelbildung, Estrichrisse, fehlende Wärmedämmung
• Das Gebäude entspricht nicht dem heutigen Standard und bedarf einer umfassenden Sanierung
laut Grundbuch: DIENSTBARKEIT des Wasserbezuges und der Wasserleitung
"BITTE BEACHTEN SIE, DASS WIR AUFGRUND DER NACHWEISPFLICHT GEGENÜBER DEM EIGENTÜMER NUR ANFRAGEN MIT VOLLSTÄNDIGER ANGABE DER ANSCHRIFT UND ANGABEN ZUR PERSON (NAME, TELEFON, E-MAIL) BEARBEITEN KÖNNEN."
Hinweis gemäß Energieausweisvorlagegesetz: Ein Energieausweis wurde vom Eigentümer bzw. Verkäufer, nach unserer Aufklärung über die generell geltende Vorlagepflicht, sowie Aufforderung zu seiner Erstellung noch nicht vorgelegt. Daher gilt zumindest eine dem Alter und der Art des Gebäudes entsprechende Gesamtenergieeffizienz als vereinbart. Wir übernehmen keinerlei Gewähr oder Haftung für die tatsächliche Energieeffizienz der angebotenen Immobilie.
Der Vermittler ist als Doppelmakler tätig.
Infrastruktur / Entfernungen
Gesundheit
Arzt <4.000m
Apotheke <6.000m
Kinder & Schulen
Schule <3.500m
Kindergarten <6.000m
Nahversorgung
Supermarkt <6.000m
Bäckerei <6.000m
Einkaufszentrum <6.500m
Sonstige
Bank <3.500m
Post <4.500m
Geldautomat <3.500m
Polizei <6.000m
Verkehr
Bus <3.500m
Flughafen <6.500m
Angaben Entfernung Luftlinie / Quelle: OpenStreetMap
Objektdaten
Ausstattung
- Zentralheizung
Flächen
- Anzahl der Logia
- 2
- Wohnfläche
- 178m²
- Grundstücksfläche
- 24.199m²
- Kellerfläche
- 74m²
Kosten
- Kaufpreis Brutto
- € 155.000,00
Andere Besucher suchen nach...
- Grundstücke kaufen in 3400 Weidlingbach
- Wohnungen kaufen in 4663 Laakirchen
- Häuser in 7471 Rechnitz
- Wohnungen in 2410 Hainburg an der Donau
- Häuser kaufen in 2432 Schwadorf
- Wohnungen kaufen in 3002 Purkersdorf
- Häuser in 3150 Wilhelmsburg
- Wohnungen kaufen in 3470 Engelmannsbrunn
- Grundstücke kaufen im Bezirk Mattersburg
- Grundstücke kaufen im Bezirk Gmunden