Genehmigtes Wohnbauprojekt mit 8 Wohnungen auf einem Baugrundstück in Wiener Neustadt. – Bauträger!!!!!!!!
-
2023
-
sofort
Beschreibung
Willkommen in Ihrem zukünftigen Traumprojekt in 2700 Wiener Neustadt, Niederösterreich!
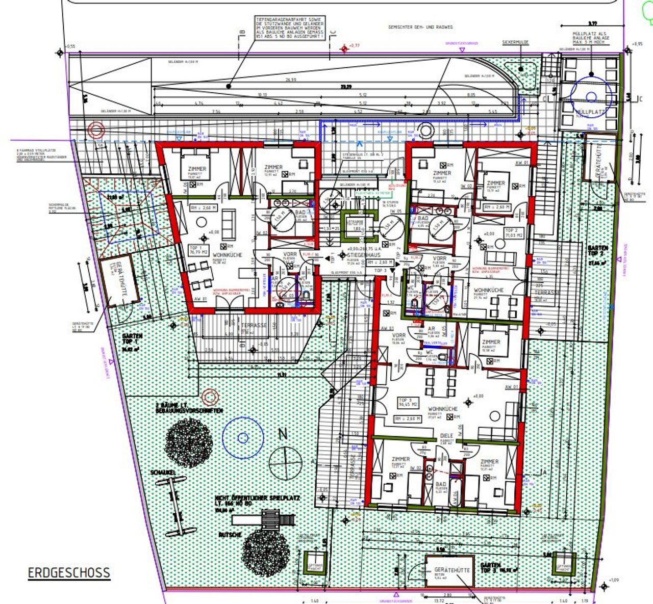
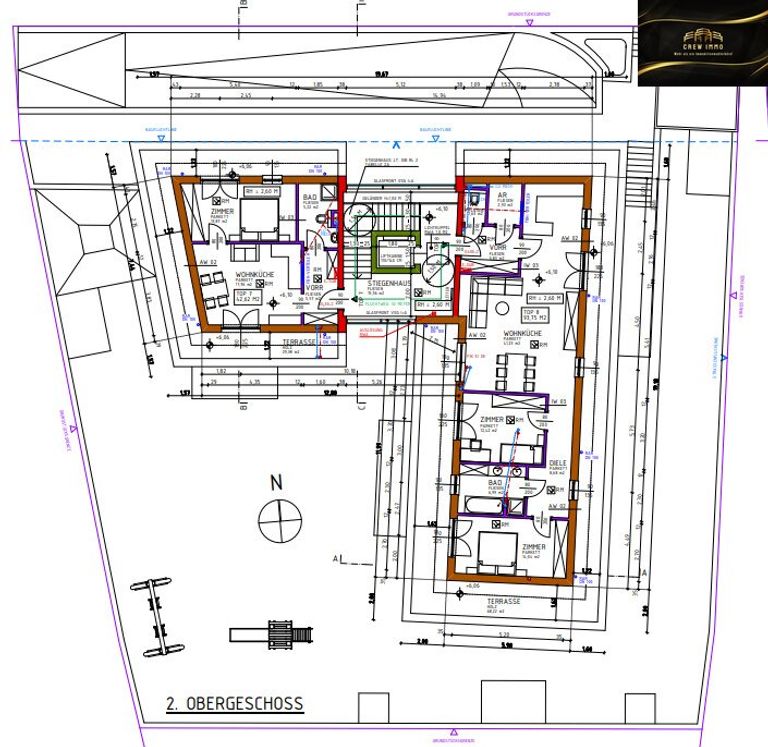
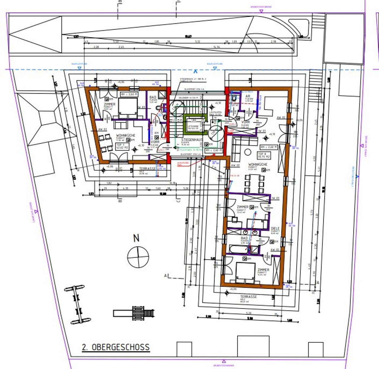
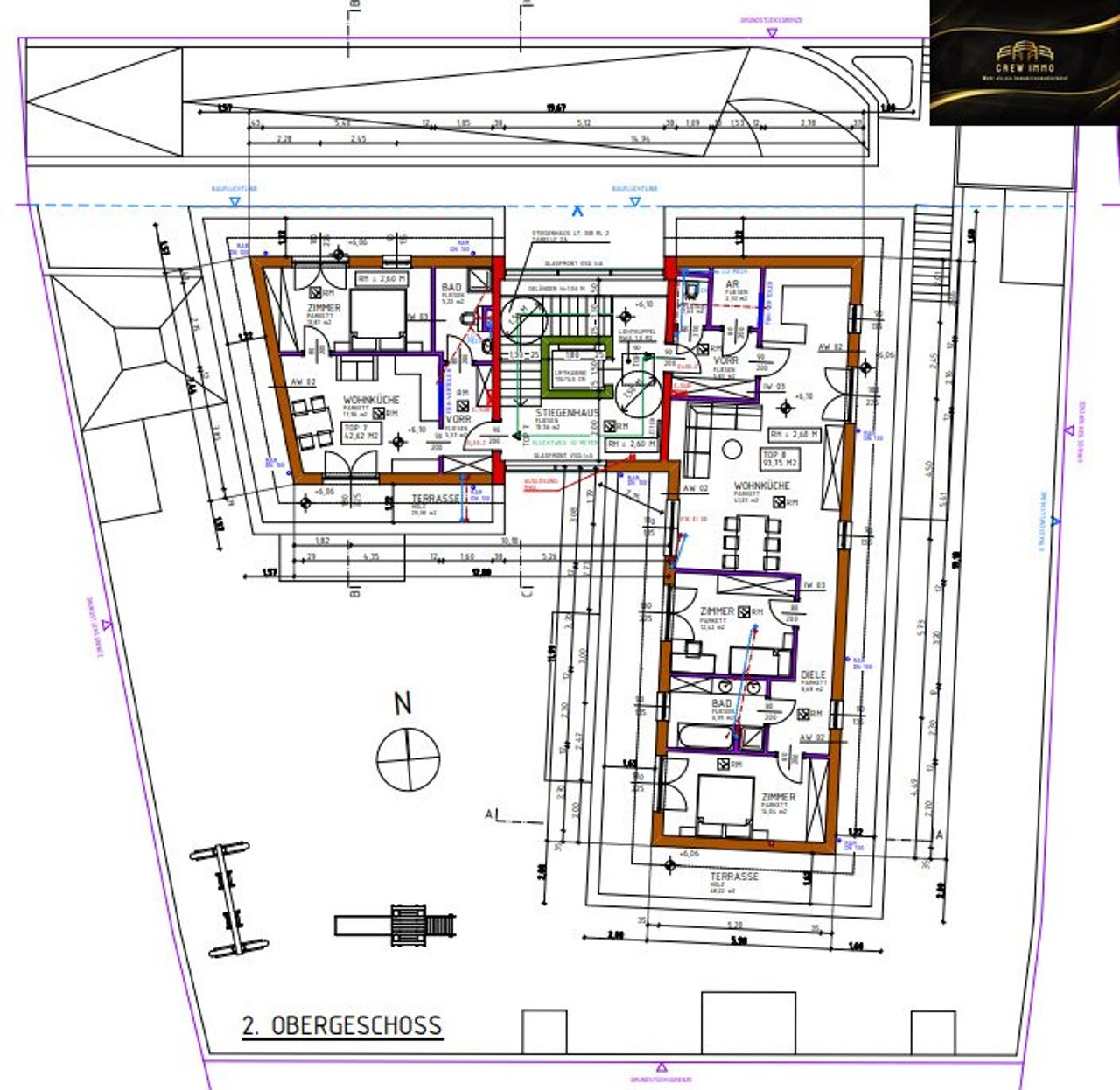
Auf dem Grundstück mit einer Gesamtfläche von 1.008 m² ist die Errichtung eines modernen Wohngebäudes mit acht großzügigen Wohneinheiten geplant. Das Projekt kombiniert zeitgemäße Architektur mit optimaler Flächennutzung und bietet sowohl privaten Eigennutzern als auch Investoren eine attraktive Möglichkeit.
Projektbeschreibung:
Grundstück
• Grundstücksfläche: 1.008 m² • Verbaute Fläche: 329,60 m² • Freifläche: 678,40 m²
Wohn- und Nutzflächen
• Wohnfläche gesamt: 674,08 m² • Nutzfläche gesamt: 1.710,00 m² • Kellerfläche: 478,58 m² • Garagenfläche: 378,55 m² • Gartenfläche: 373,81 m² • Balkone: 24,59 m² • Terrassen: 160,00 m²
...Willkommen in Ihrem zukünftigen Traumprojekt in 2700 Wiener Neustadt, Niederösterreich!
Auf dem Grundstück mit einer Gesamtfläche von 1.008 m² ist die Errichtung eines modernen Wohngebäudes mit acht großzügigen Wohneinheiten geplant. Das Projekt kombiniert zeitgemäße Architektur mit optimaler Flächennutzung und bietet sowohl privaten Eigennutzern als auch Investoren eine attraktive Möglichkeit.
Projektbeschreibung:
Grundstück
• Grundstücksfläche: 1.008 m²
• Verbaute Fläche: 329,60 m²
• Freifläche: 678,40 m²
Wohn- und Nutzflächen
• Wohnfläche gesamt: 674,08 m²
• Nutzfläche gesamt: 1.710,00 m²
• Kellerfläche: 478,58 m²
• Garagenfläche: 378,55 m²
• Gartenfläche: 373,81 m²
• Balkone: 24,59 m²
• Terrassen: 160,00 m²
Geplante Ausstattung
• 8 Wohnungen mit jeweils modernen Grundrissen
• 8 Bäder und 8 separate WC
• 8 Abstellräume
• Balkon oder Terrasse oder Gartenflächen für jede Einheiten
• Tiefgarage und Kellerflächen
Besonderheiten
• Moderne Architektur mit funktionalen und hellen Grundrissen
• Außenflächen (Garten, Terrassen, Balkone) steigern die Wohnqualität
• Optimale Parkmöglichkeiten dank großzügiger Garagenfläche
• Hohe Attraktivität für Eigennutzer und Anleger
Potenzial
• Familienfreundliche Wohnanlage mit Gärten und Freiflächen
• Anlageobjekt mit Vermietungspotenzial
• Zukunftssicher durch energieeffiziente Bauweise (nach Planung umsetzbar)
Die Verkehrsanbindung könnte nicht besser sein: Ein Bus bringt Sie schnell und unkompliziert in die umliegenden Stadtteile und darüber hinaus. So sind Sie sowohl mobil als auch in unmittelbarer Nähe zu allem, was Sie für den Alltag benötigen.
In der Umgebung finden Sie alles, was das Leben angenehm macht: Ärzte, Apotheken, ein Krankenhaus, Schulen, Kindergärten, Supermärkte, Bäckereien und ein Einkaufszentrum – alles in greifbarer Nähe. Hier lebt es sich bequem und entspannt!
Kontaktieren Sie uns noch heute, um mehr über dieses exklusive Angebot zu erfahren und einen Besichtigungstermin zu vereinbaren. Ihr neues Projekt wartet auf Sie!
Sie wollen Ihre Immobilie verkaufen? Ermitteln Sie den maximalen Verkaufspreis!
✅ Leistbarkeit checken ✅ Angebotscheck auf Bestpreis
✅ Finanzierungsangebote einholen & vergleichen ✅ Jetzt kostenlos anfragen
Alle Angaben erfolgen ohne Gewähr und basieren ausschließlich auf den Informationen, die uns vom Verkäufer mitgeteilt wurden. Da wir diese Informationen lediglich weiterleiten, übernehmen wir keine Haftung für deren Richtigkeit, Vollständigkeit und Aktualität.
Ich ersuche um Verständnis, dass ich, aufgrund der Nachweispflicht gegenüber dem Auftraggeber und aus Sicherheitsgründen Unterlagen nur an Interessenten weiterleiten kann, die Ihre persönlichen Daten, d.h. Vor- und Familienname, Anschrift, Telefonnummer und E-Mail-Adresse, bekannt gegeben haben. Irrtümer und Änderungen vorbehalten!
In einem persönlichen und unverbindlichen & kostenlosen Termin können Sie sich einen Eindruck dieser außergewöhnlichen Liegenschaft machen. Ich freue mich auf Ihren Anruf!
Für nähere Auskünfte und/oder eine Besichtigung kontaktieren Sie mich unter
Mihai-George Micodin BA
CEO & Founder
Handy: +436764009306
E-Mail: micodin@crew-immobilien.at
Der Vermittler ist als Doppelmakler tätig.
Infrastruktur / Entfernungen
Gesundheit
Arzt <1.000m
Apotheke <1.000m
Klinik <2.500m
Krankenhaus <1.000m
Kinder & Schulen
Schule <500m
Kindergarten <1.000m
Höhere Schule <1.500m
Universität <2.500m
Nahversorgung
Supermarkt <1.000m
Bäckerei <500m
Einkaufszentrum <1.000m
Sonstige
Bank <500m
Geldautomat <500m
Post <1.500m
Polizei <1.500m
Verkehr
Bus <500m
Autobahnanschluss <2.500m
Bahnhof <2.000m
Flughafen <3.000m
Angaben Entfernung Luftlinie / Quelle: OpenStreetMap
Objektdaten
Zustand
- Zustand
- PROJEKTIERT
- Baujahr
- 2023
- Alter
- NEUBAU
- HWB
- 35.5 kWh/m² pro Jahr
- Klasse HWB
- B
- fGEE
- 0.59
- Klasse fGEE
- A+
Flächen
- Anzahl der Badezimmer
- 8
- Anzahl der sep. WCs
- 8
- Freifläche
- 678m²
- Grundstücksfläche
- 1.008m²
- Gartenfläche
- 374m²
- Kellerfläche
- 479m²
- Gesamtfläche
- 1.008m²
Kosten
- Kaufpreis Brutto
- € 750.000,00
Verwaltung
- Verfügbar ab
- sofort
Grundstücke zum Kaufen in Österreich
Grundstücke zum Kaufen in Österreich
Grundstücke zum Kaufen in Österreich
Andere Besucher suchen nach...
- Grundstücke kaufen in 3400 Weidlingbach
- Wohnungen kaufen in 4663 Laakirchen
- Häuser in 7471 Rechnitz
- Wohnungen in 2410 Hainburg an der Donau
- Häuser kaufen in 2432 Schwadorf
- Wohnungen kaufen in 3002 Purkersdorf
- Häuser in 3150 Wilhelmsburg
- Wohnungen kaufen in 3470 Engelmannsbrunn
- Grundstücke kaufen im Bezirk Mattersburg
- Grundstücke kaufen im Bezirk Gmunden