3-ZIMMER-SONNENWOHNUNG *38 m² Dachterrasse *Christkindl
€ 331.200
€ 4.800 / m²
4400 Steyr
-
Erstbezug
-
ca. 2027
-
Frühjahr 2027
Beschreibung
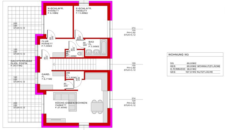
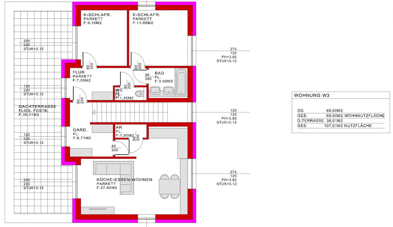
Exklusives Wohnen in Steyr – Schlüsselfertige Eigentumswohnung im ersten Obergeschoss in Christkindl Inmitten des idyllischen Stadtteils Christkindl in Steyr entsteht ein modernes Wohnprojekt, das stilvolles Design mit zeitgemäßer Technik vereint. Bis zum Frühjahr 2027 werden hier sechs Eigentumswohnungen in zwei Baukörpern errichtet – mit Wohnflächen zwischen ca. 53 und 69 m². Jede Einheit bietet eine private Terrasse und die Erdgeschosswohnungen verfügen zusätzlich über einen ca. 125 m² großen Eigengarten. Durchdachte Architektur & Nachhaltigkeit Die Gebäude werden nach aktuellen ÖNORM-Baustandards errichtet und mit modernster Technik ausgestattet. Eine zentrale Luftwärmepumpe mit Warmwasseraufbereitung sorgt in Kombination mit einer Fußbodenheizung für ein angenehmes Raumklima....
Exklusives Wohnen in Steyr – Schlüsselfertige Eigentumswohnung im ersten Obergeschoss in Christkindl
Inmitten des idyllischen Stadtteils Christkindl in Steyr entsteht ein modernes Wohnprojekt, das stilvolles Design mit zeitgemäßer Technik vereint. Bis zum Frühjahr 2027 werden hier sechs Eigentumswohnungen in zwei Baukörpern errichtet – mit Wohnflächen zwischen ca. 53 und 69 m². Jede Einheit bietet eine private Terrasse und die Erdgeschosswohnungen verfügen zusätzlich über einen ca. 125 m² großen Eigengarten.
Durchdachte Architektur & Nachhaltigkeit
Die Gebäude werden nach aktuellen ÖNORM-Baustandards errichtet und mit modernster Technik ausgestattet. Eine zentrale Luftwärmepumpe mit Warmwasseraufbereitung sorgt in Kombination mit einer Fußbodenheizung für ein angenehmes Raumklima.
Ihre Vorteile auf einen Blick:
+ schlüsselfertig
+ Wohnflächen zwischen ca. 53 und 69 m² (zuzüglich Terrassenflächen)
+ große Terrassen
+ Luftwärmepumpe & Fußbodenheizung
+ Dreifach verglaste Fenster
+ bis zu zwei KFZ-Stellplätze pro Einheit
+ Fertigstellung 2027
Erleben Sie modernes Wohnen in einer der begehrtesten Wohngegenden von Steyr.
Sichern Sie sich jetzt Ihr Eigenheim in Christkindl!
Auf Anfrage erhalten Sie von mir weitere Informationen zu den Preisen und Flächen der einzelnen Einheiten. Gerne stehe ich Ihnen für ein persönliches Beratungsgespräch zur Verfügung!
Ich freue mich darauf, Sie auf dem Weg zu Ihrem Wohntraum begleiten zu dürfen!
Herzlichst,
Diana Hertl, MSc
Immobilientreuhänderin
DIANOR Estates GmbH, Leopold-Werndl-Straße 27, 4400 Steyr
0676/4422972, office@dianor.at
Inmitten des idyllischen Stadtteils Christkindl in Steyr entsteht ein modernes Wohnprojekt, das stilvolles Design mit zeitgemäßer Technik vereint. Bis zum Frühjahr 2027 werden hier sechs Eigentumswohnungen in zwei Baukörpern errichtet – mit Wohnflächen zwischen ca. 53 und 69 m². Jede Einheit bietet eine private Terrasse und die Erdgeschosswohnungen verfügen zusätzlich über einen ca. 125 m² großen Eigengarten.
Durchdachte Architektur & Nachhaltigkeit
Die Gebäude werden nach aktuellen ÖNORM-Baustandards errichtet und mit modernster Technik ausgestattet. Eine zentrale Luftwärmepumpe mit Warmwasseraufbereitung sorgt in Kombination mit einer Fußbodenheizung für ein angenehmes Raumklima.
Ihre Vorteile auf einen Blick:
+ schlüsselfertig
+ Wohnflächen zwischen ca. 53 und 69 m² (zuzüglich Terrassenflächen)
+ große Terrassen
+ Luftwärmepumpe & Fußbodenheizung
+ Dreifach verglaste Fenster
+ bis zu zwei KFZ-Stellplätze pro Einheit
+ Fertigstellung 2027
Erleben Sie modernes Wohnen in einer der begehrtesten Wohngegenden von Steyr.
Sichern Sie sich jetzt Ihr Eigenheim in Christkindl!
Auf Anfrage erhalten Sie von mir weitere Informationen zu den Preisen und Flächen der einzelnen Einheiten. Gerne stehe ich Ihnen für ein persönliches Beratungsgespräch zur Verfügung!
Ich freue mich darauf, Sie auf dem Weg zu Ihrem Wohntraum begleiten zu dürfen!
Herzlichst,
Diana Hertl, MSc
Immobilientreuhänderin
DIANOR Estates GmbH, Leopold-Werndl-Straße 27, 4400 Steyr
0676/4422972, office@dianor.at
Objektdaten
Ausstattung
- Kabel/SAT-TV
- Zentralheizung
- Massiv Bauweise
- Zeigelmassiv
- Zentralheizung
- Sonstiges
- Kabel/SAT-TV
- Sonnige Lage
- Stadtrand
- Zentralheizung
- Kabel/SAT-TV
Zustand
- Zustand
- ERSTBEZUG
- Baujahr
- ca. 2027
- Alter
- NEUBAU
Flächen
- Anzahl der Zimmer
- 3
- Anzahl der Badezimmer
- 1
- Anzahl der sep. WCs
- 1
- Anzahl der Terrassen
- 1
- Stellplätze
- 1
- Wohnfläche
- 69m²
- Terrassenfläche
- 1m²
Kosten
- Kaufpreis
- € 331.200,00
Verwaltung
- Verfügbar ab
- Frühjahr 2027
Wohnungen zum Kaufen in Österreich
Wohnungen zum Kaufen in Österreich
Wohnungen zum Kaufen in Österreich
Andere Besucher suchen nach...
- Grundstücke kaufen in 3400 Weidlingbach
- Wohnungen kaufen in 4663 Laakirchen
- Häuser in 7471 Rechnitz
- Wohnungen in 2410 Hainburg an der Donau
- Häuser kaufen in 2432 Schwadorf
- Wohnungen kaufen in 3002 Purkersdorf
- Häuser in 3150 Wilhelmsburg
- Wohnungen kaufen in 3470 Engelmannsbrunn
- Grundstücke kaufen im Bezirk Mattersburg
- Grundstücke kaufen im Bezirk Gmunden