2 Zimmer Wohnung mit 64m² und Balkon sowie Garage im Herzen von Tulln
€ 339.000
€ 5.307 / m²
3430 Tulln an der Donau
Beschreibung
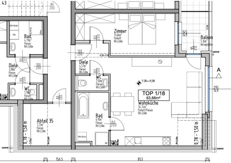
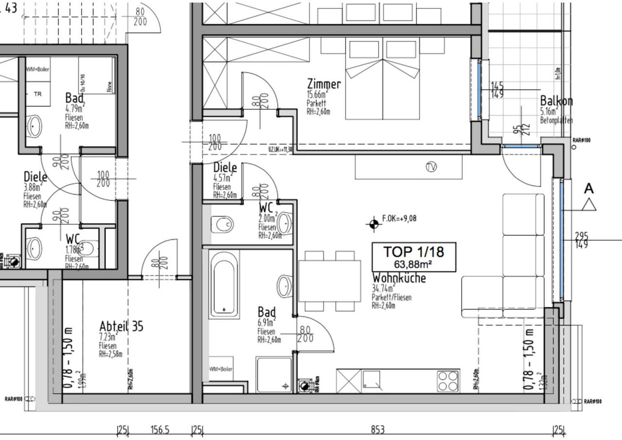
2 Zimmer Wohnung mit 64m² und Balkon sowie Garage im Herzen von Tulln Die im Herzen der Rosenstadt Tulln erbaute Wohnhausanlage wurde 2018 fertiggestellt und besticht durch bestens durchdachte, moderne und nachhaltige Bauweise auf höchstem Standard. Die neuwertige 2 Zimmer Wohnung mit 64m² Wohnfläche präsentiert sich lichtdurchflutet, gut durchdacht und mit charmantem Wohnambiente. Über das zentrale Vorzimmer gelangt man in die separate Toilette sowie weiter in das Schlafzimmer mit 15,66m² sowie vis a vis in das großzügig angelegte Wohn- Esszimmer mit 35m² und direktem Zugang auf den Balkon mit 5m². Dahinter befindet sich das geräumige Badezimmer bei einer Größe von...
2 Zimmer Wohnung mit 64m² und Balkon sowie Garage im Herzen von Tulln
Die im Herzen der Rosenstadt Tulln erbaute Wohnhausanlage wurde 2018 fertiggestellt und besticht durch bestens durchdachte, moderne und nachhaltige Bauweise auf höchstem Standard.
Die neuwertige 2 Zimmer Wohnung mit 64m² Wohnfläche präsentiert sich lichtdurchflutet, gut durchdacht und mit charmantem Wohnambiente. Über das zentrale Vorzimmer gelangt man in die separate Toilette sowie weiter in das Schlafzimmer mit 15,66m² sowie vis a vis in das großzügig angelegte Wohn- Esszimmer mit 35m² und direktem Zugang auf den Balkon mit 5m². Dahinter befindet sich das geräumige Badezimmer bei einer Größe von 7m². Der hofseitige Garten dient als Allgemeinfläche und kann selbstverständlich mitbenutzt werden.
Sämtliche Räumlichkeiten verfügen über eine Fußbodenheizung und werden wirtschaftlich sehr ökonomisch über Fernwärme beheizt. Jede Wohneinheit reguliert die Heizung selbstständig nach Bedarf. Zusätzlich bietet die Ausstattung der Wohnung eine automatische Raumbelüftung. Garage, Fahrradabstellraum und Müllraum sind bestens zugänglich.
Ebenfalls im Eigentum befindet sich ein Kellerabteil und ein eigener Garagenplatz in der Tiefgarage.
Die Wohnung ist bis November 2027 bestens vermietet, danach ist eine weitere Vermietung sowie die Nutzung zum Eigenbedarf gerne möglich.
Hervorzuheben ist die Lage der Wohnung, welche durch Ihre Lage im Herzen von Tulln gelegen ist.
Nur wenige Schritte vom wunderschönen Hauptplatz mit seinem besonderen Flair, entfernt. Die Stadt Tulln bietet alle Vorzüge und garantiert höchste Ansprüche und beste Lebensqualität. Schnellbahn, Schulen, Kindergarten, Gastronomie sowie Freizeiteinrichtungen sind in unmittelbarer Umgebung vorhanden.
Der Preis NUR € 339.000,--
Wir weisen auf ein wirtschaftliches Naheverhältnis hin!
Der Vermittler ist als Doppelmakler tätig!
Die im Herzen der Rosenstadt Tulln erbaute Wohnhausanlage wurde 2018 fertiggestellt und besticht durch bestens durchdachte, moderne und nachhaltige Bauweise auf höchstem Standard.
Die neuwertige 2 Zimmer Wohnung mit 64m² Wohnfläche präsentiert sich lichtdurchflutet, gut durchdacht und mit charmantem Wohnambiente. Über das zentrale Vorzimmer gelangt man in die separate Toilette sowie weiter in das Schlafzimmer mit 15,66m² sowie vis a vis in das großzügig angelegte Wohn- Esszimmer mit 35m² und direktem Zugang auf den Balkon mit 5m². Dahinter befindet sich das geräumige Badezimmer bei einer Größe von 7m². Der hofseitige Garten dient als Allgemeinfläche und kann selbstverständlich mitbenutzt werden.
Sämtliche Räumlichkeiten verfügen über eine Fußbodenheizung und werden wirtschaftlich sehr ökonomisch über Fernwärme beheizt. Jede Wohneinheit reguliert die Heizung selbstständig nach Bedarf. Zusätzlich bietet die Ausstattung der Wohnung eine automatische Raumbelüftung. Garage, Fahrradabstellraum und Müllraum sind bestens zugänglich.
Ebenfalls im Eigentum befindet sich ein Kellerabteil und ein eigener Garagenplatz in der Tiefgarage.
Die Wohnung ist bis November 2027 bestens vermietet, danach ist eine weitere Vermietung sowie die Nutzung zum Eigenbedarf gerne möglich.
Hervorzuheben ist die Lage der Wohnung, welche durch Ihre Lage im Herzen von Tulln gelegen ist.
Nur wenige Schritte vom wunderschönen Hauptplatz mit seinem besonderen Flair, entfernt. Die Stadt Tulln bietet alle Vorzüge und garantiert höchste Ansprüche und beste Lebensqualität. Schnellbahn, Schulen, Kindergarten, Gastronomie sowie Freizeiteinrichtungen sind in unmittelbarer Umgebung vorhanden.
Der Preis NUR € 339.000,--
Wir weisen auf ein wirtschaftliches Naheverhältnis hin!
Der Vermittler ist als Doppelmakler tätig!
Objektdaten
Ausstattung
- Gartennutzung
- Unterkellert
- Fußbodenheizung
- Massiv Bauweise
- Zeigelmassiv
- Bus
- Eisenbahn
- Fußbodenheizung
- Küche Möbliert
- Schnellbahn
- Sonnige Lage
- Stadtzentrum
Dokumente / Links
Zustand
- Zustand
- GEPFLEGT
- Baujahr
- ca. 2018
Flächen
- Anzahl der Zimmer
- 2
- Anzahl der Schlafzimmer
- 1
- Anzahl der Badezimmer
- 1
- Anzahl der sep. WCs
- 1
- Anzahl der Balkone
- 1
- Stellplätze
- 1
- Wohnfläche
- 64m²
Kosten
- Kaufpreis
- € 339.000,00
Wohnungen zum Kaufen im Umkreis von Tulln an der Donau
Wohnungen zum Kaufen im Umkreis von Tulln an der Donau
Wohnungen zum Kaufen in Österreich
Andere Besucher suchen nach...
- Grundstücke kaufen in 3400 Weidlingbach
- Wohnungen kaufen in 4663 Laakirchen
- Häuser in 7471 Rechnitz
- Wohnungen in 2410 Hainburg an der Donau
- Häuser kaufen in 2432 Schwadorf
- Wohnungen kaufen in 3002 Purkersdorf
- Häuser in 3150 Wilhelmsburg
- Wohnungen kaufen in 3470 Engelmannsbrunn
- Grundstücke kaufen im Bezirk Mattersburg
- Grundstücke kaufen im Bezirk Gmunden