2 Zimmer Wohnung Nähe Donaulände und Zentrum
-
2026
-
Mai 2027
Beschreibung
Modernes Wohnen in Tulln – Eigentumswohnungen mit Balkon, Garten oder Dachterrasse Mit dem Neubauprojekt „Junge Römer“ entstehen in der Langenlebarner Straße 5 insgesamt 36 Eigentumswohnungen in zentraler Lage nahe Donau, Bahnhof und Stadtkern. Zur Auswahl stehen Gartenwohnungen, Wohnungen mit Balkon sowie Dachgeschosswohnungen mit großzügigen Dachterrassen, Sonnendecks und Weitblick.
Die Wohnflächen von ca. 54 m² bis 150 m² bieten 2 bis 5 Zimmer – ideal für Singles, Paare und Familien. Großzügige Außenflächen laden zum Entspannen im Freien ein.
Besonders attraktiv ist die nachhaltige Energieversorgung: Das Haus wird mittels Wärmepumpen (Erdsonden/Tiefenbohrungen) und Photovoltaikanlagen hocheffizient betrieben. Als Niedrigstenergiehaus (HWBRef, SK 31/30 kWh/m²a; fGEE,...
Modernes Wohnen in Tulln – Eigentumswohnungen mit Balkon, Garten oder Dachterrasse
Mit dem Neubauprojekt „Junge Römer“ entstehen in der Langenlebarner Straße 5 insgesamt 36 Eigentumswohnungen in zentraler Lage nahe Donau, Bahnhof und Stadtkern. Zur Auswahl stehen Gartenwohnungen, Wohnungen mit Balkon sowie Dachgeschosswohnungen mit großzügigen Dachterrassen, Sonnendecks und Weitblick.
Die Wohnflächen von ca. 54 m² bis 150 m² bieten 2 bis 5 Zimmer – ideal für Singles, Paare und Familien. Großzügige Außenflächen laden zum Entspannen im Freien ein.
Besonders attraktiv ist die nachhaltige Energieversorgung: Das Haus wird mittels Wärmepumpen (Erdsonden/Tiefenbohrungen) und Photovoltaikanlagen hocheffizient betrieben. Als Niedrigstenergiehaus (HWBRef, SK 31/30 kWh/m²a; fGEE, SK 0,62/0,59) bietet das Projekt zukunftssicheren Wohnkomfort.
Die Lage überzeugt: In wenigen Minuten erreichen Sie die Donaupromenade, den Bahnhof und das Zentrum von Tulln mit Schulen, Ärzten, Einkaufsmöglichkeiten und vielfältigem Freizeitangebot.
Top 14 ist eine Wohnung im 1. Stock in hofseitiger Lage und bietet Ihnen auf ca. 54,65m² Wohnfläche ein Wohnzimmer mit Anschlüssen für eine offene Küche, 1 Schlafzimmer, ein Badezimmer mit Badewanne, Waschbecken und Waschmaschinenanschluß, ein separates WC mit Handwaschbecken sowie zwei Abstellräume. Die Außenfläche umfasst eine ca. 3,38m² großen Balkon.
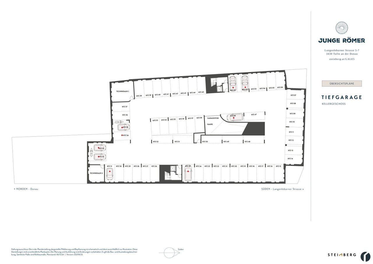
Einen Parkplatz in der hauseigenen Tiefgarage können Sie um € 25.000,- erwerben.
Eine Übersicht aller verfügbaren Wohnungen, finden Sie hier: https://www.immobilien86.at/projekt-junge-roemer
Besonders zukunftsfit ist die Haustechnik: Wärmepumpen (Erdsonden/Tiefenbohrungen) und Photovoltaikanlagen versorgen das Haus energieeffizient und ressourcenschonend. Der Baukörper ist als Niedrigstenergiehaus geplant (HWBRef, SK 31/30 kWh/m²a; fGEE, SK 0,62/0,59). In den Dachgeschosswohnungen sorgt eine Deckenkühlung im Sommer für spürbaren Komfort. In der Tiefgarage stehen 58 PKW-Stellplätze zur Verfügung – mit Vorbereitung für E-Ladestationen.
Ausstattung & Übergabe: Alle Wohnungen werden schlüsselfertig übergeben. Detaillierte Informationen entnehmen Sie bitte der Bau- und Ausstattungsbeschreibung.
Die Lage verbindet Urbanität mit Natur: In ca. 5 Minuten erreichen Sie das Zentrum von Tulln, den Hauptplatz und den Bahnhof. Über die S5 gelangen Sie rasch nach Wien, zahlreiche ÖBB-Verbindungen bringen Sie im Halbstundentakt nach Wien (ca. 20 Min.) oder Krems (ca. 40 Min.). Der Bahnhof Tullnerfeld erschließt die Hochleistungsstrecke Richtung Wien Hauptbahnhof und Westen – St. Pölten (ca. 14 Min.), Linz (ca. 1 Std. 10 Min.).
Infrastruktur & Bildung:
Tulln bietet eine dichte Versorgung mit Apotheken, Ärztezentrum und Krankenhaus in der Nähe. Neben Kindergärten und Volksschulen finden sich Hauptschule, Sport- und Musik-NMS, Gymnasium, HAK/HAS, HBLA, Musikschule sowie der Campus Tulln mit Universitäts- und Forschungszentrum (u. a. Universität für Bodenkultur Wien – IFA-Tulln, Austrian Biotech University of Applied Sciences). Supermärkte, der Einzelhandel und vielfältige Shopping-Möglichkeiten sind bequem zu Fuß erreichbar.
Freizeit & Natur: Ob Aubad, DonauSplash, Eislaufplatz, zahlreiche Sportvereine oder Kunst- und Kulturveranstaltungen – Tulln steht für hohe Lebensqualität. Die Donau, Auenlandschaften und der nahe Wienerwald laden zum Spazieren, Wandern und Radfahren ein; die Stadt ist als Garten- und Messestadt überregional bekannt – mit einem lebendigen Kultur- und Veranstaltungsangebot.
Kontakt & Beratung
Für weitere Informationen und Terminvereinbarungen wenden Sie sich an Claudia Friesinger
E-Mail: office@immobilien86.at · Tel. 0664 / 143 53 40
Hinweis: Alle Angaben ohne Gewähr. Aufgrund der Nachweispflicht gegenüber dem Eigentümer können Anfragen nur mit vollständiger Anschrift und Telefonnummer bearbeitet werden. Objektunterlagen und die genaue Liegenschaftsadresse werden nicht ohne entsprechende Anfrageunterlagen übermittelt.
Der Vermittler ist als Doppelmakler tätig.
Infrastruktur / Entfernungen
Gesundheit
Arzt <500m
Apotheke <500m
Klinik <6.500m
Krankenhaus <1.500m
Kinder & Schulen
Schule <500m
Kindergarten <500m
Universität <1.500m
Höhere Schule <1.500m
Nahversorgung
Supermarkt <1.000m
Bäckerei <500m
Einkaufszentrum <1.000m
Sonstige
Bank <500m
Geldautomat <500m
Post <500m
Polizei <1.000m
Verkehr
Bus <500m
Bahnhof <1.000m
Autobahnanschluss <3.500m
Flughafen <4.500m
Angaben Entfernung Luftlinie / Quelle: OpenStreetMap
Objektdaten
Ausstattung
- Kabel/SAT-TV
- Barrierefrei
- Fahrradraum
- Seniorengerecht
- Bad mit Badewanne
- Fliesenboden
- Parkettboden
- Fußbodenheizung
- Solar
- Erdwärme
- Personen Fahrstuhl
- Ausrichtung Balkon/Terrasse - West
- Massiv Bauweise
- Niedrigenergie
- Klimatisiert
Dokumente / Links
- Energieausweis Haus 1
- Allgemeine Informationen Projekt "Junge Römer"
- Energieausweis Haus 2
- Bau- und Ausstattungsbeschreibung Premium
- Bau- und Ausstattungsbeschreibung
- Planmappe Gesamt
Zustand
- Baujahr
- 2026
- Alter
- NEUBAU
- HWB
- 30 kWh/m² pro Jahr
- Klasse HWB
- B
- fGEE
- 0.59
- Klasse fGEE
- A+
Flächen
- Anzahl der Zimmer
- 2
- Anzahl der Badezimmer
- 1
- Anzahl der sep. WCs
- 1
- Anzahl der Balkone
- 1
- Wohnfläche
- 55m²
Kosten
- Kaufpreis Brutto
- € 291.500,00
- Betriebskosten
- € 106,00
- Sonstige Kosten
- € 61,75
Verwaltung
- Verfügbar ab
- Mai 2027
Wohnungen zum Kaufen im Umkreis von Tulln an der Donau
Wohnungen zum Kaufen im Umkreis von Tulln an der Donau
Wohnungen zum Kaufen in Österreich
Andere Besucher suchen nach...
- Grundstücke kaufen in 3400 Weidlingbach
- Wohnungen kaufen in 4663 Laakirchen
- Häuser in 7471 Rechnitz
- Wohnungen in 2410 Hainburg an der Donau
- Häuser kaufen in 2432 Schwadorf
- Wohnungen kaufen in 3002 Purkersdorf
- Häuser in 3150 Wilhelmsburg
- Wohnungen kaufen in 3470 Engelmannsbrunn
- Grundstücke kaufen im Bezirk Mattersburg
- Grundstücke kaufen im Bezirk Gmunden