Eigentumswohnungen Projekt "Veritas" Top 2/6, 3 Zimmer
-
2024
-
2026
Beschreibung
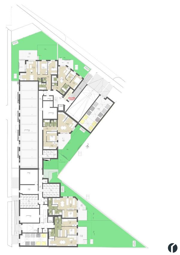
In Tulln an der Donau, Nähe Krankenhaus und Campus Tulln entsteht ein Wohnbauprojekt mit 29 freifinanzierten, schlüsselfertigen Eigentumswohnungen zwischen 40m² und 103 m² Wohnfläche in Ziegelmassivbauweise sowie 38 KFZ Stellplätzen im Bau. Der Verkauf erfolgt PROVISIONSFREI für die Käufer.
Die Fertigstellung erfolgt mit 31.03.2026.
Hier bietet sich Ihnen die Möglichkeit eine langlebige, hochwertige und wertbeständige Immobilie in zu erwerben. Das in Niedrigenergiebauweise errichtete Objektes lässt keine Wünsche offen und eignet sich nicht nur hervorragend als private Wohnung zu Eigennutzung sondern ebenso als Vorsorgewohnung.
Die moderne, hauseigene 15kWp Photovoltaik Anlage erzeugt Strom für die Heizung und Allgemeinversorgung und sorgt für...
In Tulln an der Donau, Nähe Krankenhaus und Campus Tulln entsteht ein Wohnbauprojekt mit 29 freifinanzierten, schlüsselfertigen Eigentumswohnungen zwischen 40m² und 103 m² Wohnfläche in Ziegelmassivbauweise sowie 38 KFZ Stellplätzen im Bau. Der Verkauf erfolgt PROVISIONSFREI für die Käufer.
Die Fertigstellung erfolgt mit 31.03.2026.
Hier bietet sich Ihnen die Möglichkeit eine langlebige, hochwertige und wertbeständige Immobilie in zu erwerben. Das in Niedrigenergiebauweise errichtete Objektes lässt keine Wünsche offen und eignet sich nicht nur hervorragend als private Wohnung zu Eigennutzung sondern ebenso als Vorsorgewohnung.
Die moderne, hauseigene 15kWp Photovoltaik Anlage erzeugt Strom für die Heizung und Allgemeinversorgung und sorgt für niedrige Betriebskosten. Heizung und Warmwasser Aufbereitung erfolgen über eine hauseigene, zentrale Pelletsanlage, die Beheizung über Fußbodenheizung. Alle Details zur Bauweise und Ausstattung finden Sie im Projektfolder.
Die Wohnung Top 2/6 ist ostseitig gelegen und bietet Ihnen auf ca. 77,68m2 3 Zimmer, Anschlüsse für eine offene Küche im Wohnzimmer, ein Badezimmer mit Badwanne, Walk-in Dusche, Waschbecken und Waschmaschinen Anschluss sowie ein separates WCs sowie einen Abstellraum. Der ca. 12,05 m2 große Balkon kann vom Wohnzimmer aus betreten werden. Alle Fenster sowie die Balkontür sind mit außenliegenden elektrischen Rolläden ausgestattet.
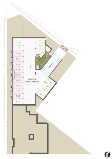
Die Wohnhausanlage verfügt über 38 KFZ-Stellplätze, die sich wie folgt aufteilen:
Parkplätze in der Tiefgarage, Kaufpreis € 25.000,-
Parkplätze im Multiparker-System, Kaufpreis ab € 19.500,- (nähere Informationen sowie Preisliste finden Sie im Projektfolder).
Vorbereitung für E-Ladestation gegen Aufpreis möglich.
Informationen zum Klaus Multiparking System:
Anders als andere Multiparker Systeme nimmt dieses drei Fahrzeuge übereinander auf, wobei es die Stellplätze vertikal und horizontal verschiebt: nach unten in die Grube oder nach oben in die 3. Parkebene. Der angeforderte Stellplatz (Anforderung mittels Fernbedienung oder App) wird automatisch in Position gebracht. Für maximale Bedienungssicherheit ist die Einfahrtsebene vor der Gesamtanlage durch Tore abgesichert. Dadurch sind die Fahrzeuge auch sicher vor Diebstahl und Vandalismus.
Ein Erklärvideo finden Sie hier auf der website des Herstellers: https://www.klaus-multiparking.at/product-semi-automatic/trendvario-6300
Haustechnik:
Die Wohnhausanlage wird mit einer Pellets-Zentralheizung betrieben. Alle Wohnungen sind mit Fußbodenheizung ausgestattet, das Warmwasser wird ebenfalls über die zentrale Pelletsheizung erzeugt.
Auf dem Dach des Wohnhause wird eine PV-Anlage mit einer Leistung von 15 kWp errichtet. Mit der Anlage wird die Abdeckung der laufenden Stromkosten für die allgemeinen Bereiche und den Heizungsbetrieb angestrebt. Ein etwaiger Überschuss wirkt betriebskostenmindernd.
Die Wohnungen werden alle schlüsselfertig übergeben. Alle weiteren Informationen finden Sie in der Bau- und Ausstattungsbeschreibung im Projektfolder.
Die niederösterreichische Bezirkshauptstadt Tulln gilt als eine der ältesten Städte in Österreich und liegt direkt am Südufer der Donau. Die harmonische Kleinstadt mit viel Lebens- und Freizeitqualität dient auch als Drehscheibe für die ganze Region. Besondere Bekannheit erlangte Tulln rund um die Themen Donau, Garten und Kunst. Hervorzuheben ist Tullns Bedeutung als Messestadt, vielfältige Shopping Möglichkeiten runden das Angebot ab.
Verkehrstechnisch ist Tulln gut angebunden. Über die S5 erreichen Sie in rund 20 Minuten die Wiener Stadtgrenze. Von Ihrer Wohnung aus sind Sie in 5 Minuten zu Fuß am Bahnhof von wo aus Sie sich etlicher Bus- und Bahnverbindungen bedienen können.
Tulln bietet ein vielfältiges Freizeitangebot für seine Bürger und ist ein beliebtes Ausflugsziel für Besucher. Das naturbelassene Aubad, das Sport- und Familienbad DonauSplash, die Garten Tulln und das Erlebnis Schiele sind nur einige Attraktionen der Stadt. Der naheliegende Wienderwald lädt zum Wandern und Spazierengehen ein. Sowohl Tulln und als auch seine Umgebung lassen sich hervorragend mit dem Rad erkunden.
Finanzierungsbeispiel 1: Objekt Nr: 4678
Rate: 1.654,74 €
Kreditbetrag: 401.500 €
Laufzeit: 35 Jahre
Zinssatz: 3,45% Sollzinssatz, fix 10 Jahre
3,77% Effektivzinssatz
Eigenkapital: 102.000 €
Zu zahlender Gesamtbetrag: 694.991 €
Finanzierungsbeispiel 2:
Rate: 1.114,10 €
Kreditbetrag: 316.000 €
Laufzeit: 50 Jahre
Zinssatz: 3,49% Sollzinssatz, fix für 10 Jahre
4,03% Effektivzinssatz
Eigenkapital: 190.000 €
Zu zahlender Gesamtbetrag: 696.566 €
Es handelt sich hier um Finanzierungsbeispiele. Einen individuellen Finanzierungsvorschlag errechnet unser Finanzmakler Ing. Wolfgang Scheucher gerne auf Basis Ihrer Daten.
Bitte kontaktieren Sie Ihn unter: Telefon: +43 676 884001970, Mobil: +43 676 88400 1970, Wolfgang.Scheucher@dvag.at
Lage & Infrastruktur:
Schule & Kindergarten:
Tulln verfügt neben zahlreichen Kindergärten und Volksschulen, außerdem über viele weitere schulische und universitäre Einrichtungen wie Hauptschule, SportNMS, MusikNMS, Gymnasium, HAK, HAS, HBLA, Musikschule und den Campus Tulln mit Universitäts- und Forschungszentrum, Universität für Bodenkultur Wien-Department IFA-Tulln-Int. Univers. Forschungsinstitut, Austrian Biotech University of Applied Sciences
Medizinische Versorgung ganz in der Nähe:
Ein modernes Apotheken und Ärztezentrum befindet sich ganz in der Nähe, ebenso wie das Krankenhaus.
Einkaufsmöglichkeiten:
Viele Supermärkte und das Stadtzentrum mit einem riesigen Angebot an Shopping Möglichkeiten in wenigen Gehminuten erreichbar.
Freizeit:
Aubad, Hallenbad, Eislaufplatz, zahlreiche Sportvereine, Kunst- und Kulturveranstaltungen, sowie Restaurants, Gasthäuser und Heurigen in der Umgebung stehen Ihnen zur Verfügung.
Öffentlicher Verkehr:
Im Halbstundentakt erreichen sie mit der ÖBB vom nahegelegenen Hauptbahnhof Tulln aus in 20 Minuten Wien und in 40 Minuten Krems. Der außerhalb der Stadt gelegene Bahnhof Tullnerfeld bietet mit seiner Hochleistungsstrecke sowohl ÖBB als auch Westbahn Verbindungen zum Wiener Hauptbahnhof sowie nach Westen. St. Pölten erreichen sie in ca. 14 Minuten, Linz in ca. 1 Stunde und 10 Minuten.
Alle Infos zur Stadt Tulln finden sie auf www.tulln.at.
Hinweis: Die Angaben zu dieser Immobilie sind ohne Gewähr. Auf Grund der Nachweispflicht gegenüber dem Eigentümer ersuchen wir Sie um Verständnis, dass wir nur Anfragen mit vollständiger Anschrift und Telefonnummer bearbeiten können, sowie keine Auskünfte betreffend Objektunterlagen und der genauen Liegenschaftsadresse erteilen können.
Für weitere Informationen wenden Sie sich bitte an Claudia Friesinger, cfriesinger@immobilien86.at, Tel. 0664-1435340
Infrastruktur / Entfernungen
Gesundheit
Arzt <575m
Apotheke <325m
Klinik <6.250m
Krankenhaus <300m
Kinder & Schulen
Schule <625m
Kindergarten <575m
Universität <525m
Höhere Schule <1.025m
Nahversorgung
Supermarkt <425m
Bäckerei <300m
Einkaufszentrum <1.275m
Sonstige
Bank <575m
Geldautomat <575m
Post <1.150m
Polizei <1.425m
Verkehr
Bus <200m
Bahnhof <325m
Autobahnanschluss <4.250m
Flughafen <3.875m
Angaben Entfernung Luftlinie / Quelle: OpenStreetMap
Objektdaten
Ausstattung
- Kabel/SAT-TV
- Fahrradraum
- Seniorengerecht
- Bad mit Dusche
- Bad mit Badewanne
- Fliesenboden
- Parkettboden
- Zentralheizung
- Fußbodenheizung
- Personen Fahrstuhl
- Ausrichtung Balkon/Terrasse - Ost
- Massiv Bauweise
Dokumente / Links
Zustand
- Baujahr
- 2024
- Alter
- NEUBAU
- HWB
- 35.5 kWh/m² pro Jahr
- Klasse HWB
- B
- fGEE
- 0.68
- Klasse fGEE
- A+
Flächen
- Anzahl der Zimmer
- 3
- Anzahl der Badezimmer
- 2
- Anzahl der sep. WCs
- 2
- Anzahl der Balkone
- 1
- Stellplätze
- 1
- Wohnfläche
- 78m²
- Kellerfläche
- 2m²
Kosten
- Kaufpreis Brutto
- € 459.700,00
- Betriebskosten
- € 170,90
- Sonstige Kosten
- € 87,78
Verwaltung
- Verfügbar ab
- 2026
Wohnungen zum Kaufen im Umkreis von Tulln an der Donau
Wohnungen zum Kaufen im Umkreis von Tulln an der Donau
Wohnungen zum Kaufen in Österreich
Andere Besucher suchen nach...
- Grundstücke kaufen in 3400 Weidlingbach
- Wohnungen kaufen in 4663 Laakirchen
- Häuser in 7471 Rechnitz
- Wohnungen in 2410 Hainburg an der Donau
- Häuser kaufen in 2432 Schwadorf
- Wohnungen kaufen in 3002 Purkersdorf
- Häuser in 3150 Wilhelmsburg
- Wohnungen kaufen in 3470 Engelmannsbrunn
- Grundstücke kaufen im Bezirk Mattersburg
- Grundstücke kaufen im Bezirk Gmunden