Helle 2-Zimmer-Wohnung in Toplage HWB 37,5 Klasse B
Beschreibung
Die Wohnung befindet sich im 2. Stock eines gepflegten Wohnhauses und überzeugt durch ihre hellen Räume, die ideale Raumaufteilung .
Dank der durchdachten Anbindung mit Lift gelangen Sie bequem und wetterunabhängig zu Supermärkten, einem Fitnessstudio, Restaurants und weiteren Einkaufsmöglichkeiten – ein urbaner Wohntraum inmitten der Kremser Altstadt!
Raumaufteilung: durchdacht & einladend
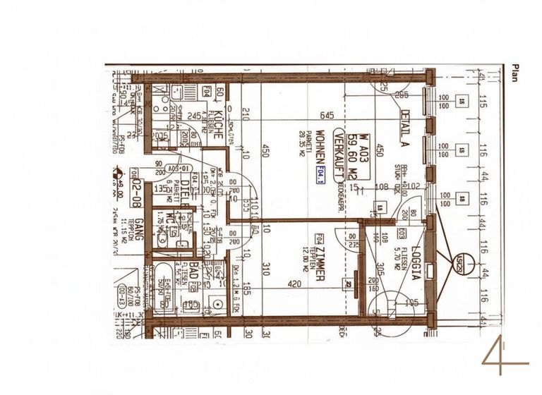
59,60 m2 Wohnfläche lt. Plan +. Loggia 5,70 m2
-
Zentraler Vorraum mit Zugang zu allen Zimmern
-
Großzügiges, lichtdurchflutetes Wohnzimmer
-
Kochnische mit Verbindung zum Wohnbereich
-
Ruhiges Schlafzimmer uneinsichtige Lage
-
Badezimmer mit Badewanne
-
Separates WC
-
Großzügiges Kellerabteil...
Die Wohnung befindet sich im 2. Stock eines gepflegten Wohnhauses und überzeugt durch ihre hellen Räume, die ideale Raumaufteilung .
Dank der durchdachten Anbindung mit Lift gelangen Sie bequem und wetterunabhängig zu Supermärkten, einem Fitnessstudio, Restaurants und weiteren Einkaufsmöglichkeiten – ein urbaner Wohntraum inmitten der Kremser Altstadt!
Raumaufteilung: durchdacht & einladend
59,60 m2 Wohnfläche lt. Plan +. Loggia 5,70 m2
Zentraler Vorraum mit Zugang zu allen Zimmern
Großzügiges, lichtdurchflutetes Wohnzimmer
Kochnische mit Verbindung zum Wohnbereich
Ruhiges Schlafzimmer uneinsichtige Lage
Badezimmer mit Badewanne
Separates WC
Großzügiges Kellerabteil für zusätzlichen Stauraum
Der Vermittler ist als Doppelmakler tätig.
Objektdaten
Zustand
- HWB
- 37.5 kWh/m² pro Jahr
- Klasse HWB
- B
Flächen
- Anzahl der Logia
- 1
- Wohnfläche
- 60m²
Kosten
- Kaufpreis Brutto
- € 299.000,00
Wohnungen zum Kaufen in Österreich
Wohnungen zum Kaufen in Österreich
Wohnungen zum Kaufen in Österreich
Andere Besucher suchen nach...
- Grundstücke kaufen in 3400 Weidlingbach
- Wohnungen kaufen in 4663 Laakirchen
- Häuser in 7471 Rechnitz
- Wohnungen in 2410 Hainburg an der Donau
- Häuser kaufen in 2432 Schwadorf
- Wohnungen kaufen in 3002 Purkersdorf
- Häuser in 3150 Wilhelmsburg
- Wohnungen kaufen in 3470 Engelmannsbrunn
- Grundstücke kaufen im Bezirk Mattersburg
- Grundstücke kaufen im Bezirk Gmunden