Top Lage - sehr helle und gepflegte 3 Zi. Wohnung mit Balkon in Ruhelage
Beschreibung
Diese wunderschöne ca.100m² Eigentumswohnung wurde 2013 generalsaniert und liegt in einer Sackgasse nahe der Langenloiser Straße.
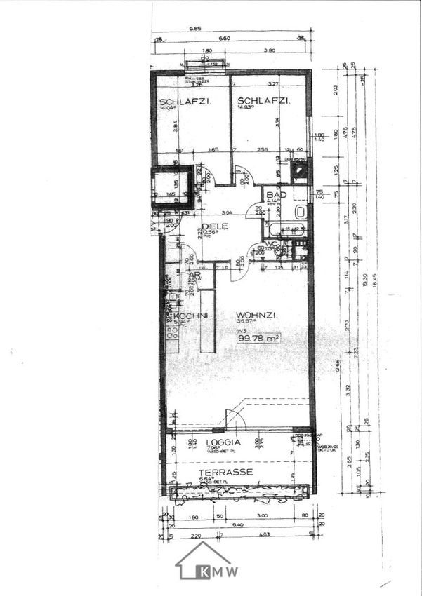
Die Wohnung befindet sich im 1.Liftstock und teilt sich in Vorraum, Abstellraum, Bad mit Dusche, WC, 2 Schlafzimmer, Wohnzimmer ca. 43m² mit offener Küche und Essbereich und einem ca. 15m² Balkon.
Der Balkon ist Süd-Ost ausgerichtet und mit WPC Terrassendielen ausgestattet. (Wasseranschluss, Stromanschluss)
Die Decken sind teilweise abgehängt und mit LED Spots versehen, weiters ist die Wohnungseingangstüre erneuert worden Sicherheitstüre (RIHA).
Alle Fenster sind mit Rollläden oder Plissee und Insektengitter ausgestattet. In der Wohnung sind hochwertigen Parkettböden und Fliesen verlegt..
Weiters gehört ein ca....
Diese wunderschöne ca.100m² Eigentumswohnung wurde 2013 generalsaniert und liegt in einer Sackgasse nahe der Langenloiser Straße.
Die Wohnung befindet sich im 1.Liftstock und teilt sich in Vorraum, Abstellraum, Bad mit Dusche, WC, 2 Schlafzimmer, Wohnzimmer ca. 43m² mit offener Küche und Essbereich und einem ca. 15m² Balkon.
Der Balkon ist Süd-Ost ausgerichtet und mit WPC Terrassendielen ausgestattet. (Wasseranschluss, Stromanschluss)
Die Decken sind teilweise abgehängt und mit LED Spots versehen, weiters ist die Wohnungseingangstüre erneuert worden Sicherheitstüre (RIHA).
Alle Fenster sind mit Rollläden oder Plissee und Insektengitter ausgestattet. In der Wohnung sind hochwertigen Parkettböden und Fliesen verlegt..
Weiters gehört ein ca. 4m² großes Kellerabteil zur Wohnung.
Das Haus ist mit Vollwärmeschutz und Doppelglasfenster Kunststoff ausgestattet, die Liftanlage wurde 2020 erneuert.
Infrastruktur / Entfernungen
Gesundheit
Arzt <1.000m
Apotheke <1.500m
Klinik <1.500m
Krankenhaus <1.000m
Kinder & Schulen
Schule <1.000m
Kindergarten <1.000m
Universität <1.500m
Höhere Schule <1.500m
Nahversorgung
Supermarkt <1.000m
Bäckerei <1.000m
Einkaufszentrum <1.000m
Sonstige
Geldautomat <1.000m
Bank <1.000m
Post <1.500m
Polizei <1.500m
Verkehr
Bus <500m
Autobahnanschluss <1.500m
Bahnhof <1.500m
Flughafen <3.500m
Angaben Entfernung Luftlinie / Quelle: OpenStreetMap
Objektdaten
Ausstattung
- Gartennutzung
- Kabel/SAT-TV
- Wasch-/Trockenraum
- Fahrradraum
- Rolladen
- Bad mit Dusche
- Bad mit Fenster
- Offene Küche
- Fliesenboden
- Parkettboden
- Zentralheizung
- Befeuerung mit Gas
- Personen Fahrstuhl
- Ausrichtung Balkon/Terrasse - Südost
- Massiv Bauweise
Zustand
- Baujahr
- 83
- HWB
- 80 kWh/m² pro Jahr
- Klasse HWB
- C
Flächen
- Anzahl der Zimmer
- 3
- Anzahl der Badezimmer
- 1
- Anzahl der sep. WCs
- 1
- Anzahl der Balkone
- 1
- Wohnfläche
- 100m²
Kosten
- Kaufpreis Brutto
- € 397.000,00
Wohnungen zum Kaufen in Österreich
Wohnungen zum Kaufen in Österreich
Wohnungen zum Kaufen in Österreich
Andere Besucher suchen nach...
- Grundstücke kaufen in 3400 Weidlingbach
- Wohnungen kaufen in 4663 Laakirchen
- Häuser in 7471 Rechnitz
- Wohnungen in 2410 Hainburg an der Donau
- Häuser kaufen in 2432 Schwadorf
- Wohnungen kaufen in 3002 Purkersdorf
- Häuser in 3150 Wilhelmsburg
- Wohnungen kaufen in 3470 Engelmannsbrunn
- Grundstücke kaufen im Bezirk Mattersburg
- Grundstücke kaufen im Bezirk Gmunden