Tolle Gartenwohnung - Erstbezug nach Sanierung
-
Erstbezug
-
2020
Beschreibung
Zum Wohngebäude
Das Wohngebäude besticht durch beste Lage innerhalb des Ortes, seine moderne Bauausführung und ein hochwertiges Erscheinungsbild. Das Gebäude verfügt über ein Erdgeschoß und zwei Obergeschoße mit 22 Wohnungen. Alle Wohnungen verfügen über Balkone oder Terrassen, alle Erdgeschoss-Wohnungen haben einen Garten. Zur Wohnanlage gehört auch ein eigener Kinderspielplatz. KFZ Stellplätze sind vorhanden.
Lage
Traismauer liegt im unteren Traisental in Niederösterreich, 28,14% sind bewaldet. Traismauer befindet sich an der Kremser Schnellstraße (S33) (Teil des Wiener Autobahnringes „Regionenring“) mit den Abfahrten „Traismauer Nord“ und „Traismauer Süd“ sowie seit 2010 mit der Donaubrücke St. Georg und dem Autobahnknoten Traismauer (B...
Zum Wohngebäude
Das Wohngebäude besticht durch beste Lage innerhalb des Ortes, seine moderne Bauausführung und ein hochwertiges Erscheinungsbild. Das Gebäude verfügt über ein Erdgeschoß und zwei Obergeschoße mit 22 Wohnungen. Alle Wohnungen verfügen über Balkone oder Terrassen, alle Erdgeschoss-Wohnungen haben einen Garten. Zur Wohnanlage gehört auch ein eigener Kinderspielplatz. KFZ Stellplätze sind vorhanden.
Lage
Traismauer liegt im unteren Traisental in Niederösterreich, 28,14% sind bewaldet. Traismauer befindet sich an der Kremser Schnellstraße (S33) (Teil des Wiener Autobahnringes „Regionenring“) mit den Abfahrten „Traismauer Nord“ und „Traismauer Süd“ sowie seit 2010 mit der Donaubrücke St. Georg und dem Autobahnknoten Traismauer (B 43). Schienenseitig ist die Stadt durch die Tullnerfelder Bahn erschlossen und bietet damit gute Verkehrsanbindung Richtung Tulln, Wien und natürlich St. Pölten.
Das Gebäude selbst befindet sich in ruhiger Wohnlagen im Nordosten von Traismauer. In unmittelbarer Nähe finden Sie alles, was Sie für den täglichen Bedarf benötigen. Ärzte und Apotheken sind bequem zu Fuß oder mit dem Fahrrad erreichbar. Auch für Familien ist diese Lage ideal, denn sowohl eine Schule als auch ein Kindergarten befinden sich in der Nähe. Ihre Einkäufe können Sie bequem in einem Supermarkt und einer Bäckerei erledigen, die ebenfalls nur wenige Gehminuten entfernt sind.
Zur Wohnung
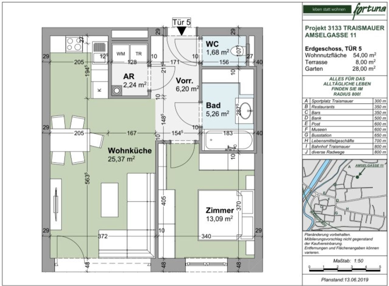
Die schicke 2-Zimmerwohnung im Erdgeschoss betritt man durch den gepflegten Eingangsbereich, welcher ausreichend Platz für eine Garderobe sowie den zentralen Zugang zu allen Räumlichkeiten der Wohnung bietet. Unmittelbar links vom Eingangsbereich befindet sich das Badezimmer mit Duschbadewanne und ein seperates WC. Beide Nassräume sind durchgehend mit modernen Fließen ausgestattet. Ein Abstellraum schafft Stauraum für nützliche Alltagsgegenstände. Das Schlafzimmer bietet genügend Platz für ein großes Bett und einen Kleiderschrank. Der Wohn- Essbereich ist mit einer Einbauküche sowie modernen Gerätschaften ausgestattet. Die großen Fenster sorgen für viel Licht im Wohnraum, der helle Parkett lässt den Raum offen und freundlich wirken. Die sonnige, idyllische Terrasse gewährt mitsamt einer Gartenfläche von 28,00m² Ruhe und Erholung und hat eine angenehme Größe für einen geselligen Grillabend.
Die Wohnung hat eine Wohnfläche von ca. 54,00m², zusätzlich ca. 8,00m² Terrasse und einen 28,00m² großen Garten.
Die Raumaufteilung ist wie folgt:
- Vorraum
- großes Schlafzimmer
- Wohn-Essbereich mit Zugang zum Garten
- Badezimmer
- separates WC
- Abstellraum
Die Parkplätze kosten 8.000 € pro Stück, und es muss mindestens ein Parkplatz dazu gekauft werden.
Übergabe
Die Übergabe kann sofort erfolgen.
Wir weisen darauf hin, dass zwischen dem Vermittler und dem zu vermittelnden Dritten ein familiäres oder wirtschaftliches Naheverhältnis besteht.
Der Vermittler ist als Doppelmakler tätig.
Infrastruktur / Entfernungen
Gesundheit
Arzt <250m
Apotheke <750m
Klinik <500m
Kinder & Schulen
Schule <750m
Kindergarten <500m
Nahversorgung
Supermarkt <500m
Bäckerei <500m
Einkaufszentrum <9.250m
Sonstige
Bank <500m
Geldautomat <500m
Post <500m
Polizei <500m
Verkehr
Bus <500m
Autobahnanschluss <2.250m
Bahnhof <750m
Angaben Entfernung Luftlinie / Quelle: OpenStreetMap
Objektdaten
Ausstattung
- Barrierefrei
- Kabelkanäle
- Bad mit Badewanne
- Einbauküche
- Fliesenboden
- Parkettboden
- Fußbodenheizung
- Luftwärmepumpe
- Personen Fahrstuhl
- Ausrichtung Balkon/Terrasse - Nord
- Massiv Bauweise
Zustand
- Zustand
- ERSTBEZUG
- Baujahr
- 2020
- Alter
- NEUBAU
- HWB
- 21.63 kWh/m² pro Jahr
- Klasse HWB
- A
- fGEE
- 0.81
- Klasse fGEE
- B
Flächen
- Anzahl der Zimmer
- 2
- Anzahl der Badezimmer
- 1
- Anzahl der sep. WCs
- 1
- Anzahl der Terrassen
- 1
- Wohnfläche
- 54m²
- Nutzfläche
- 54m²
- Gartenfläche
- 28m²
- Terrassenfläche
- 1m²
Kosten
- Kaufpreis Brutto
- € 185.900,00
- Betriebskosten
- € 133,23
Verwaltung
- Verfügbar ab
- nach Vereinbarung
Wohnungen zum Kaufen im Umkreis von Traismauer
Wohnungen zum Kaufen im Umkreis von Traismauer
Wohnungen zum Kaufen in Österreich
Andere Besucher suchen nach...
- Grundstücke kaufen in 3400 Weidlingbach
- Wohnungen kaufen in 4663 Laakirchen
- Häuser in 7471 Rechnitz
- Wohnungen in 2410 Hainburg an der Donau
- Häuser kaufen in 2432 Schwadorf
- Wohnungen kaufen in 3002 Purkersdorf
- Häuser in 3150 Wilhelmsburg
- Wohnungen kaufen in 3470 Engelmannsbrunn
- Grundstücke kaufen im Bezirk Mattersburg
- Grundstücke kaufen im Bezirk Gmunden