3-Zimmer-Wohnung mit Loggia & Stellplatz – ruhige Lage nahe Traisenpark & Viehofner Seen
-
Sofort
Beschreibung
Objektlage: Die Wohnung in der Heimito von Doderer-Straße überzeugt durch ihre hervorragende Lage im Norden St. Pöltens, nur wenige Gehminuten vom Traisenpark und Fachmarktzentrum entfernt. Bildungseinrichtungen, Bus- und Bahnverbindungen sowie das Universitätsklinikum sind schnell erreichbar. Für Naherholung sorgen das Traisenufer und die Viehofner Seen in unmittelbarer Umgebung. Durch die hervorragende Verkehrsanbindung, nur 27 Minuten zum Wiener Hauptbahnhof, bietet die Lage hohen Wohnkomfort für Eigennutzer und starke Perspektiven für Anleger.
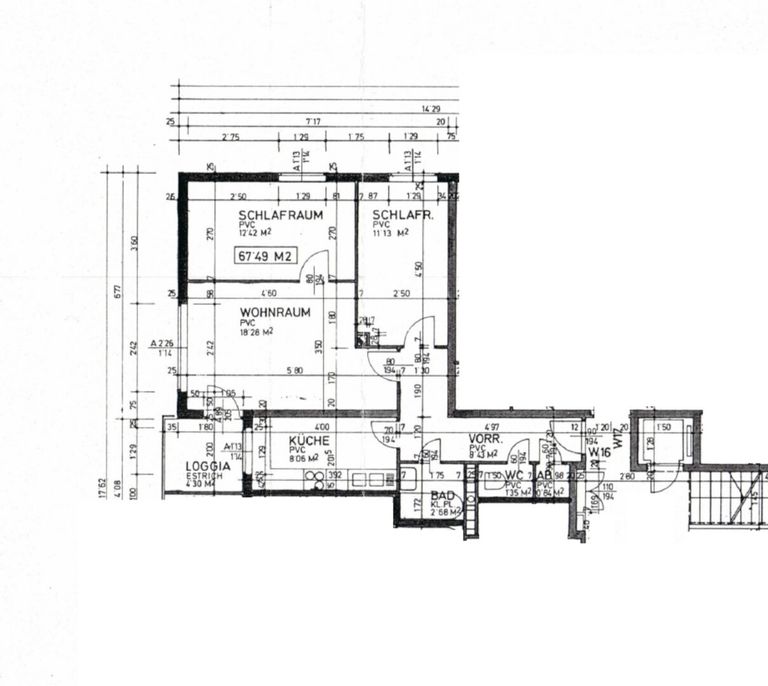
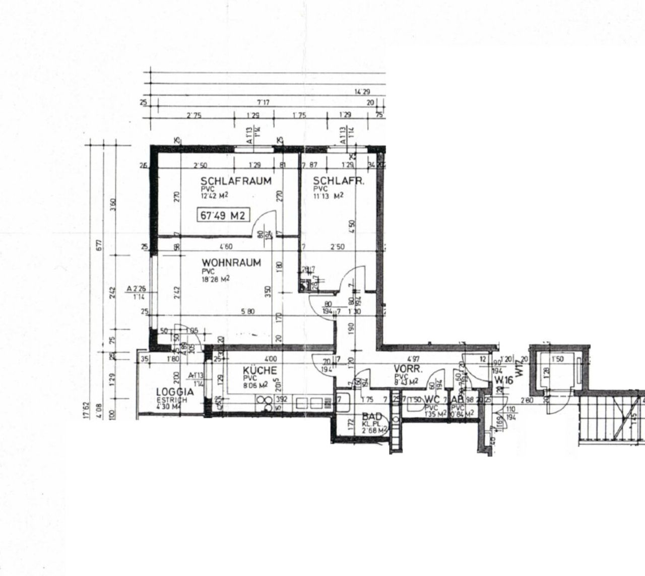
Fläche: ca. 67,49 m² Wohnnutzfläche inkl. 4,30 m² Loggia + ca. 2,46 m² Kellerabteil + Autoabstellplatz
Ausstattungsdetails: Vorraum mit Einbauschrank • Badezimmer mit Dusche und Waschmaschinenanschluss •...
Objektlage: Die Wohnung in der Heimito von Doderer-Straße überzeugt durch ihre hervorragende Lage im Norden St. Pöltens, nur wenige Gehminuten vom Traisenpark und Fachmarktzentrum entfernt. Bildungseinrichtungen, Bus- und Bahnverbindungen sowie das Universitätsklinikum sind schnell erreichbar. Für Naherholung sorgen das Traisenufer und die Viehofner Seen in unmittelbarer Umgebung. Durch die hervorragende Verkehrsanbindung, nur 27 Minuten zum Wiener Hauptbahnhof, bietet die Lage hohen Wohnkomfort für Eigennutzer und starke Perspektiven für Anleger.
Fläche: ca. 67,49 m² Wohnnutzfläche inkl. 4,30 m² Loggia + ca. 2,46 m² Kellerabteil + Autoabstellplatz
Ausstattungsdetails: Vorraum mit Einbauschrank • Badezimmer mit Dusche und Waschmaschinenanschluss • WC • Praktischer Abstellraum • Separate Küche mit Einbauküche und Markengeräten von AEG und LIEBHERR (Geschirrspüler, Mikrowelle, Glaskeramikkochfeld, Backofen, Kühl-Gefrierkombination) • Geräumiges Wohnzimmer mit Loggia Zugang • Zwei getrennt begehbare Schlafzimmer
Zimmeranzahl: 3
Objekt-Baujahr / Benützungsbewilligung: ca. 1971
Geschoss / Aufzug: 2 / Aufzug vorhanden
Betriebskosten, Abstellplatz, Instandhaltung, USt.: ca. € 273,52
Fernwärme Heizung, Warmwasser, USt.: ca. € 137,06
Kaufpreis: € 149.900,-
Provision: 3 % zzgl. 20 % USt. vom lastenfreien Kaufpreis
Fazit: Eine gepflegte 3-Zimmer-Wohnung mit optimaler Raumaufteilung, solider Ausstattung und ausgezeichneter Infrastruktur, ideal für Eigennutzer, die ruhiges Wohnen mit Stadtnähe schätzen, und Anleger, die auf Lagequalität und Werthaltigkeit setzen.
Wir weisen darauf hin, dass zwischen dem Vermittler und dem zu vermittelnden Dritten ein familiäres oder wirtschaftliches Naheverhältnis besteht.
Der Vermittler ist als Doppelmakler tätig.
Infrastruktur / Entfernungen
Gesundheit
Arzt <500m
Apotheke <500m
Klinik <1.250m
Krankenhaus <1.000m
Kinder & Schulen
Schule <250m
Kindergarten <250m
Universität <1.000m
Höhere Schule <1.750m
Nahversorgung
Supermarkt <250m
Bäckerei <500m
Einkaufszentrum <250m
Sonstige
Bank <500m
Geldautomat <500m
Post <500m
Polizei <500m
Verkehr
Bus <250m
Autobahnanschluss <3.000m
Bahnhof <500m
Flughafen <7.750m
Angaben Entfernung Luftlinie / Quelle: OpenStreetMap
Objektdaten
Ausstattung
- WG geeignet
- Räume veränderbar
- Gartennutzung
- Teilmöbliert
- Kabel/SAT-TV
- DVBT
- Wasch-/Trockenraum
- Rampe
- Fahrradraum
- Seniorengerecht
- Bad mit Dusche
- Einbauküche
- Fliesenboden
- Laminatboden
- Zentralheizung
- Fernwärme Heizung
- Fern Befeuerung
- Personen Fahrstuhl
- Ausrichtung Balkon/Terrasse - Nord
- Flachdach
- Massiv Bauweise
- Niedrigenergie
Zustand
- Zustand
- TEIL_VOLLRENOVIERUNGSBED
- Baujahr
- 1971
- Alter
- NEUBAU
- HWB
- 39 kWh/m² pro Jahr
- Klasse HWB
- B
- fGEE
- 1.12
- Klasse fGEE
- C
Flächen
- Anzahl der Zimmer
- 3
- Anzahl der Badezimmer
- 1
- Anzahl der sep. WCs
- 1
- Wohnfläche
- 67m²
- Kellerfläche
- 2m²
Kosten
- Kaufpreis Brutto
- € 149.900,00
- Betriebskosten
- € 193,51
- Sonstige Kosten
- € 60,26
Verwaltung
- Verfügbar ab
- Sofort
Wohnungen zum Kaufen in Österreich
Wohnungen zum Kaufen in Österreich
Wohnungen zum Kaufen in Österreich
Andere Besucher suchen nach...
- Grundstücke kaufen in 3400 Weidlingbach
- Wohnungen kaufen in 4663 Laakirchen
- Häuser in 7471 Rechnitz
- Wohnungen in 2410 Hainburg an der Donau
- Häuser kaufen in 2432 Schwadorf
- Wohnungen kaufen in 3002 Purkersdorf
- Häuser in 3150 Wilhelmsburg
- Wohnungen kaufen in 3470 Engelmannsbrunn
- Grundstücke kaufen im Bezirk Mattersburg
- Grundstücke kaufen im Bezirk Gmunden