Exklusive, sonnige Garten-Wohnung! 2 Autoabstellplätze! Neubau!
-
sofort
Beschreibung
Sonnenlage - diese exklusive Neubauwohnung mit Terrasse und Garten lässt keine Wünsche offen!
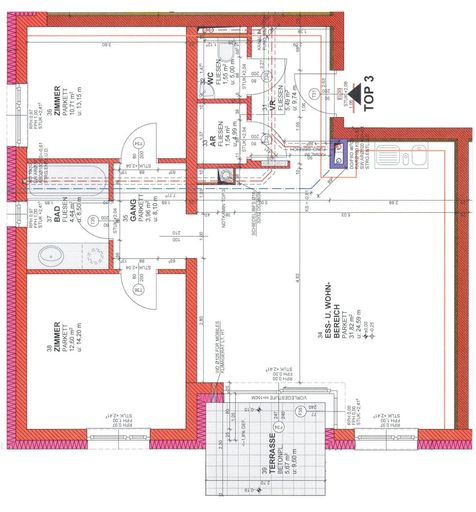
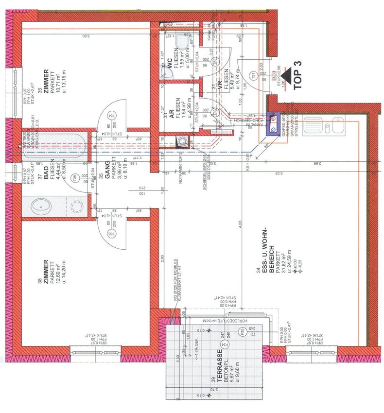
Mitten im Tullnerfeld, auf halber Strecke zwischen St. Pölten und Tulln, liegt diese sonnige und barrierefreie, ca. 72m² große Wohnung in einem Wohnhaus, das nach umweltbewußten Richtlinien errichtet wurde.
Über einen geräumigen Vorraum aus sind das großzügige Wohnzimmer mit offen gehaltener, komplett eingerichteter Küche, das Gäste-WC mit Handwaschbecken und ein großzügiger Abstellraum zu erreichen. Im Wohnraum ist ebenfalls ein Kaminanschluß vorhanden.
Vom Wohnzimmer aus ist die ca. 8m² große Sonnenterrasse mit dem ca. 85m² großen Garten zu betreten, wie von einem zweiten kleinen Vorraum aus die beiden...
Sonnenlage - diese exklusive Neubauwohnung mit Terrasse und Garten lässt keine Wünsche offen!
Mitten im Tullnerfeld, auf halber Strecke zwischen St. Pölten und Tulln, liegt diese sonnige und barrierefreie, ca. 72m² große Wohnung in einem Wohnhaus, das nach umweltbewußten Richtlinien errichtet wurde.
Über einen geräumigen Vorraum aus sind das großzügige Wohnzimmer mit offen gehaltener, komplett eingerichteter Küche, das Gäste-WC mit Handwaschbecken und ein großzügiger Abstellraum zu erreichen. Im Wohnraum ist ebenfalls ein Kaminanschluß vorhanden.
Vom Wohnzimmer aus ist die ca. 8m² große Sonnenterrasse mit dem ca. 85m² großen Garten zu betreten, wie von einem zweiten kleinen Vorraum aus die beiden ca. 14m² gleichgroßen Zimmer und auch das Bad mit Wanne, Waschtisch und Waschmaschinenanschluß.
Die Warmwasseraufbereitung und Beheizung erfolgt über eine Wärmepumpe, die gesamte Wohnung verfügt über eine Fußbodenheizung. Die monatlichen Heizkosten betragen ca. EUR 70,00 EUR.
Die Ausstattung umfasst hochwertige Parkettböden, schöne Fliesen im Bad, WC und Abstellraum, Maß-Küche mit allem Drum und Dran, Sat- und Telefonanschluss, Gegensprechanlage und 2 KFZ-Abstellplätze vor dem Haus.
Dank des neuen Bahnhofs Tullnerfeld, der nur ca. 8 Autominuten entfernt ist, erreichen Sie von hier aus in nur 20 Minuten den Wiener Westbahnhof, in 13 Minuten St. Pölten. In ca. 200 Meter Entfernung befindet sich die nächste Busstation (547 und 543). Einkaufsmöglichkeiten, eine Volksschule und einen Kindergarten bietet das nahegelegene Sieghartskirchen.
Instandhaltungsfonds: ca. 85.000,00 EUR/per 31.12.2024
Instandhaltungsrücklage: 83,77 EUR
Betriebskosten (netto): 157,50 EUR
Heizkosten (netto): 58,24 EUR
Betriebskosten Parkplätze (netto): 11,52 EUR
Instandhaltungsrücklage: 6,13 EUR
Umsatzsteuer (gesamt): 29,70 EUR
Betriebskosten (gesamt): 346,86 EUR
Kaufpreis: 225.000,00 EUR
Provision: 8.100,00 EUR inkl. 20% USt.
Grunderwerbssteuer: 3,5%
Kosten der Vertragserrichtung und grundbücherlichen Durchführung nach Vereinbarung im Rahmen der Tarifordnung des jeweiligen Urkundenerrichters sowie Barauslagen für Beglaubigung und Stempelgebühren.
Objektdaten
Ausstattung
- Gartennutzung
- Kabel/SAT-TV
- Barrierefrei
- Gäste-WC
- Seniorengerecht
- Bad mit Badewanne
- Bad mit Fenster
- Offene Küche
- Fliesenboden
- Parkettboden
- Zentralheizung
- Luftwärmepumpe
- Ausrichtung Balkon/Terrasse - Süd
- Ausrichtung Balkon/Terrasse - Südwest
Zustand
- Zustand
- NEUWERTIG
- Baujahr
- 2014
- Alter
- NEUBAU
- HWB
- 24.46 kWh/m² pro Jahr
- Klasse HWB
- A
- fGEE
- 0.49
- Klasse fGEE
- A++
Flächen
- Anzahl der Zimmer
- 3
- Anzahl der Badezimmer
- 1
- Anzahl der sep. WCs
- 1
- Anzahl der Terrassen
- 1
- Wohnfläche
- 72m²
- Nutzfläche
- 80m²
- Gartenfläche
- 85m²
- Kellerfläche
- 3m²
- Terrassenfläche
- 1m²
Kosten
- Kaufpreis Brutto
- € 225.000,00
- Betriebskosten
- € 157,50
- Heizkosten
- € 58,24
- Sonstige Kosten
- € 101,42
Verwaltung
- Verfügbar ab
- sofort
Wohnungen zum Kaufen im Umkreis von Würmla
Wohnungen zum Kaufen im Umkreis von Würmla
Wohnungen zum Kaufen in Österreich
Andere Besucher suchen nach...
- Grundstücke kaufen in 3400 Weidlingbach
- Wohnungen kaufen in 4663 Laakirchen
- Häuser in 7471 Rechnitz
- Wohnungen in 2410 Hainburg an der Donau
- Häuser kaufen in 2432 Schwadorf
- Wohnungen kaufen in 3002 Purkersdorf
- Häuser in 3150 Wilhelmsburg
- Wohnungen kaufen in 3470 Engelmannsbrunn
- Grundstücke kaufen im Bezirk Mattersburg
- Grundstücke kaufen im Bezirk Gmunden