WOHNEN AM WAGRAM
Beschreibung
Umgeben von den Weinbergen in Kirchberg von Wagram sind in einem Gebäude 23 Eigentumswohnungen entstanden, welche bezugsfertig sind. Jede Wohnung hat entweder Balkon oder Terrasse.
Bei der Errichtung wurden ausschließlich hochwertige Materialien verwendet und selbstverständlich ist das Gebäude am letzten Stand der Bau- und Ausstattungstechnik, auch thermisch. Heizung mittels Fernwärme
Die Besonderheit dieses Neubaus ist der Nahversorger direkt im Haus!
Der Bahnhof ist in 10 Gehminuten, Wien in 35 Minuten Fahrzeit erreichbar.
Sie kaufen provisionsfrei. Die Wohnungen liegen preislich von € 212.000,00 bis € 364.000,00
Kosten für den Garagenplatz € 12.300,00
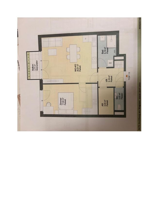
Raumaufteilung: - Vorzimmer - Wohnküche - 2...
Umgeben von den Weinbergen in Kirchberg von Wagram sind in einem Gebäude 23 Eigentumswohnungen entstanden, welche bezugsfertig sind. Jede Wohnung hat entweder Balkon oder Terrasse.
Bei der Errichtung wurden ausschließlich hochwertige Materialien verwendet und selbstverständlich ist das Gebäude am letzten Stand der Bau- und Ausstattungstechnik, auch thermisch. Heizung mittels Fernwärme
Die Besonderheit dieses Neubaus ist der Nahversorger direkt im Haus!
Der Bahnhof ist in 10 Gehminuten, Wien in 35 Minuten Fahrzeit erreichbar.
Sie kaufen provisionsfrei. Die Wohnungen liegen preislich von € 212.000,00 bis € 364.000,00
Kosten für den Garagenplatz € 12.300,00
Raumaufteilung:
- Vorzimmer
- Wohnküche
- 2 Zimmer
- Bad
- WC
- Abstellraum
- Lift vom Keller bis ins Dachgeschoss = barrierefrei
Kellerabteil ist der Wohnung zugeordnet
Gerne übermitteln wir Ihnen Unterlagen auch für eine andere Wohnung in der Liegenschaft!
Die Böden sind mit Parkett und Fliesen ausgestattet!
Regina Degen freut sich über Ihre Kontaktaufnahme unter regina.degen@wisionhome.at oder 0676 391 91 07
Wir weisen darauf hin, dass wir als Doppelmakler tätig sind.
Infrastruktur / Entfernungen
Gesundheit
Arzt <500m
Apotheke <1.000m
Kinder & Schulen
Schule <1.000m
Kindergarten <1.000m
Nahversorgung
Supermarkt <500m
Bäckerei <500m
Sonstige
Bank <500m
Geldautomat <500m
Post <500m
Polizei <500m
Verkehr
Bus <500m
Autobahnanschluss <3.500m
Bahnhof <1.000m
Angaben Entfernung Luftlinie / Quelle: OpenStreetMap
Objektdaten
Ausstattung
- Barrierefrei
Zustand
- Alter
- NEUBAU
- HWB
- 21.1 kWh/m² pro Jahr
- Klasse HWB
- A
- fGEE
- 0.61
- Klasse fGEE
- A
Flächen
- Anzahl der Zimmer
- 2
- Anzahl der Badezimmer
- 1
- Anzahl der sep. WCs
- 1
- Anzahl der Balkone
- 1
- Wohnfläche
- 61m²
Kosten
- Kaufpreis Brutto
- € 249.900,00
Wohnungen zum Kaufen im Umkreis von Kirchberg am Wagram
Wohnungen zum Kaufen im Umkreis von Kirchberg am Wagram
Wohnungen zum Kaufen in Österreich
Andere Besucher suchen nach...
- Grundstücke kaufen in 3400 Weidlingbach
- Wohnungen kaufen in 4663 Laakirchen
- Häuser in 7471 Rechnitz
- Wohnungen in 2410 Hainburg an der Donau
- Häuser kaufen in 2432 Schwadorf
- Wohnungen kaufen in 3002 Purkersdorf
- Häuser in 3150 Wilhelmsburg
- Wohnungen kaufen in 3470 Engelmannsbrunn
- Grundstücke kaufen im Bezirk Mattersburg
- Grundstücke kaufen im Bezirk Gmunden